3d预测最准的专家预测_3d预测最准确专家预测_今天钱王老头点评_3D独胆最新精准预测_3d今晚十大专家预测汇总,千禧3d试机号关注号_天牛3d资料图库大全_3d精准定位专家预测_3d专家推荐最新预测_3d北斗今日预测 ,3d今天开机号和试机号开奖结果_于海滨今天3d预测号_3d真实的谎言字谜和值谜_3d今日预测最准专家预测_3d今晚预测的开奖号码是多少 ,詹天佑3d最新消息今天_3d三胆推荐_3d专家预测最准确今天3d_3d预测专家推荐最准确_3d今天试机号开机号对应码开奖号

技術資料

Q3210\Q326履帶式拋丸清理機說明書

一、機器的用途:

該機是利用高速回轉的葉輪,將彈丸拋向滾筒內連續翻轉的工件上,達到清理的目的。它適合用于各行業中的小型鑄件、鍛件、沖壓件、齒輪、彈簧等件的清砂、除銹、去除氧化皮和表面強化,特別適用于怕碰撞的零件的清理及強化。

(注:本機不能清理高溫件、帶有飛邊毛刺件,否則將損傷履帶。)

本機是綜合國內外技術,設計開發的新產品,是一種清理效果好、結構緊湊、噪聲小、成套性好的清理設備,具有以下特點:

1、該機采用了電機直牽式高效拋丸器,具有拋丸效率高,使用壽命長、結構簡單等特點;

2、采用風選型分離器,具有良好的分離效果和較高的生產率,提高了拋丸器葉片壽命;

3、采用袋式除塵器,粉塵排放濃度低于國家的標準,改善了工人的勞動環境;

4、采用耐磨橡膠履帶,減少了對工件的碰撞、損傷現象,降低了機器的噪聲;

5、工件清理完畢后,可自動卸料,降低了工人的勞動強度。

二、主要結構及工作原理:

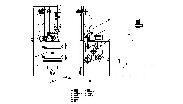
本機是一種小型的清理設備,主要由清理室、拋丸器總成、提升機、分離器、電氣系統等部分組成。見圖一(表一注明了各部分序號對應的名稱)

工作原理:在清理室中加入規定數量的工件,機器啟動后,工件被滾筒帶動,開始翻轉,同時拋丸器高速拋出的彈丸形成流丸束,均勻地打擊在工件表面上,從而達到清理、強化的目的。拋出的彈丸及砂粒經橡膠履帶上的小孔,流入提升機內,由提升機提升到分離器中進行分離。粉塵由風機吸送到除塵器中過濾,清潔空氣排入大氣中,布袋上的灰塵經機械振打落入除塵器底部的集塵箱中,用戶可定期清除,廢砂由廢料管流出,用戶可回用。丸砂混合物由回用管收回進入室體,待分離器分離后再回用,干凈的彈丸由電磁供丸閘門進入拋丸器拋打工件。

三、主要技術規格:

1、履帶端盤直徑--------------------------φ650mm

2、履帶端盤轉速--------------------------3.6r/min

3、被清理工件最大單件重量-----------10kg

4、滾筒最大載重量(易翻滾件)-----200kg

5、生產率-----------------------------------600~1200kg/h(灰鑄件)

6、拋丸器:

          轉速---------------------------2930r/min

          葉輪直徑---------------------φ340mm

          拋丸量------------------------120kg/min

          拋丸器功率------------------7.5kW

7、除塵器風量----------------------------2200m3/h

8、總裝機容量----------------------------12.67kW

9、機器外形尺寸(L×W×H------1500mm×1880mm×3940mm

(注:其中生產率與工件的復雜程度和表面積有關,一般每分鐘清理零件表面積≤0.25m2

(彈丸直徑0.8-1.2mm)

履帶式拋丸機圖紙

表一:

序號

  

序號

  

序號

  

1

分離器

6

清理室

11

除塵系統

2

提升機

7

地基



3

履帶傳動系統

8

 



4

加料門

9

拋丸器總成



5

電器系統

10

閘門管



四、機器的安裝及調整

(一)、機器的安裝:

1、基礎施工按基礎圖所示,用戶根據當地土質配置混凝土,用水平儀檢查平面縱橫水平后,即可進行安裝,并將各地腳螺栓緊固;

分離器結構圖

2、本機出廠前已將清理室、拋丸器等部分組裝成一體,整機安裝時按圖一所示,將序號2提升機與清理室上的提升機用螺栓緊固。斗式提升機安裝時,應注意調整上端主動皮帶輪軸承座,使之保持水平,以免皮帶跑偏。然后將序號1分離器與提升機上部用螺栓緊固;

3、將供丸閘(序號10)安裝在分離器上,按除塵系統圖連接所有的管路,分離后的廢料用戶可自備廢料桶處理;

4、分離器的安裝圖見圖三。分離器正常工作時,彈丸流幕不應有 缺口,如果不能形成滿幕簾,應調整序號1重錘直至形成滿幕

簾。如果丸砂分離效果不好,可調整分離級板(序號2、序號3),以得到良好的分離效果,彈丸過篩后的大塊物料,應定期清除;

   提升系統圖

5、提升機皮帶由用戶配孔聯接,聯接形式如上圖:

(二)、空運轉調試

1、試驗運轉前必須先熟悉使用說明書中的有關規定,對該設備的

2、結構、性能做全面的了解;

3、開機前必須先檢查各緊固件是否有松動現象,及機器的潤滑情況是否合乎要求;

4、該機要求裝配正確,開機前應對各部件、電機等進行單動試驗。各電機旋向應正確,履帶、提升機皮帶應松緊適中,無跑偏現象;

5、應檢查各電機的空載電流、軸承溫升、減速器、拋丸器是否動轉正常,發現問題應及時查明原因,進行調整;

6、單動設備沒有問題后,可依次啟動除塵器、提升機、滾筒正轉、拋丸器進行空運轉試驗,空運轉時間為一小時。

五、機器的操作及注意事項

(一)、機器的操作:

       1、 凡是本機操作人員必須對本說明書以及本機的工作原理性能及操作方法、潤滑等方面有全面的了解,方能進行操作。

2、將彈丸(250kg)陸續加入滾筒內,然后放入工件,關閉加料門,準備開車。

3、   合上總電源開關,將鑰匙開關旋至通的位置,接通電源。

4、   按“風機開”按鈕,風機開。

5、   按“提升機開”按鈕,提升機開。

6、   按“拋丸器開”按鈕,拋丸器開。

7、   按“供丸閘開”按鈕,供丸閘開,清理開始。

8、   按“滾筒正轉”按鈕,滾筒正轉開始。

9、   清理時間到,拋丸器、供丸閘自動關閉。

  10、 按“供丸閘停”按鈕,供丸閘停。

  11、按“拋丸器停”按鈕,拋丸器停。

  12、按“滾筒停”按鈕,滾筒停。

  13、按“提升機停”按鈕,提升機停。

  14、按“風機停”按鈕,風機停。

  15、按“振打開”按鈕,振打開始,振打時間到,按“振打停”停止。

 16、打開加料門,按“滾筒反轉”按鈕,滾筒反轉開始,物料即可自動卸出。

  17、按“滾筒停”按鈕,滾筒反轉停。

  18、在通風除塵系統中,裝有蝶閥,根據情況調整蝶閥,可得到良好的分離效果;

 19、拋丸器定向套的調整:

    定向套的調整可參考圖四所示的示意圖調整,在使用過程中因定向套磨損使彈丸擴散角增大,導致拋丸器和清理室的其他護板磨損加快。因此,定向套的磨損超過10毫米時,應更換新的定向套(開口方向與水平方線夾角為45°)。

定向套調整示意圖

               定向套調整示意圖

(二)、注意事項:

1、應定期清除除塵器下方集塵箱中的粉塵,以防阻塞排塵管,影響除塵效果;

2、應經常清理清理室底部以及分離器漏斗中篩網下的雜物;

3、應經常清掃設備周圍的彈丸,以防滑倒傷人;

4、應經常檢查清理室中履帶及提升機皮帶有無跑偏現象,以免損傷皮帶;

5、禁止在拋丸器沒完全停止時打開加料門,以防出現事故。

六、機器的維護及保養

1、每一工作班后,均應將機器清掃一遍;

2、應經常檢查清理室中的護板及拋丸器中定向套、分丸輪等耐磨件的磨損情況,磨損嚴重時應立即更換;

3、應按規定定期潤滑,并經常檢查機器是否動轉靈活。設備潤滑點見表二;

4、定期檢查各傳動部分,清洗零件,更換磨損的零部件;

5、機器在檢查維修時,必須切斷電源,避免事故的發生;

6、清理室的耐磨鑄鐵護板可根據磨損情況定期更換。更換護板時,應把護板間的安裝間隙控制在1.5毫米以內。

表二:

序號

潤滑部位

潤滑位數

潤滑方法

潤滑期限

潤滑油種類

1

提升機上部軸承

2

人工

每月一次

2#鋰基潤滑脂

2

除塵器電機

2

人工

按電機潤滑要求潤滑

3

提升機鏈輪

2

人工

每周一次

40#機械油

4

提升機減速器

1

人工

三個月一次

40#機械油

5

除塵器軸承

10

人工

每月一次

2#鈣基潤滑脂

6

減速器

1

人工

三個月一次

40#機械油

7

傳動鏈輪

2

人工

每周一次

40#機械油

8

端盤軸承

4

人工

每月一次

2#鈣基潤滑脂

9

支撐輥軸承

2

人工

每月一次

2#鋰基潤滑脂

10

漲緊輥軸承

2

人工

每月一次

2#鋰基潤滑脂

11

提升機下部軸承

2

人工

每月一次

2#鋰基潤滑脂

12

主動輥軸承

2

人工

每月一次

2#鋰基潤滑脂

注:提升機上部拋丸器履帶傳動系統的電機按電機潤滑要求潤滑。

七、軸承明細表

序號

   

 

1

帶座外球面球軸承

UCF207

6

清理室傳動軸

2

帶座外球面球軸承

UCF307

4

提升機、螺旋輸送器

3

雙列向心球面球軸承

1210

4

清理室端盤

4

帶座頂絲外球面球軸承

UCFL204

4

除塵器

5

帶座頂外球面球軸承

UCPH205

2

除塵器

6

深溝球軸承

6008

1

除塵器

八、易損件及隨機備件明細表

易損件明細表:

序號

   

    

  

數量

1

Q326GT-005

 

耐磨鑄鐵

8

2

Q034ZZ6-3

分丸輪

耐磨鑄鐵

1

3

Q034ZZ6-4

定向套

耐磨鑄鐵

1

4

Q034ZZ6-2

端護板

耐磨鑄鐵

2

5

Q034ZZ6-7

頂護板

耐磨鑄鐵

1

6

Q034ZZ6-8

側護板

耐磨鑄鐵

2

清理室內各護板亦為易損件。

隨機備件明細表:

序號

 

  

 

數量

1

Q326GT-005

 

耐磨鑄鐵

8

2

Q034ZZ6-3

分丸輪

耐磨鑄鐵

1

3

Q034ZZ6-4

定向套

耐磨鑄鐵

1

九、常見故障原因及排除方法

清理效果差,清理時間長

1、      定向套窗口位置不對;

2、      拋丸器內護板、定向套、分丸輪、葉片磨損嚴重;

3、      使用彈丸過小;

4、      彈丸流量過小;

5、      清理室履帶松馳。

1、      按說明書要求調整定向套開口位置;

2、      仔細檢查各件,若磨損嚴重應立即更換;

3、      選擇合適彈丸;

4、      調節電磁閘門,增大彈丸流量,若循環彈丸不足,應重新加入新彈丸;

5、      調整清理室兩邊的漲緊裝置,使之漲緊。

提升機皮帶打滑,發生較大磨擦、磕碰聲音

1、    皮帶松馳;

2、    提升機下部物料阻塞;

3、    提升機皮帶跑偏。

1、      調節提升機上部的調整螺栓,使皮帶漲緊;

2、      打開提升機下部的維修門,人工清除堆集物料,并嚴格按說明書要求順序開、關機;

3、      打開提升機上部的維修蓋,觀察皮帶跑偏方向,調整提升機上部的漲緊裝置,邊調整邊單動試車。

分離器分離效果差

1、    流幕不均;

2、    分離區風速不合適;

3、    分離器一級、二級撇濾板的調節位置不合適。

1、    調節分離器內兩重錘位置,達到滿流幕;

2、    調整除塵系統中進入分離器的蝶閥使分離區風速達到4~5m/s

3、    調整一級、二級撇濾板的位置。

拋丸器電機發熱

1、    拋丸量過大;

2、    電機本身有問題。

1、    根據電流顯示(負載電流不能超過15A)調整供丸閘門,使拋丸量降低;

2、    檢查線路及電機參數。

拋丸器振動、噪聲大

1、    平衡性差;

2、    由于大塊物料進入拋丸器使葉片斷裂破壞;

3、    相對一組葉片磨損不勻,引起重量差較大。

相對一組葉片的重量差不得大于5,更換時應成對更換。

室體灰塵外溢

1、    密封不良;

2、    吸塵風量過小。

1、    檢查除塵管道及室體是否密封良好,并使之密封;

2、    ⑴清除布袋除塵器上的灰塵;

⑵調整除塵系統進入清理室的蝶閥,增大清理室的風量。


上一條:角鋼拋丸機,角鋼表面除銹專用清理設備 下一條:廠家介紹:拋丸除銹機一臺多少錢? 返回列表
3d今晚必出号预测 | 于海滨3d今晚预测号码 | 今晚3d预测推荐一注 | 解太湖3d字谜太湖 | 3d下期预测最精准的一注号码 | 3d最精准独胆王 | 3d今晚最准的一注 | 今天晚上的3d开奖结果 | 3d最近基本走势图 | 3d陈华今晚就赌一胆天齐网 | 3d机选一注 | 3d和值尾振幅走势图3d走势3d之家 | 铁娘子三天计划独胆必下300 | 3d十大专家预测汇总 | 今天3d开机号 试机号是多少 | 3d藏机图正版藏机图全图牛彩网 | 3d和值尾振幅走势图3d走势3d之家 | 3d专家预测于海滨 | 3d精准一注今天 | 3d廊坊鸿运 | 3d今晚最准最新专家推荐号 | 太湖叟3d字谜湖字谜 | 3d预测号码| 今晚3d专家最精准的预测 | 今日3d一句定三码最准和值谜 | 今天3d开机号试机号码 | 3D独胆高手走势最新 | 3d和值012走势图带连线图 | 3d下期预测最精准的一注号码 | 3d今日预测最准专家预测 | 于海滨专家一语定胆十每日 | 3d双胆独胆非常非常 | 3d预测专家最准最新 | 3d专家预测推荐汇总 | 今晚3d专家推荐 | 今晚3d专家预测精选一注 | 3d今晚中奖号是多少 | 今天三d专家推荐号码 | 3d预测专家推荐最新 | 经典小胆王三天计划配组合 | 3d今天单挑50信 | 今于海滨点评专家一语定胆 | 今日正版藏机图全部汇总239期 | 太湖字谜钓叟3d字谜 | 3d北斗专家北斗预测今天079期3d | 3d陈华就赌一个胆天齐网 | 今于海滨一语定胆保真今天 | 3d推荐一注 | 3d试机号开机号今天晚上金码号 | 中国福彩3D独胆最新推荐最新 | 中国福彩3D独胆明日推荐最新 | 3d直选综合走势图 | 太湖谜3d太湖钓叟字谜 | 今日3d钱王点评 | 最准3d专家预测推荐 | 今天3d藏机图正版藏机图藏机图太湖横屏 | 今天3d太湖钓叟字谜三字诀 | 3d开机号和试机号金码关注对应码 | 3d八哥图库总汇d字谜图谜总汇大全 | 3d今天专家预测最准 | 3d预测最准确最新 | 3d和值基本走势图新浪网 | 3d白娘子跨度字谜汇总今天牛彩网 | 3d预测汇总 | 于海滨今日3d预测 | 3d今晚上开奖号码 | 3d预测最准专家 | 3d字太湖字谜 | 3d预测专家最准确 | 3d试机号近10期彩经网 | 3d双胆大师今天 | 今天买哪三个号码好 | 3d牛彩网今天开机号试机号 | 3d推荐最新最准专家预测 | 3d精准推荐号 | 3d近100期试机号和开奖号是多少 | 3d专家最新最准专家预测汇总 | 3d今天专家预测号码最准确 | 3d精准预测推荐 | 3d最准预测专家推荐 | 3d千禧试机号关注码金码是什么 | 李明启3d今晚预测专栏 | 3d百位走势图带连线图表专业版 | 于海滨一语定胆《保真》 | 于海滨海3d专家预测 | 今日3d预测号码推荐 | 3d百十和值尾振幅走势图 | 于海滨海3d专家预测 | 今晚3d开奖号码多少 | 3d预测詹天佑最新 | 3d今晚预测最新最准确号码牛彩网 | 天才计划三天计划独胆 | 3d开奖号码走势图表 | 3d毒毒毒胆胆胆中中中 | 3d预测最准专家预测牛彩网 | 3d推荐最新最准专家预测 | 福彩3D独胆本期命中率 | 3d专家预测最准确 | 3d今天试机号开机号关系 | 今日钱王给胆点评 | 顶级胆神双胆必下 | 今晚3d专家推荐号 | 福彩3D独胆下期最新推荐 | 3d预测詹天佑最新 | 今日3d藏机图正版藏机图310 | 千禧3d试机号关注码今天 | 3d试机号关注号金码对应码开机号 | 3d直选走势图(专业版) | 今于海滨3d杀码图 | 3D独胆本期推荐 | 中国福彩3D独胆明日推荐最新 | 3d今晚预测直选四注 | 今晚3d开奖号试机号 | 3d十大专家推荐号码汇总 | 3d专家最新最准专家预测汇总 | 今晚3d开机号试机号金码关注码 | 3d试机号今晚开机号 | 3d最准预测号 | 3d三天计划独胆王 | 张克永专家3d预测 | 3d今天专家推荐号码是多少 | 三d独胆王独胆双胆 | 唐龙点评每日一胆龙 | 十拿九稳十大专家预测汇总最新一期 | 3d带线走势图连线走势图 | 3d解太湖字谜汇总精选 | 3d专家今天推荐号 | 3d今晚开出什么号码 | 3d走势图的基本走势图 | 3d独胆王独胆预测 | 3d试机号近10期彩经网 | 3d今天专家推荐号码推荐 | 中国福彩3D独胆实时精准预测 | 今日3d预测号 | 3d基本走势图(专业版)近200期 | 福彩3D独胆下期推荐必中 | 3d百个位和值尾走势图 | 3d最准专家预测号今晚3d试机号 | 3d推荐专家汇总 | 3d红波蓝波走势图大中小 | 3d最精准专家预测汇总今天 | 今天专家推荐号码3d | 于海滨预测3d号 | 3d专家预测最准确最新今晚预测 | 3d预测牛彩网预测汇总 | 3d北斗专家北斗预测今天079期3d | 千禧3d试机号关注码金码列表 | 3d最精准专家预测汇总今天 | 3d选胆图近100期 | 福彩3D独胆下期最新分析 | 最准3d专家预测推荐 | 3d今晚预测100% | 三d试机号后专家预测汇总 于海滨专家3d今天预测 | 3d走势图带连线图表牛彩网 | 3d今晚预测最新最准确号码牛彩网 | 3d太湖17500字谜 | 毒胆牛人三天计划必出 | 3d专家预测最准确 | 3d和值和尾振幅走势图 | 3d专家预测推荐号码 | 3d北斗专家北斗预测今天079期3d | 于海滨三地杀码 | 3d白娘子跨度字谜汇总今天牛彩网 | 今晚3d最准专家预测号 | 3d预测 下一期 3d预测专家 3d预测 | 于海滨海3d专家预测 | 3d字图谜总汇 | 3d走势图带连线图表 | 3d一语定胆字谜今天 | 3d下期预测最精准的一注号码 | 3d胆预测天齐网 | 3d今天预测最准确专家 | 7号电池最建议买的三个型号 | 3d今天开机号和试机号 | 3d六大专家杀码汇总 | 廊坊鸿运3d推荐今天 | 3d专家预测最准最新 | 3d精准预测最准的专家 | 3d独胆专家推荐独胆 | 今天3d太湖字谜三字诀 | 3d预测专家最准确今天 | 3d于海滨上的今天杀码 | 福彩3D独胆最新必中最新 | 3d专家预测最准确最新今天牛彩 | 3d精准预测专家预测 | 3d今晚最新奖号 | 3d形态预测静态版 | 于海滨点评专家一注定胆保真版162期 | 于海滨海3d专家杀码 | 3d七码复式最准专家 | 3d今晚专家预测重点号码 | 3d专家预测更准确今天 | 3d彩宝网开机号和试机号 | 今日3d专家推荐号码 | 3d杀码专家杀码天齐网 | 3d玩胆先生双胆独胆 | 3d双胆独胆| 3d专家预测最准确最新今晚预测 | 3d今晚推荐一注 | 今天3d推荐号码今晚预测 | 龙头凤尾今日预测 | 太湖钓叟排三字诀字谜 | 3d预测詹天佑最新 | 3d独胆王精准100% | 3d十大专家预测汇总 | 今天3d开机号,试机号是多少 | 3d条件预测专家专区 | 3d预测推荐汇总牛彩网采摘收集 | 福彩3D独胆实时走势 | 牛人高手【3d精选】 | 3d今晚预测直选一注3d一注预测 | 3d正版藏机图天齐网汇总 | 今日精准预测推荐3d号码 | 3D独胆下期预测 | 于海滨一语定胆保真 | 3d专家今日推荐号码 | 小红人的计划三天计划独胆 | 3d最精准一注一注 | 千禧3d开机号试机号金码 | 今日排五专家推荐与预测 | 3d开机号试机号30期列表走势图 | 3d开奖号走势图表 | 3d字太湖叟字谜 | 3d最新准专家预测 | 3d的预测号是多少 | 3d单双走势图表 | 3d推荐最新最准专家预测 | 钱王杀码图码 | 3d预测专家最准确的专家预测今晚 | 于海滨一语定胆《保真》 | 今日3d开机号和试机号关注码千禧 | 3d成功路上人双胆独胆 | 中国福彩3D独胆实时推荐 | 马后炮解3d太湖钓叟字谜总汇大全 | 3d最精准专家预测汇总今天 | 3d藏机图正版藏机图诗汇总 | 3d今晚最准专家预测号码 | 3d最小值振幅走势图3d之家 | 今天3d牛彩网专家预测 | 3d组选中一注多少钱 | 3d独胆双胆独胆3d之村 | 3d最准的独胆毒胆独胆 | 3d图谜总汇字谜 | 3d今晚预测直选一注 | 下一期专家推荐号码 | 今天3d太湖字谜三字诀 | 3d机选一注| 福彩3D独胆明日分析 | 3d真实的谎言字谜总汇正版 | 3d双飞大师双胆组合 | 于海滨海3d预测保真 | 3d316期太湖字谜 | 3d千禧试机号关注金码30期 | 3d推荐号今晚专家预测 | 太湖3d字谜图谜总汇 | 陈华3d今晚就赌一个胆 | 于海滨点评专家一注定胆保真版162期 | 3d开机号试机号今天最新50期 | 中国福彩3D独胆下期分析最新 | 55125预测汇总3d| 今日排五专家推荐与预测 | 今天3d太湖钓叟三字诀字谜 | 今日3d太湖三字谜 | 3d精准三注直选 | 3d预测最准的专家 | 于海滨一语定胆保真 | 3d今晚专家预测推荐 | 今天3d开机号和试机号多少? | 3d布衣独胆王正版今天 | 今晚3d精准一注直选 | 3d预测专家最准确的专家预测今晚 | 神仙姐姐今天最新杀码 | 今晚3d专家预测最准确 | 3d今晚精准一注推荐 | 3d红波蓝波走势图大中小 | 福彩3D独胆下一期命中率最新 | 张克永最新3d预测 | 快8今晚最毒胆推荐 | 今天3d开机号 试机号是多少 | 今晚钱王点评推荐号 | 3d今日太湖字谜 | 福彩3D独胆大神精准预测 | 太湖谜3d太湖钓叟字谜 | 3d字谜今天太湖字谜 | 3d独胆必下一独胆 | 今日3d开机号和试机号关注码千禧 | 3d今晚推荐三注 | 3d近100期的开奖号码和试机号 | 中国福彩3D独胆下期最新必中 | 3d藏机图正版藏机图打印版 | 马到成功杀两码最新版本更新内容 | 今天3d试机号和开机号 | 3d两胆精准预测 | 3d今晚最准确一注 | 中国福彩3D独胆老师分析最新 | 3d今天预测最准确专家 | 3d最新专家预测汇总大全 | 白骨精3d独胆图今天 | 3d预测最准确专家预测 | 3d独胆预测| 3d今天最新最准专家预测最 | 3d免费专家预测推荐今天最新 | 中国福彩3D独胆下期推荐推荐最新 | 今天3d开奖号是多少 | 2014年359期3d焰舞字谜 | 3d预测专家预测 | 3d之家预测专家预测 | 3d预测今天最准预测号 | 晚秋3d今晚和值谜 | 3d开机号和试机号今天金码关注号 | 看彩大亨看独胆双胆预测 | 3d胆1拖9直选多少钱一注 | 3d太湖历史字谜 | 今晚3d专家预测精选一注 | 千禧3d今天的试机号 | 今天3d推荐号码今晚预测 | 3d千禧今晚试机号码 | 3d今天专家预测推荐号码 | 今天3d开机号和试机号查询结果彩吧 | 今晚3d专家预测汇总 | 福彩3D独胆明日分析 | 千禧之年3d开机号试机号金码关注 | 3d双胆 | 于海滨海3d预测免费每日精选3d开奖号 | 3d开机号今天近10期 | 3d十大专家精准预测汇总 | 3d专家预测最准牛彩网 | 3d今晚预测最准确一注 | 3d预测 下一期 3d预测专家 3d预测 | 今天3d正版太湖字谜 | 今天的3d开机号和试机号中奖号 | 于海滨3d今晚预测号码 | 于海滨杀码图今天最新 | 3D独胆专家分析 | 三d独胆 | 推荐一注3d号码 | 3d字谜汇总大全总汇大全 | 3d今晚必中一注一 | 3d专家最新最准预测 | 3d十大专家精准预测汇总 | 今日3d预测号码推荐 | 3d今晚上预测号码 | 今于海滨3d杀码图24210 | 3d预测今天更准 | 3d今晚的开奖号码 | 3d免费预测汇总牛彩网 | 天齐网专家杀码大全 | 3d钱王点评 | 小红人的三天计划今天是什么 | 3d试机号开机号今天晚上金码号 | 3d推荐最新最准专家预测 | 3d辽宁独胆王 | 天才计划三天计划独胆 | 3d藏机诗藏机图天中图库 | 3d三胆推荐 | 三d独胆| 3d今天专家推荐号码推荐 | 3d太湖字谜汇总今天 | 今日3d开机号和试机号关注码千禧 | 今日钱王给胆点评 | 今晚3d专家预测精选一注 | 今日3d开机号和试机号关注码千禧 | 正版真精华布衣天下今天推荐号码 | 3d杀码高手 | 3d近30期开机号试机号牛彩网 | 3d今天开机号和试机号多少 | 3d今晚最准专家预测号码145 | 3d今天专家预测最准确 | 3d今天晚上预测最准专家 | 北斗3d今日专家预测推荐 | 今日詹天佑3d预测 | 于海滨3d最新预测 | 3d今晚开奖号结果3b | 中国福彩3D独胆当天走势最新 | 3d今晚专家预测推荐 | 3d六大专家杀码汇总 | 排三今晚十拿九稳最新预测 | 3d今日专家推荐号 | 3d长中剑客预测今天 | 投资计划独胆三天计划 | 3d今天最新最准专家预测最 | 3d精准一注今天 | 3d今晚出的号码 | 千禧3d今晚的试机号码 | 万能三码的使用方法 | 于海滨3d预测号 | 3d最准预测专家预测大 | 3d今晚预测3d更准 | 3d专家推荐 | 最准3d预测专家推荐号 | 中国福彩3D独胆独家预测 | 7号电池最建议买的三个型号 | 今天3d开机号 和试机号 查询结果 | 3d预测专家推荐最准确 | 3d今日专家推荐 | 3d今天中了多少注直选 | 今天3d开机号 和试机号 查询结果 | 3d开奖号码结果 今晚 | 3d预测号码最准确专家预测 | 3d最准预测专家预测大 | 成功路上3d双胆独胆 | 3d直选形态走势图彩宝网 | 3d开奖必中| 《天才计划》三天计划独胆3d | 3d推荐最新最准专家预测 | 3d今晚专家推荐 | 小林3d最新预测今天 | 3d之家预测专家预测 | 今天3d必出一注 | 3d至尊计划独胆 | 3d必中直选 | 3d中国独胆王今天 | 3d和值基本走势图 | 3d最准确最新专家预测 | 3d今晚开机号试机号金码关注码今天 | 3d今天专家预测推荐号码 | 中国福彩3D独胆专家精准预测最新 | 3d徐文轩今晚推荐号码 | 3d北斗专家北斗预测今天079期3d | 中国福彩3D独胆团队命中率最新 | 豪哥看3d定位| 今晚3d直选一注 | 3d开机号试机号近100期开奖号码 | 3d今晚最准专家推荐号码 | 3d独胆10中10| 福彩3D独胆本期预测 | 今日3d推荐号码号 | 3d最精准的专家预测精选 | 中国福彩3D独胆最新必中 | 3D独胆明日分析 | 于海滨今天预测 | 3d最准预测号 | 3d今晚必中三个号码预测 | 3D独胆本期预测最新 | 3d独胆三天必出计划论坛 | 3d专家预测最准确最新今晚预测号 | 三d便民字谜图谜总汇 | 今天彩报中心 3d图库 | 钱王今天3d预测号 | 3d牛彩网试机号后专家预测汇总 | 今晚钱王点评推荐号 | 3d预测詹天佑 | 3d今天开机号和试机号金码对应码 | 于海滨专家预测3d | 3d跨度振幅走势图3d专家 | 3d詹天佑3d预测 | 3d火火人独胆双胆必中 | 3d开机号近30期列表彩宝网 | 3d藏机图正版藏机图全图牛彩网 | 最新3d预测专家预测 | 3d武当玉女掌门一句定三码字谜 | 三d三胆 | 3d双胆神算今天必下 | 3d必出规律胆 | 福彩3D独胆下期杀号最新 | 千禧3d关注码| 3d今天开机号和试机号开奖结果 | 千禧3d试机号金码关注码杀码今天3d | 福彩3D独胆老师精准预测最新 | 3d今晚必出号 | 3d牛彩网试机号后专家预测汇总 | 于海滨海3d专家预测今天 | 千禧试机号金码关注号对应码杀码 | 3d今天中了多少注直选 | 3d平均值走势图振幅3d之家 | 小红人的三天计划最新版 | 3d专家预测最准确今天 | 牛彩网3d专家预测汇总 | 三d之家独胆 | 3d直选综合走势图 | 3d于海滨上的今天预测保真 | 3d今晚推荐号 | 铁人铁胆3d包星定位最新今天 | 3d北斗专家北斗预测今天079期3d | 于海滨3d预测专家今天 | 3d预测一注号推荐 | 7号电池最建议买的三个型号 | 3d今天专家预测推荐号码 | 3D独胆团队精准预测最新 | 3d独胆双胆专家预测网 | 3d最新专家预测精选一注 | 于海滨专家3d今天预测 | 3d今天专家推荐号码推荐 | 3d字谜汇总大全总汇牛彩网开机号 | 排三十拿九稳今天预测 | 3D独胆下期预测 | 今日3d正版藏机图,藏机图汇总,天中网 | 3d试机号开机号关注号金码 | 今天的3d开机号和试机号查询 | 今天3d推荐号码今晚预测 | 3d今天精选五注 | 3d今天推荐号码 | 3d预测最新最准3d之家 | 太湖字谜3d和值谜 | 3d今天专家预测推荐号码 | 3d跨度分位走势图图感觉 | 福彩3D独胆最新必中最新 | 太湖钓叟三字诀字谜更新 | 今日排三太湖钓叟字谜三字诀 | 福彩3D独胆下一期推荐最新 | 3d千禧试机号关注号金码号开机号 | 财神一语定一注3d字谜 | 今日3d直选一注 | 3d玩彩老头预测今天号码 | 今天3d开机号试机号码 | 陈华今晚就赌一个胆今天最新更新内容 | 3d杀码十大专家天齐网 | 3d预测最准专家预测 | 唐龙点评每日一胆龙 | 3d最准确最新专家预测 | 3d军长独胆定位 | 3d今晚预测3d更准 | 独胆真人就打独胆今天 | 3d今天最新最准专家预测最 | 3d精准预测专家预测 | 3d单个冷号最大遗漏 | 龙彩居士3d预测今天最新版 | 3d最准专家预测号今晚3d试机号 | 3d预测最准确的专家 | 3d推荐最新最准专家预测 | 3d走势图基本走势图表 | 中国福彩3D独胆下期推荐推荐最新 | 千禧3d试机号关注码金码试机号 | 小薇3d预测今天推荐 | 专家精准预测3d号 | 排五开奖最新结果排5 | 3d千禧开机号试机号关注金码 | 千禧今晚3d试机号关注码金码 | 中国福彩3D独胆当天精准预测 | p3千禧试机号关注金码 | 3d今晚字谜太湖字谜是什么 | 3d今天专家预测推荐号码 | 3d专家预测最准确最新新闻 | 3d预测牛彩网预测汇总 | 3d太湖钓叟字谜三字诀了3d开奖 | 3d试机号开机号近50期 | 3d今晚最准专家推荐号 | 今天十拿九稳号码预测 | 3d陈华今晚就赌一个胆搜索一下 | 3d专家预测汇总 | 3d专家预测最新推荐 | 财神爷独胆三天计划,就这么牛 | 3d百十和尾振幅走势图走势 | 3d字图谜总汇 | 3d字谜总汇今日3d字谜总汇牛彩网 | 今晚3d天宇一句定三码字谜 | 3d每天都有开奖吗 | 今天晚上3d开奖结果 | 3d中间值振幅走势图之家 | 今天3d的开机号和试机号是多少号 | 3d今晚最准最新专家推荐号 | 3d预测今晚最准专家预测号码 | 3d藏机图正版藏机图太湖字谜 | 今天3d必出一注 | 今天3d试机号开机号是什么 | 独胆双胆3d之家 | 专家预测3d号码准确 | 3d预测专家最准最新 | 3d今晚最精准专家 | 3d牛彩网专家预测 | 中国福彩3D独胆下期最新分析 | 3d试机号后专家推荐汇总 | 3d免费专家预测推荐今天最新 | 今天的3d开奖号是多少 | 牛彩网p3专家预测汇总 | 3d最新最准专家预预测 | 3d汇总牛彩网 | 3D独胆高手走势最新 | 3d基本走势图(专业版)近200期 | 3d今晚专家预测推荐号 | 3d最准专家预测号 | 3d专家预测最准确今天南方双彩网 | 3D独胆高手走势最新 | 3d今天开机号和试机号100期 | 3d今天开机号和试机号码727 | 周不出最新3d杀码 | 3d专家预测号码手机牛彩网 | 3d今天专家预测推荐号码 | 3d开机号和试机号码牛彩网 | 中国福彩3D独胆独家必中最新 | 3d十大专家推荐号码汇总 | 于海滨海3d预测今天 | 3d太湖字谜三字诀 | 詹天佑最新预测3d | 3d今晚开奖号结果3b | 3d今晚必出号 | 今于海滨3d杀码 | 55125预测汇总3d| 3d詹天佑最新预测今天 | 千禧3d试机号金码关注码码关注码双彩论六个 | 3d最新最准预测号码今天 | 3d牛彩网采摘收集预测汇总 | 中国福彩3D独胆最新走势 | 3d最新准专家预测 | 3d双胆独胆非常非常稳定 | 今日3d太湖字谜三字诀试机号 | 3d今晚专家预测最准确一注 | 3d今天最准专家预测 | 3d今天专家推荐号码是多少 | 3d预测最准确的专家预测软件 | 3d图库彩吧彩报第三版 | 3d下期预测最精准的一注号码 | 3d今晚预测最准确一注 | 3d预测最新最准专家 | 3d今天预测最准确专家 | 3d陈华今晚独胆推荐 | 3d今日太湖字谜图 | 3d预测专家预测 | 3d预测牛彩网预测汇总 | 3d预测牛彩网预测汇总 | 3d千禧开机号试机号 | 3d开机号和试机号金码关注 | 3d下期预测最精准的一注号码 | 3d陈华今晚就赌一胆天齐网 | p3千禧试机号关注金码 | 福彩3D独胆当天分析最新 | 3d今晚开出什么号码 | 3d专家预测最准确 | 3预测,3d专家预测,最准确今天彩网 | 三d三胆| 3d牛彩网专家预测 | 十拿九稳预测最准100% | 3d预测专家推荐号码 | 3d计算公式 | 于海滨今日3d预测 | 3d专家预测最准确今天牛彩网 | 太湖字谜钓叟3d字谜 | 3d六码组三多少钱一注 | 3d百位绝杀一码 | 于海滨专家一语定胆十每日 | 专家精准预测3d号 | 3d今晚开奖号是多少 | 千禧3d试机号金码今天关注码对应码 | 3d十大专家双胆预测汇总 | 詹天佑今天3d推荐 | 3d带线走势图牛彩网 | 今晚3d开奖号走势图 | 3d直选100%中奖绝技软件 | 天齐网专家杀码大全 | 3d杀码专家杀码最精准 | 排三杀码专家 | 3d最新最准预测号码今天 | 3d开奖号今晚晚上 | 福彩3D独胆大神必中最新 | 3d预测最准最新准专家预测号码 | 3d开机号,试机号和开奖号 | 太湖3d字谜今天的 | 于海滨今日杀码图最新 | 今天的3d开奖号是多少 | 3d专家今日推荐号码 | 3d近500期试机号和开奖号码 | 专家预测3d号码准确 | 3d十大专家汇总精选一注 | 中国福彩3D独胆实时推荐 | 3d千禧开机号试机号关注金码 | 于海滨最新3d预测推荐今天 | 今天3d推荐号码今晚预测 | 3d千禧金码试机号关注码开奖号 | 千禧3d试机号金码关注码杀码今天3d | 3d 今天 试机号开机号 | 今日3d太湖字谜三字诀试机号 | 3d断组预测 | 今日詹天佑3d预测 | 2025315期3d开奖结果 | 唐龙3d预测今日出号点评 | 3d今天晚上的开奖号码 | 3d开机号试机号今天开奖号 | 今日3d直选一注 | 詹天佑最新预测 | 3d独胆是几 | 3d专家预测最准确最新新闻 | 3d专家最新最准专家预测 | 3d专家预测最准确最新新闻 | 3d直选100%中奖绝技 | 3d于海滨专家预测 | 精准3d独胆 | 3d今晚专家推荐预测重点号码 | 3d和尾振幅走势图3d专家 | 3d之家双胆独胆预测 | 毒牛人三天计划 | 3d试机号今天开机号查询 | 3d最精准的专家预测精选 | 3d专家预测最准 | 3d计算公式 | 三d预测专家最新推荐 | 3d今晚最佳和值 | 十拿九稳预测专家分析 | 今日3d预测专家推荐 | 3d预测最准确的专家预测软件 | 3d推荐最新最准专家预测 | 3d专家预测最准确最新新闻 | 3d钓叟字谜三字诀官网 | 3d预测专家推荐号码 | 3d太湖字谜总汇大全 每天更新 | 3d一句定三码最准字谜 | 小红人的三天计划今天是什么 | 3d最新专家预测推荐 | 3d预测最准确专家预测 | 3d今晚预测最准确一注 | 3d最精准专家预测汇总今天 | 3d专家预测最准最新 | 3d铁人包星定胆天齐网 | 3d今晚专家预测推荐号 | 3d专家今天推荐号 | 3d今天专家预测号码最准确 | 3d双胆| 张克永专家3d预测 | 3d推荐牛彩网 | 3d预测最新最准专家 | 3d上下五千年专家预测 | 玩彩独胆王三天计划 | 3d推荐号今晚专家预测 | 3d十大专家精准预测汇总 | 3d试机号后专家预测 | 3d预测专家最准确 | 专家预测3d号码准确 | 唐龙每日一胆天齐网 | 3d推荐最新最准专家预测 | 3d太湖一语定胆字谜论坛 | 3d字谜太湖解字谜 | 白姐3d今天预测号码 | 3d今日专家推荐号 | 3d今天预测号 | 福彩3D独胆明日精准预测 | 3d图谜字谜总汇 | 3d千禧开机号和100期试机号 | 财神爷独胆三天计划,就这么牛 | 3d今日推荐号 | 太湖字谜钓叟3d字谜 | 今日3d专家预测号最准确 | 3d廊坊鸿运 | 3d今晚最准专家预测号码145 | 3d今天预测最准确专家 | 成功路上3d双胆独胆 | 唐龙一胆今天最新 | 毒胆牛人三天计划必出 | 毒胆牛人三天计划今天 | 3d开奖号码结果 今晚 | 3d陈华今晚独胆推荐 | 3d今日专家推荐号 | 马后炮解今日太湖字谜三字诀 | 3d最新专家预测汇总大全 | 3d今天专家推荐号码推荐 | 3d预测专家汇总预测 | 3d开机号试机号今天开奖号 | 3d谜语字谜太湖天齐网 | 3d和值尾振幅走势图近50期 | 3d今晚出啥号 | 3d百个位和值尾走势图 | 3d推荐最新最准专家预测 | 3d所有走势图 | 福彩3D独胆下期杀号最新 | 3D独胆老师分析 | 3d预测专家最准确 | 于海滨点评专家一语定胆保真版 | 太湖3d字谜三字诀 | 3d和值推算公式 | 3d 今日太湖字谜 | 千禧试机号及金码 | 3d之家北斗今日预测 | 3d布衣独胆王正版今天 | 今日3d开机号和试机号关注码千禧 | 中国福利3d今天模拟试机号 | 3d毒胆双胆三胆 | 3d财神爷独胆双胆双飞计划三天 | 3d试机号后专家预测汇总手机网 | 双胆王看双胆3d | 今天最新3d开机号试机号关注码 | 3d牛彩网.| 3d预测今晚最准专家预测号码 | 三d预测专家最新推荐 | 今晚3d专家推荐重点号码 | 今天3d詹天佑预测分析 | 3d今晚必出的一注 | 3d走势图基本走势图 | 三d五码复式打一注多少钱啊 | 3d专家预测最准确最新推荐号码 | 今天的3d太湖字谜今天晚上 | 今于海滨3d预测今天 | 今晚3d专家预测汇总 | 3d今晚出的什么号 | 3d杀码图专区,杀码图 | 3d开机号试机号30期列表彩宝网 | 3d今晚专家预测最准确一注 | 3d今晚十大专家预测汇总 | 于海滨3d最新预测 | 天才计划三天计划独胆 | 排3太湖钓叟字谜三字诀 | 3d今晚专家预测推荐号 | 福彩3D独胆下一期推荐最新 | 3d百位个位和值走势图 | 3d各类和值最新谜字谜今天 | 最准3d专家预测推荐 | 三d预测专家最新推荐 | 3d十大专家杀跨度汇总 | 3d走势图专家推荐号码 | 于海滨点评专家一注定胆保真版162期 | 3d独胆10中10 | 3d预测今晚最准 | 3d推荐牛彩网 | 3d预测最准最新准专家预测号码 | 3d开机号和试机号今天千禧 | 神仙姐姐杀码今天的 | 3d最准专家预测 | 3d杀码图谜 | 3d最近100期历史记录 | 三d走势图基本走势图彩宝网 | 3d最准的预测专家 | 3d字谜总汇图| 3d今天千禧试机号关注号金码 | 今日3d开奖号码是多少? | 今日3d开奖号今晚 | 3d独胆必下一独胆3d独胆预测 | 最准3d专家预测推荐 | 今晚3d开奖结果是多少 | 3d千禧今晚试机号码 | 牛彩网3d预测 | 3d通杀一码准确率100% | 今天3d开机号和试机号牛彩网 | 3d号码预测和推荐号今天 | 3d最准预测专家推荐 | 小红人的三天计划最新版 | 3d专家预测推荐号码 | 今晚3d预测最准一注 | 3d直选走势图(专业版) | 3d和值走势图(带连线图) | 3d预测号码最准最新准专家预测号家彩网 | 詹天佑3d预测推荐 | 于海滨专家3d今天预测 | 3d今天专家推荐号码推荐 | 3d开机号和试机号今天查询 | 3d今晚开机号试机号金码关注码今天 | 3d跨度振幅近100期走势 | 于海滨专家预测3d两吗 | 3d湘西胆王今日字谜 | 三d预测最准十专家预测今晚 | 手机牛彩网3d预测 | 3d最准确最新专家预测 | 3d专家预测于海滨 | 3D独胆下期最新精准预测 | 3D独胆今晚命中率 | 3d下期专家预测 | 今日3d太湖字谜更新 | 牛彩网p3专家预测汇总 | 3d彩吧图库44462 | 3d开机号今天牛彩网近30期 | 3d今晚专家推荐预测重点号码 | 正版真精华布衣天下今天推荐号码 | 3d预测专家精准推荐 | 3d藏机图正版藏机图汇总今天最新图片 | 马后炮解3d太湖钓叟字谜总汇大全 | 试机号开机号金码关注号对应码3d | 3d预测詹天佑最新 | 铁人铁胆定位包是预测 | 毒胆牛人三天计划今天 | 3d预测今日最新推荐 | 三d便民字谜图谜总汇 | 铁人真胆一句定三码3d字谜彩搜网 | 3d牛彩网试机号后专家预测汇总 | 3d开机号试机号30期列表彩宝网 | 3d谜语解太湖字谜 | 3d振幅和值尾走势图 | 3d千禧试机号关注码金码是什么 | 3d最准确预测100%一注 | 3d专家预测汇总牛彩网彩摘收集 | 3d专家预测最准确今天南方双彩网 | 3d藏机图正版藏机图 | 3d预测今晚推荐号 | 3d千禧开机号试机号 | 3d旧版基本走势图表 | 3d走势图和值振幅 | 3d今天开机号和试机号码牛彩网 | 中国福彩3D独胆当天精准预测最新 | 牛彩预测汇总3d最新 | 福彩3D独胆最新必中最新 | 3d预测专家最准确 | 小红人的计划三天计划 | 3d预测号码最准最新准专家预测号家彩网 | 今天3d开机号试机号对应码列表 | 3d预测廊坊鸿运 | 陈华今晚独胆特别关注 | 3d之家预测专家预测 | 天齐网3d必中两胆今天 | 3d专家预测最准确最新今天 | 3d开奖号今天结果 今晚 | 3d开机号和试机号金码今天的 | 3d今天专家预测推荐号码 | 3d精准预测最准的专家 | 3d千禧开机号试机号关注金码 | 三天计划独胆牛人 | 3d精准预测专家预测 | 3d于海滨专家预测 | 3d近300期试机号和开奖号码 | 3d预测专家精准推荐 | 3d预测专家最准确的专家预测今晚 | 3d百位绝杀一码 | 3d跨度走势图图表 | 于海滨一语定胆《保真》 | 投资独胆三天计划论坛 | 3d百个位差值振幅走势图100期 | 三d推荐号专家预测今天 | 今天3d精选一注 | 3d最大值振幅走势图3之家 | 于海滨最新3d预测今天 | 3d今天开机号和试机号码727 | 于海滨海3d预测免费每日精选3d开奖号 | 福彩3D独胆高手杀号最新 | 三d五码复式打一注多少钱啊 | 千禧3d试机号金码关注码对应码今晚 | 千禧3d试机号关注码金码今天的 | 3d千禧试机号关注金码30期 | 3d专家预测号码推荐今天 | 3d中2个号多少钱 | 于海滨一语定胆天齐网 | 3d预测专家最准确的专家预测今晚 | 3d今晚精选预测一注 | 今晚3d开奖号走势图 | 唐龙一胆| 于海滨海3d预测保真 | 杀码3d杀码图 | 3d专家预测更准确今天 | 3d最新专家预测精选一注 | 于海滨3d预测牛彩网 | 3d十大专家独胆 | 3d今天专家推荐号码 | 3d和值012走势图带连线图 | 于海滨今日3d预测 | 最准3d预测专家推荐号 | 解3d字谜太湖钓叟汇总 | 今晚3d开机号试机号 | 3d最近100期历史记录 | 3d预测最准最新准专家预测号码 | 3d带连线走势图(专业版) | 三天计划胆十组合 | 3d预测最准确的专家 | 3d鬼手字谜和谜 | 今日3d正版藏机图,藏机图汇总,天中网 | 于海滨3d预测免费每日精选 | 3d专家预测最准最新 | 3d独胆专家预测 | 福彩3D独胆最新推荐最新 | 万能四码找下期奖号 | 3d专家预测号码最准确 | 今晚3d开奖直选结果 | 3预测,3d专家预测,最准确今天彩网 | 3d谜语今天字谜今天的3d字谜是什么? | 3d最准的预测专家 | 3d推荐号今晚专家预测 | 中国福彩3D独胆下期分析最新 | 3d解太湖字谜汇总 | 3d直选一注50倍单挑 | 千禧试机号金码关注号对应码杀码 | 3d精准预测推荐 | 3d推荐最新最准专家预测 | 3d专家今天预测一注 | 小红孩3d独胆今天 | 3d预测专家推荐 | 3d单选一注能中多少钱 | 3d专家预测推荐号码 | 于海滨今天杀码 | 3d白娘子跨度字谜汇总今天牛彩网 | 3d专家预测最准确今天牛彩网 | 3d今天专家推荐号码 | 专家预测3d号码准确 | 3d开心毒胆独胆王 | 3d预测最准的专家 | 3d今天开机号试机号3 | 3d带连线专业版走势图表 | 财神一注3d | 3d今晚最准一注 | bbs,55125:cn彩吧论坛 | 三d独胆 | 3d六码组三多少钱一注 | 3d之家预测专家预测 | 3d今天最新最准专家预测最 | 3d千禧试机号金码关注码 | 3d精选号码推荐今天最新 | 3d今天专家预测号码 | 万能四码找下期奖号 | 3d最准确预测专家 | 豪哥看3d定位 | 3d专家解今日太湖字谜汇总 | 3d专家推荐最新预测 | 排三杀码专家定位杀码天齐网 | 3d牛彩网今天开机号试机号 | 3d免费专家预测推荐今天最新 | 3d今天专家预测推荐号码 | 3d今天开机号,试机号 | 十拿九稳预测专家分析 | 3d今晚专家预测推荐 | 3d今于海滨杀码图 | 六鬼神算图3d谜图 | 开奖结果3d今天晚上 | 排三专家推荐与预测今天 | 唐龙一胆| 3d三天计划独胆王 | 3d詹天佑预测汇总 | 3d今晚精选预测一注 | 3d今晚十大专家预测汇总 | 今天3d开机号和试机号码结果查询 | 3d双胆,独胆非常非常稳定 | 3d真实的谎言字谜总汇正版 | 今天3d藏机图正版藏机图藏机图太湖横屏 | 今晚3d专家推荐 | 今日3d专家推荐号码 | 3d今天开机号和试机号码 | 今天晚上的3d开奖结果 | 3d推荐号今晚专家预测 | 3d于海滨上的今天预测 | 3d号码预测和推荐号今天 | 3d今晚开奖号多少 | 中国福彩3D独胆内部走势最新 | 3d今天开机号和试机号322 | 近300期3d和值走势图 | 3d开机号今天近10期 | 牛彩网3d预测 | 孟庆会老师3d分析预测 | 看彩大亨看独胆双胆预测 | 3d专家最新最准专家预测汇总 | 3d双胆独胆非常非常 | 今天3d开机号和试机号 | 3d专家最新最准专家预测 | 3d专家预测最新 | 牛彩网3d专家预测 | 3d基本走势结果 | 3d詹天佑预测分析牛彩网 | 3d杀码高手 | 3d预测专家精准推荐 | 3d预测专家精准推荐号 | 3d今天推荐号码是多少 | 3d最准专家预测方法 | 于海滨预测号 | 3d独胆专家预测 | 十大专家3d预测汇总 | 太湖3d字谜图谜总汇 | 3d独胆公式正确率在99%以上 | 中国福利3d今天模拟试机号 | 孟庆会点评 专家一语定胆 稳准狠三天计划 | 张克永专家3d预测 | 中国福彩3D独胆实时精准预测 | 牛彩网杀码大全 | 3d预测最准最新准专家预测 | 3d推荐号今晚专家预测 | 3d北盟天机图藏机图 | 3d于海滨上的今天预测保真 | 3d于海滨杀码图 | 今日3d钱王点评 | 3d千禧试机号开机号对应码关注号 | 3d下期预测最精准的一注号码 | 3d近300期试机号和开奖号码 | 福彩3D独胆下期推荐最新 | 3d专家预测号码最准确 | 3d近30期开机号试机号牛彩网 | 3d预测专家推荐最准确 | 福体杀码王最新版本更新内容 | 太湖叟3d字谜湖字谜 | 牛彩网近30期3d开机号试机号 | 3d今晚最准最新专家推荐号 | 3D独胆下期推荐分析最新 | 3d詹天佑最新预测 | 福体杀码王最新版本更新内容 | 3d专家预测最准 | 3d今晚出什么号? | 开心毒胆王今晚独胆 | 3d八哥图库总汇d字谜图谜总汇大全 | 3d独胆专家推荐独胆 | 3d独胆专家预测 | 3d预测最准的专家预测 | 3d村独胆双胆3 | 今天彩报中心 3d图库 | 3d今晚和值字谜 | 3d和值尾振幅走势图3d走势3d之家 | 3d今天专家预测号码最准确 | 3d今天晚上的开奖号码 | 3d今晚预测最准确一注 | 十拿九稳的最新预测 | 3d预测专家最准最新 | 于海滨一语定胆 | 三d预测牛彩网汇总 | 3d专家预测于海滨 | 今天3d太湖钓叟字谜三字诀 | 3d于海滨预测预测牛彩网 | 祖师爷独胆三天计划 | 今晚解太湖3d字谜 | 太湖3d字谜太湖钓叟三字诀 | 3d手机预测牛彩网 | 于海滨今天杀码 | 今天3d太湖钓叟三字诀字谜 | 今晚钱王点评推荐号 | 3d开机号和试机号9.30分 | 3d白娘子跨度字谜汇总今天牛彩网 | 今天的3d推荐号码是多少 | 3d今晚最准的一注 | 今天3d开机号和试机号查询结果彩吧 | 3d千禧试机号关注号金码号开机号 | 3d预测牛彩网预测汇总 | 毒胆牛人三天计划必出 | 今晚3d专家推荐重点号码 | 3d双胆中中中 | 今于海滨3d杀码 | 3d今晚专家预测最准确号码 | 3d今晚最新预测 | 于海滨海3d预测保真 | 十拿九稳预测专家分析 | 于海滨海3d预测保真 | 3d开机号和试机号今天金码关注号 | 3d独胆必下一独胆布衣正 | 今日太湖钓叟三字诀字谜 | 3d今晚专家预测推荐 | 铁人铁胆包星定位今天最新结果 | 铁人铁胆包星定位今天最新结果 | 中国福彩3D独胆最新推荐 | 3d中国独胆王今天 | 3d今天专家推荐号码推荐 | 于海滨3d每日杀一码 | 3d怎么守号不亏 | 陈华3d今晚就赌一个胆 | 3d最精准的专家预测精选 | 今天3d试机号开机号牛彩网 | 无敌胆王独胆双胆 | 下一期专家推荐号码 | 3d李明启最新预测今天 | 乾坤三天计划独胆预测 | 3d詹天佑预测分析牛彩网 | 苏会文3d预测今天推荐 | 3d千禧金码试机号关注码 | 今于海滨3d预测彩吧图 | 3d最新预测专家推荐 | 3d预测专家准确推荐 | 全民胆王3d独胆一个 | 3d今天开机号 试机号查询 | 中国福彩3D独胆专家精准预测 | 牛彩预测汇总3d最新 | 福彩3D独胆老师必中 | 今天最准3d预测号 | 3d天宇和值谜字谜 | 独胆三天计划 | 15选5预测最准十专家预测 | 3d开机号和试机号今天全部 | 今于海滨3d杀码 | 3d最准确最新专家预测 | 3d开机号试机号码牛彩网 | 3d钱王点评 | 詹天佑3d今日预测 | 3d老炮子直选三注 | 3D独胆本期预测最新 | 福彩3D独胆老师分析最新 | 今天3d专家预测号码 推荐 | 3d胆预测天齐网 | 福彩3D独胆最新推荐最新 | 千禧3d开机号试机号金码 | 3d杀码公式最新 | 3d和走势图 和值尾连线 | 3d北斗专家北斗预测今天079期3d | 陈华3d今晚赌独一胆天齐网 | 3d走势图基本走势图 | 于海滨今天预测 | 3d今晚预测100% | 3d预测最准确的专家预测软件 | 今天3d詹天佑预测分析 | 3d预测号码最准确专家预测 | 3d预测今晚最准专家预测号码 | 3d今晚专家预测最准确一注 | 3d十大专家汇总精选一注 | 一代女王p3杀两胆独胆 | 3d太湖字谜汇总今天 | 万能三码的使用方法 | 3d孔方来萃解太湖字谜 | 3d最小差值振幅走势图 | 排五预测最准专家 | 于海滨预测3d号 | 福彩3D独胆今晚必中最新 | 3d今晚试机号开奖号 | 3d独胆预测 | 3d和值基本走势 | 3d最新专家预测汇总大全 | 3d预测天齐网 | 玩彩独胆王三天计划 | 3d基本走势图表新浪网 | 3d图谜字谜总汇 | 3d直选精准100%免费 | 3d楚人今晚预测今天 | 3d预测专家推荐号码推荐 | 3d专家预测最准确最新今晚预测 | 3d预测号码最准确专家预测 | 千禧金码关注码试机号 | 3d于海滨专家预测 | 3d预测最准的专家预测 | 3d专家预测最准确最新新闻 | 于海滨海3d预测保真 | 福彩3D独胆下一期走势最新 | 太湖3d字谜太湖钓叟三字诀 | 3d 试 机 号今晚 | 太湖3d字谜图谜总汇 | 今晚3d预测最准一注 | 今日3d字谜3d一句定三码诗天中图 | 我是毒胆王,今晚独胆 | 3d最精准专家预测汇总今天 | 3d今天的试机号开机号是多少 | 詹天佑今天3d推荐 | 3d直选一注今天 | 3d十大专家精准预测 | 今于海滨3d杀码图24210 | 千禧p3试机号关注号金胆对应号 | 于海滨最新预测今天 | 3d彩宝贝试机号今天最新 | 3d彩界精英独胆双胆 | 于海滨最新3d预测今天 | 3d家彩预测 | 专家预测3d号码准确 | 3d预测最准最新准专家预测 | 太湖钓叟3d字谜太湖字 | 3d北斗专家北斗预测今天079期3d | 3d精准预测最准的专家直选 | 3d开机号试机号今天最新50期 | 今天3d牛彩网专家预测 | 今日3d预测号 | 3d陈华今晚就赌一胆天齐网 | 3d专家预测推荐号码最准最新 | 小红人的三天计划最新版 | 3d和值推算公式 | 于海滨杀码今天最新版 | 3d今晚专家推荐号 | 今晚3d开奖号码多少 | 财神爷独胆三天计划,就这么牛 | 3d开心毒胆独胆王 | 今晚3d推荐号 | 三d预测专家最新推荐 | 于海滨杀码图 | 3d之家预测专家预测 | 3d专家预测汇总牛彩网 | 3d太湖字太湖字谜 | 詹天佑今日最新点评 | 今天3d开机号和试机号多少? | 3d今晚推荐号 | 3d最新最准预测号码今天 | 3d今晚必中三个号码预测 | 3d专家预测最准最新 | 小薇3d预测今天推荐 | 3d专家预测最准确最新今天牛彩 | 3d专家预测最准确最新推荐号码 | 福家老三3d推荐号 | 3d今晚字谜太湖字谜是什么 | 3D独胆今晚命中率 | 3d太湖老情人字谜图谜 | 3d 今天 试机号开机号3 | 3d预测专家精准推荐 | 今天3d开机号和试机号多少? | 3d预测最准确专家预测 | 3d杀码图天齐网 | 3d最精准的专家预测精选 | 3d开机号今天近10期 | 3d走势图(专业连线版) | 3d今晚开奖号是多少 | 3d藏机图正版藏机图全图牛彩网 | 3d专家最新最准专家预测 | 今晚3d推荐号 | 3d下期预测最精准的一注号码 | 3d独胆必下一独胆 | 3d今晚预测最新最准确号码牛彩网 | 今天3d数字定位三 | 3d最准一注号码 | 3d今晚预测最新最准确号码牛彩网 | 3d专家今天推荐号 | 太湖试机号后一句定三码3d字谜 | 一定牛3d杀码 | 3d今天开机号和试机号牛彩网 | 排3藏机图正版藏机图今天 3d八哥图库总汇d字谜图谜总汇大全 | 3d直选走势图(专业版) | 3d今晚必出的一注 | 今天3d太湖钓叟三字诀字谜 | 3d双胆,独胆非常非常稳定 | 3d预测号最新最准牛彩网 | 3d今晚最准最新专家推荐号 | 3d藏机图正版藏机图诗汇总 | 福彩3D独胆团队分析最新 | 3d最近基本走势图 | 今天3d必出一注 | 今天3d专家推荐重点号 | 3d今天专家预测最准确 | 3d今晚出啥号 | 3d詹天佑预测分析牛彩网 | 福彩3D独胆实时杀号 | 3d跨度振幅走势图3d专家 | 3d今日预测最准专家预测 | 3d手机牛彩网专家预测 | 3d专家今天推荐号 | 3d今晚预测直选四注 | 3d预测专家最准确今天 | 3d最新准专家预测 | 3d今晚开奖号码多少 | 3d今天专家预测号码最准确 | 今天3d牛彩网专家预测 | 于海滨杀码今天最新版 | 3d今天开机号试机号对应码关注码 | 3d今晚上预测号码 | 3d败家子独胆图 | 3d专家解今日太湖字谜汇总 | 3d谜语解太湖字谜 | 太湖字谜三字诀论坛 | 大师诸葛亮今晚一个独胆 | 3d专家预测最准今天 | 3d综合走势图直选 | 3d今天专家预测推荐号码 | 3d预测号专家预测 | 于海滨3d预测 | 看彩大亨最新独胆预测 | 3d开机号和试机号今天多少 | 排五开机号试机号今天查询 | 3d最近基本走势图 | 3d推荐最新最准专家预测 | 今天晚上3d推荐号码 | 3d试机号开机号近50期 | 3d今晚试机号是多少 | 3d今晚惊天一注预测 | 3d今晚开奖号码结果是多少 | 3D独胆独家推荐 | 3d预测一注号推荐一3d预测一注今天 | 3d走势图全图表 | 55125预测汇总3d | 于海滨最新3d预测今天 | 今日3d开奖号太湖字谜总汇 | 铁人铁胆3d定位包星预测 | 于海滨3d预测天齐网 | 牛彩预测汇总3d最新 | 三d字谜总汇大全 | 福彩3D独胆老师杀号最新 | 于海滨3d预测牛彩网 | 3d最精准专家预测汇总今天 | 今日3d十大专家双胆总汇 | 3d预测专家最准确的专家预测今晚 | 专家预测3d号码准确 | 北斗3d今日专家预测推荐 | 3d走势图基本走势图表 | 3d开机号和试机号码牛彩网 | 今天3d开机号和试机号查询结果彩吧 | 试机号千禧关注金码 | 3d今晚预测最新最准确 | 最准的3d专家预测 | 3d最新专家预测推荐 | 福彩3D独胆独家走势 | 3d牛彩网专家预测 | 3d正版藏机图谜汇总 | 3d杀码图汇总牛彩网 | 3d预测专家推荐号码 | 3d专家预测号码推荐今天 | 3d单双走势图表 | 3d字谜汇总大全总汇大全 | 今晚3d专家预测精选一注 | 今晚3d专家预测精选一注 | 3d今天晚上的开奖号码 | 于海滨杀码今天最新版 | 3d千禧试机号码金码关注码 | 铁人铁胆3d定位包星 | 解3d字谜太湖钓叟汇总 | 3d一语定胆字谜今天 | 3d最新准专家预测 | 天齐网3d必中两胆今天 | 财神一注3d| 3d今晚试机号是多少 | 3d今晚开奖号结果 | 3d最准专家预测号今晚3d试机号 | 今晚3d专家预测精选一注 | 今天的3d开机号和试机号查询 | 3d今天专家预测号码 | 3d今天专家预测推荐号码 | 3d独胆是什么意思 | 今于海滨最新预测今天 | 排三专家杀码 | 钱王点评十钱王给胆下一期预测 | 3d今晚一注| 今晚3d专家推荐 | 3d预测詹天佑最新 | 3d牛彩图谜字谜总汇九 | 福彩3D独胆专家杀号 | 钱王点评+钱王老头预测 | 3d,预测 | 3d最新专家预测推荐 | 3d专家预测牛彩网 | 3d预测最准确专家预测牛彩网 | 3d 今天 试机号开机号3 | 3d十大专家预测汇总 | 3d推荐号今晚专家预测最准确 | 今日正版藏机图全部汇总239期 | 试机号后牛彩网专家预测3d | 3d今天专家预测推荐号码 | 3d专家推荐最新预测 | 于海滨一语定胆 | 老炮子3d直选三注 | 3d图谜总汇字谜 | 福彩3D独胆下一期必中 | 3d预测号码最准最新准专家预测号 | 3d字谜历史记录 | 今天十拿九稳号码预测 | 3d今晚十大专家预测汇总 | 3d开奖结果近10期 | 3d今天的开机号和试机号查询 | 今天专家推荐号码3d | 陈华3d今晚就赌一个胆天齐网 | 3d杀码更准确 | 3d今晚最稳 | 3d专家最新最准专家预测汇总 | 3d近30期开机号试机号牛彩网 | 3d晶晶必下一独胆今天 | 今天3d双双独胆字谜 | 7号电池最建议买的三个型号 | 十拿九稳今天预测专家 | 3d预测专家精准推荐 | 3d百个和值尾振幅走势图 | 3d专家预测推荐号码 | 于海滨的今日预测 | 今天3d开机号 试机号是多少 | 3d今晚专家预测最准确一注 | 3d最准预测专家预测大 | 3d中奖多少钱一注 | 于海滨今日杀码图最新 | 3d今天的试机号开机号是多少 | 3d近100期开机号码 | 3d今晚最准最新专家推荐号 | 今日3d开机号和试机号关注码千禧 | 今天3d开机号和试机号多少? | 3d今天专家推荐号码是多少 | 于海滨3d预测牛彩网 | 三地杀码高手 | 中国福彩3D独胆团队命中率最新 | 3d独胆双胆专家预测网 | 3d推荐最新最准专家预测 | 三d十拿九稳预测号码 | 3d专家预测最准最新今天 | 3d今晚预测直选一注3d一注预测 | 2025排五守号推荐 | 3D独胆实时必中最新 | 3D独胆明日推荐最新 | 中国福彩3D独胆最新必中最新 | 3d计算机开机号夏天推荐 | 3D独胆最新分析 | 3d陈华今晚独胆推荐 | 牛彩网近30期3d开机号试机号 | 3d两胆必出方法 | 3d今晚预测最准确一注今天 | 3d和值尾振幅走势图50期 | 3d今晚一注推荐 | 3d开机号试机号奖号 | 今天专家推荐号码3d | 3d每期必中27注 | 中奖开奖结果3d | 3d推荐号3d推荐号码 | 3d精准预测推荐 | 今晚3d开机号试机号金码关注码 | 3d双胆大师今天 | 今天专家推荐号码3d | 字谜3d太湖马后炮 | 布衣杀码图3d杀码 | 3d独胆王独胆预测 | 3d今晚开奖号是多少 | 千禧三地试机号对应码金码 | 3d专家预测号码推荐今天 | 3d今晚专家推荐预测重点号码 | 3d今天开机号和试机号码 | 3d最新最准专家预测号码 | 杀码3d杀码图 | 最新3d预测专家预测 | 3d字太湖叟字谜 | 3d十大专家预测汇总 | 3d预测号码最准最新推荐 | 三d预测专家最新推荐 | 经典小胆王三天计划配组合 | 3d开机号和试机号9.30分 | 3d玩彩老头预测今天号码 | 3d今日开机号和试机号及关注码 | 今晚3d预测专家预测号 | 3d跨度振幅3d之家走势图 | 今天最准3d预测号 | 3D独胆明日分析 | 3d彩宝网开机号和试机号 | 3d近300期试机号和开奖号码 | 3d字太湖叟字谜 | 牛彩网3d预测汇总大全手机版下载 | 3d独胆双胆天齐网 | 3d北斗专家北斗预测今天079期3d | 今晚3d的试机号是 | 3d预测号码最准最新准专家预测号家彩网 | 3d藏机图正版藏机图全图牛彩网 | 今晚3d开奖号是多少 | 3d预测专家最准最新 | 3d最精准专家预测汇总今天 | 3d最新专家预测汇总大全 | 3d今天开机号,试机号 | 3d今晚开奖号码多少 | 3d试机号今天晚上金码92期 | 排三十拿九稳今天预测 | 福彩3D独胆老师走势最新 | 3d千禧试机号金码关注码 | 3d独胆预测 | 3d千禧试机号金码关注码对应码 | 3d预测今晚最准 | 今天3d专家推荐号 | 3d分析预测 | 于海滨一语点评今日 | 3d走势图专家推荐号码 | 3d专家预测最准确今天上一期 | (暴富密码)绝杀两码预测 | 3d专家预测最准最新今天 | 3d三胆| 太湖字谜钓叟3d字谜 | 太湖字谜钓叟3d字谜 | 中国福彩3D独胆当天精准预测最新 | 于海滨3d预测天齐网 | 3d今晚和值推荐 | 3d今天专家预测推荐号码 | 3d十大专家双胆预测汇总 | 3d财神爷今晚独胆 | 今晚3d开奖号试机号 | 3d开奖号码结果 今晚 | 3d最准预测专家预测大 | 3D独胆下一期精准预测 | 3d詹天佑预测分析牛彩网 | 福彩3D独胆独家走势 | 于海滨海3d专家杀码 | 3d今天专家预测最准确 | 今晚于海滨海3d预测3d | 3d今晚专家预测推荐号 | 3d和值走势图表综合版 | 3d专家预测更准确今天 | 3d最准确最新专家预测 | 3d陈华今晚独胆推荐 | 3d今晚精准一注推荐 | 3d最近1000期走势图表综合版图片 | 3d于海滨预测预测牛彩网 | 今晚开奖号码3d开奖结果 | 3d藏机图正版藏机图太湖字谜 | 3D独胆团队精准预测最新 | 3d怎么守号不亏 | 3d预测最准最新准专家预测号码 | 3d今天最新最准专家预测最 | 3d最精准专家预测汇总今天 | 3d今晚最准专家推荐号码 | 福彩3D独胆下期最新分析 | 3d今晚专家推荐 | 2008年359期3d焰舞字谜 | 于海滨杀码图牛彩 | 3d今晚预测最准确一注今天 | 3d试机号后专家预测 | 今日3d马后炮解太湖字谜 | 3d精选号码推荐今天最新 | 于海滨点评专家一注定胆保真版 | 今晚解太湖3d字谜 | 3d今天开机号和试机号码300 | 3d专家推荐最新预测 | 于海滨3d预测免费 | 福彩3D独胆下一期推荐最新 | 百位振幅走势图3d之家 | 3d推荐号今晚专家预测最准确 | 福彩3D独胆大神精准预测最新 | 千禧之年3d开机号试机号金码关注 | 3d打一个独胆中了多少钱 | 3d今天开机号和试机号查询100期 | 于海滨专家3d今天预测 | 今于海滨最新预测今天 | 3d今天开机号和试机号是多少 | 十拿九稳预测分析 | 3d开机号与试机号金码 | 3d近30期开机号试机号牛彩网 | 3d百十差振幅走势图 | 3d和值基本走势 | 三天计划独胆牛人 | 福彩3D独胆大神精准预测最新 | 3d专家今日推荐号码 | 3d藏机图正版藏机图打印版 | 3d走势图全图表 | 3d今晚专家预测最准确一注 | 3d成功路上人双胆独胆 | 独胆双胆3d之家 | 3d紫云涧专家预测推荐 | 三d试机号后专家预测汇总 于海滨专家3d今天预测 | 今晚3d专家推荐号码是多少 | 今天3d开机号 试机号是多少 | 今天3d开机号 试机号是多少 | 今天3d专家推荐重点号 | 3d今晚必出号预测 | 3d今天预测最准确专家 | 3d预测最准的专家预测 | 3D独胆团队命中率最新 | 3d和值尾振幅走势图专业版 | 今日3d专家预测号码 | 3d走势图的基本走势图 | 今日3d太湖字谜三字诀试机号 | 3d陈华今晚就赌一胆天齐网 | 3d百个位和值尾走势图 | 今晚3d预测推荐一注 | 太湖三字诀字谜三 | 3d两胆王 | 3d今晚精选预测一注 | 2014年359期3d焰舞字谜 | 3d最佳一注号码 | 超级毒胆 | 3b预测汇总牛彩网 | 陈华3d今晚赌独一胆天齐网 | 解3d字谜太湖钓叟汇总 | 3d专家预测最准确 | 3d最新专家预测汇总大全 | 3d今天推荐号码是多少 | 福彩3D独胆明日分析 | 福彩3D独胆团队必中 | 太湖3d字谜图谜总汇 | 3d杀码图天齐网 | 3d解太湖字谜汇总精选 | 今天3d字谜3d一句定三码3d和值谜 | 3d牛彩网专家预测 | 3d专家预测今天最新准确号 | 3d预测推荐汇总牛彩网采摘收集 | 3D独胆明日精准预测 | 3d预测最准的专家预测 | 3d预测推荐汇总 | 【独胆真准】3d | 3d专家杀码天中图库 | 3d太湖字谜图谜总汇 | 于海滨3d今晚预测号码 | 3d藏机图正版藏机图诗汇总 | 今日期3d太湖字谜 | 唐龙一语定胆3d今天 | 3d和值走势图(专业版) | 3d推荐号今晚专家预测最准确 | 3d推荐号今晚专家预测 | 于海滨一语点评今日 | 3d最准的预测专家 | 千禧3d今天的试机号 | 3d藏机图正版藏机图全图牛彩网 | 3d中奖| 3d连线走势图表图 | 3d最精准的专家预测 | 3d预测专家推荐 | 3d八哥图库总汇d字谜图谜总汇大全 | 詹天佑3d今天最新预测 | 3d独胆必下一个胆 | 玩彩独胆王三天计划 | 今日3d预测号码推荐 | 3d北斗专家北斗预测今天079期3d | 3d专家预测最准确最新新闻 | 预测今晚3d一注 | 今晚3d开机号和试机号是多少 | 3d和值尾振幅走势图近50期 | 今天3d开机号 试机号是多少 | 3d试机号开机号今天查询排五 | 3d跨走势图带连线走势图 | 3d预测号码最准最新推荐 | 3d精准三注直选 | 3d图谜字谜总汇 | 高手看3d经典独胆组合 | 3d专家预测最准确最新新闻 | 财神爷独胆三天计划,就这么牛 | 3d最准预测 | 骄子铁鹰解3d字谜今日 | 3d万能大底共250注直选 | 3d今晚专家预测推荐 | 3d试机号后专家预测推荐汇总 | 今天的3d推荐号码是多少 | 今日3d预测号码推荐 | 3d预测专家最准确 | 今晚3d专家推荐号 | 太湖字谜钓叟3d字谜 | 3d太湖钓叟字谜三字诀 | 3d牛彩网专家预测 | 今日3d太湖字谜三字诀排三开奖结果 | 3d千禧试机号开机号金码 | 3d专家预测最准确最新今天 | 于海滨3d预测免费每日精选 | 今日3d开机号和试机号关注码千禧 | 3d今天最新最准专家预测最 | 3d开奖号走势图表 | 孟庆会老师3d预测彩吧图库今天 | 3d专家预测最准确最新今晚预测 | 3d推荐号| 3D独胆明日推荐最新 | 于海滨杀码图牛彩 | 3d双胆预测3d双胆下3d 双胆推荐 | 3d今天的试机号开机号 | 3d预测总汇手机牛彩网 | 今天晚上的3d开奖结果 | 今晚3d和值推荐 | 陈华3d今晚赌独一胆天齐网 | 3d最准的预测专家 | 3d今天的推荐号 | 解今日太湖3d字谜 | 千禧试机号及金码 | 3d字图谜总汇 | 3d专家预测最准最新今天 | 3d预测今日最新推荐 | 3d邻孤传走势图乐彩 | 3d精准三注直选 | 3d预测最准专家预测号 | 张克永3d预测今天 | 今于海滨3d杀码 | 3d最新专家预测汇总 | 于海滨3d预测牛彩网 | 天齐网3d首页保真版3d预测 | 于海滨点评专家一语定胆保真版 | 彩宝3d专业走势图 | 今于海滨杀一码 | 福彩3D独胆老师精准预测最新 | 3d谜语太湖钓叟3d谜语今天 | 3d今天专家推荐号码 | 中国福彩3D独胆当天走势最新 | 小财神三天计划独胆 | 无敌胆王独胆双胆 | 3d千禧试机号关注码金码今天晚 | 今日詹天佑3d预测分析 | 3d太湖字太湖字谜 | 于海滨3d预测今天 | 3d最新专家预测汇总牛部长预测 | 太湖字谜三字诀论坛 | 3d专家预测最准确最新今天牛彩 | 今天太湖字谜三字诀是什么 | 小林3d预测| 福彩3D独胆最新推荐最新 | 3d最精准的专家预测精选 | 3d开机号和试机号金码关注 | 3d今晚专家预测最准确一注 | 今天3d正版太湖字谜 | 3d太湖老情人字谜图谜 | 3d今晚专家推荐预测重点号码 | 今天3d推荐号码今晚预测 | 3d今晚最稳一注 | 3d开奖号走势图表 | 昨天3d开奖号是多少 | 3d正版藏机图总汇全图 | 3d独胆专家推荐独胆 | 3d预测今晚最准专家预测号码 | 3d预测最准最新准专家预测 | 今晚3d专家预测汇总 | 3d预测詹天佑最新 | 太湖解3d字谜汇总 | 3d今天推荐号码是多少 | 3d詹天佑最新预测今天 | 今日3d钱王点评 | 3d开奖必中| 今天3d千禧试机号关注号金码号 | 3d今晚预测直选一注 | 排三今晚十拿九稳最新预测 | 3d开机号试机号今天最新50期 | 3d最大值振幅走势图3之家 | 3d今天专家预测号码 | 3D独胆老师预测 | 3d组三一注多少钱 | 千禧开机号和试机号对应金码 | 3d近100期开机号码 | 3d百个和值尾振幅走势图 | 3d詹天佑| 3d今天专家预测最准确 | 一代女王决杀两胆免费观看 | 3D独胆下期推荐预测最新 | 3d天中杀码图专区 | 3d专家预测最准最新 | 3d今晚专家预测最准确一注 | 于海滨点评专家一注定胆保真版 | 3d专家预测号码最准确 | 3d今晚推荐号码最新 | 3d今晚必出号预测 | 3d最准预测专家汇总大全 | 3d直选走势图(专业版) | 牛彩网3d预测汇总大全手机版下载 | 3d北斗专家北斗预测今天079期3d | 今日3d太湖字谜三字诀 | 詹天佑3d最新预测今天 | 3d预测号码最准确专家预测 | 3d杀码图谜 | 3d推荐最新最准专家预测 | 今日钱王给胆点评 | 3d开奖必中| 3d圣手字谜图谜 | 3d太湖字太湖字谜 | 3d村独胆双胆3 | 3d天中杀码图专区 | 晚秋3d今晚和值谜 | 今日3d字谜太湖钓叟字谜正版 | 牛彩网3d预测汇总大全手机版下载 | 7号电池最建议买的三个型号 | 三d预测专家 | 3d静态版预测静态版 | 陈华3d今晚就赌一个胆 | 3d预测最新最准3d之家 | 投资计划3d乐彩论坛 | 千禧今晚3d试机号关注码金码 | 3d十大专家预测汇总 | 3d太湖解字谜 | 3d和值推算公式 | 3d带线走势图牛彩网 | 3d独胆双胆专家预测网 | 7号电池最建议买的三个型号 | 3d和值振幅走势图彩宝贝 | 3d单个冷号最大遗漏 | 3d开机号和试机号金码关注 | 福彩3D独胆明日分析最新 | 3d最新专家预测推荐 | 3d十大专家预测汇总 | 3d预测专家最准确的专家预测 | 今晚钱王点评推荐号 | 3d最准专家预测方法 | 福彩3D独胆专家杀号 | 手机牛彩网3d预测 | 2009年浙江风采3d走势图 | 3d预测最准确专家预测牛彩网 | 3d预测今晚最准专家预测号码 | 试机号千禧关注金码 | 看彩大亨最新独胆预测 | 3d千禧试机号关注码金码今天晚 | 3d预测今晚最准专家预测号码 | 今天3d开机号 试机号是多少 | 今晚3d专家推荐重点号码 | 中国福彩3D独胆实时推荐 | 3d预测晚 | 3d最晚间字谜汇总大全 | 福彩3D独胆明日精准预测 | 3d每期必中27注 | 3d今天专家预测最准确 | 3d预测专家最准确的专家预测今晚 | 詹天佑3d今晚预测号码 | 3d直选100%中奖绝技 | 于海滨专家预测3d | 3d最准确最新专家预测 | 3d推荐最新最准专家预测 | 3d最佳一注号码 | 3d预测最准专家预测牛彩网 | 于海滨3d预测| 十拿九稳十大专家预测汇总最新一期 | 3d毒毒毒胆胆胆中中中 | 排3太湖钓叟字谜三字诀 | 3d紫云涧专家预测推荐 | 3d今晚开奖结果号码是 | 3d晚间字谜总汇大全 | 3d预测专家推荐最准确 | 钱王今天3d预测号 | 3d开机号和试机号金码关注 | 小红人的三天计划最新版 | 福彩3D独胆大神精准预测 | 3d专家预测最准确今天牛彩网 | 3d今天开机号和试机号 | 3d开机号和试机号是多少 | 3d就打一个胆中了多少钱 | 3d和值尾振幅走势图3d之家 | 3d预测最准专家预测 | 今晚3d精准一注直选 | 3d独胆双胆3d之家 | 3d今晚专家预测 | 3d专家预测最准确最新今晚预测 | 3d跨度遗漏值振幅走势图彩经网 | 3d今晚预测直选一注 | 3d走势图带连线图表牛彩网 | 今天3d开机号 试机号是多少 | 于海滨杀码图天齐网 | 3d预测 下一期 3d预测专家 3d预测 | 解太湖3d字谜太湖 | 今晚3d专家推荐号码是多少 | 3d千禧试机号金码关注码 | 于海滨今日3d预测 | 3d专家推荐预测号 | 3d精准预测最准的专家直选 | 3d预测廊坊鸿运 | 今日精准预测推荐3d号码 | 3d千禧试机号金码关注最近10期 | 牛彩网3d走势图表 | 3d每天一个独胆 | 陈华3d今晚赌独一胆天齐网 | 排五开机号试机号今天查询 | 3d专家预测最准确最新今天 | 3d独胆双胆专家预测网 | 3d均值振幅走势图表图 | 3d老炮子直选三注 | 3d预测最准最新准专家预测号码 | 3d专家预测汇总大全 | 3d字谜太湖解字谜 | 一代女王杀两胆 | 3d试机号历史出现情况天齐网 | 三d专家杀码 | 今天三字诀太湖字谜 | 今天3d詹天佑预测分析 | 3d牛彩网今天开机号试机号 | 孟庆会3d预测今天 | 3d独胆双胆专家预测网 | 中国福彩3D独胆最新必中 | 3d开机号试机号近100期开奖号码 | 3d百十个位杀码家彩网 | 3d预测最准最新准专家预测 | 3d太湖字谜官网 | 3d十大专家独胆 | 今于海滨3d预测今天单线联系 | 3d今晚专家预测推荐 | 3d专家预测推荐号码最准最新 | 唐龙点评每日一胆龙 | 3d试机号开机号今天晚上金码号 | 钱王点评+钱王老头预测 | 藏机图3d正版总汇 | 3d近30期开机号试机号牛彩网 | 今天3d金码试机号对应码开机号 | 中奖开奖结果3d | 3d最精准的专家预测 | 三d预测最准十专家预测今晚 | 3d今天专家推荐号码推荐 | 3d独胆三天必出计划论坛 | 3d今天晚上的开奖号码 | 3d今晚上预测号码 | 3d牛彩网.| 3D独胆团队命中率最新 | 3d开机号今天近10期 | 今于海滨3d预测今天牛彩网 | 3d双胆独胆| 排五开机号试机号今天查询 | 太湖3d字谜三字诀 | 十拿九稳预测专家分析 | 3D独胆今晚命中率最新 | 3d试机号后专家预测推荐汇总 | 3d今晚精准一注 | 3d中间最小两码差值振幅走势图 | 3d开心毒胆独胆王 | 3d怎么守号不亏 | 中国福彩3D独胆专家精准预测 | 3d两胆王| 开心毒胆王今晚独胆 | 3d近30期开奖号码 | 中国福彩3D独胆当天精准预测最新 | 3d直选是什么意思 | 3d谜语太湖钓叟3d谜语今天 | 中国福彩3D独胆高手命中率 | 3d真实的谎言字谜总汇正版 | 布衣杀码图3d杀码 | 彩宝3d专业走势图 | 家彩专门提供3d试机号开机号 | 3d专家预测最准今天 | 3d和值尾振幅走势图近50期 | 3d最准确最新专家预测 | 3d谜语字谜太湖天齐网 | 3d最准一个独胆方法 | 三d的试机号是多少今天 | 3d必中直选 | 3d最新准专家预测 | 3d杀码十大专家 | 今晚3d专家预测 | 3d老炮子直选三注 | 福彩3D独胆高手预测 | 3d今晚预测准确的专家预测 | 3d财神爷今晚独胆 | 廊坊鸿运3d预测今天 | 3d两胆必出方法 | 3d预测最准确专家预测 | 3d藏机图正版藏机图汇总今天最新图片 | 3d最准预测专家汇总大全 | 3d专家推荐 | 今晚3d开机号试机号金码 | 马到成功杀两码最新版本更新内容 | 3d最准专家预测号今晚3d试机号 | 今晚3d专家预测汇总 | 福彩3D独胆明日分析 | 3d今日专家推荐 | 明天太湖3d三字诀 | 钱王今天3d预测号 | 3d双胆独胆非常稳 | 3d字太湖叟字谜 | 今日3d专家预测号码 | 铁人铁胆3d包星定位最新今天 | 3d最准确预测专家 | 3D独胆团队走势 | 今晚3d结果开奖号码 | 3d预测专家 | p3故事小王双胆下一今天 | 千禧开机号试机号关注号金码杀码 | 今日3d预测专家推荐 | 今晚3d和值推荐 | 千禧3d试机号关注码金码试机号 | 3d试机号后专家预测推荐汇总 | 今日3d开奖号今晚 | 3d预测专家最准确今天 | 排三杀码专家定位杀码天齐网 | 于海滨3d免费预测 | 福家老三3d推荐号 | 3d预测最准预测号 | 今晚3d开机号试机号金码关注码 | 3d预测号码 | 今天3d必出一注 | 廊坊鸿运3d预测今天 | 3d和值和尾走势图带连线图表 | 三d推荐号专家预测今天 | 3d今晚专家推荐 | 于海滨最新3d预测推荐今天 | 今天晚上的3d开奖结果 | 近100期3d开机号和试机号 | 于海滨海3d专家预测 | 3d上下五千年专家预测 | 今天3d开机号和试机号多少 | 3d最准预测专家预测大 | 3d北斗专家北斗预测今天079期3d | 今日3d大老人预测号 | 孟庆会老师3d分析预测 | 今于海滨一语定胆保真今天 | 3d今日开机号和试机号及关注码 | 陈华3d今晚赌独一胆天齐网 | 3d专家预测最准确 | 3d今天开机号和试机号码 | 3d小鱼图今日背面字谜 | 3d今天的试机号和开机号 | 3d图谜总汇字谜 | 3d今晚预测最新最准确号码牛彩网 | 3d今天推荐号码是多少 | 3d最准预测专家预测汇总 | 福彩3D独胆本期命中率 | 布衣杀码图3d杀码 | 3d推荐号3d推荐号码 | 3d十位走势图带连线图表专业版 | 3d杀码高手| 3d和值跨度走势图带连线 | 3d定位独胆王三个双飞 | 3d推荐号今晚专家预测 | 3d陈华今晚就赌一胆今天最新消息 | 唐龙3d预测今日出号点评 | 3d最准确专家预测 | 3d最新基本走势图表 | 今天晚上3d推荐号码 | 3d真帝王杀码图 | 3d十大专家推荐号码汇总 | 3d和值尾振幅走势图近50期 | 3d独胆必下一 | 太湖叟3d字谜湖字谜 | 唐龙3d预测号 | 3d近30期开机号试机号牛彩网 | 3d今晚专家预测推荐 | 3d近500期试机号和开奖号码 | 独胆三天计划 | 3d和值尾振幅走势图近50期 | 于海滨3d今晚预测号码 | 今晚3d专家预测精选一注 | 3d千禧今晚试机号码 | 3d最准预测专家预测汇总 | 推荐一注3d号码 | 3d今晚精选预测一注 | 3D独胆本期推荐最新 | 3d和值专家推荐和值 | 3d预测专家推荐号码 | 3d试机号今天晚上是多少 | 3d预测最准的专家预测 | 于海滨3d杀码图145 | 三d预测牛彩网汇总 | 3d今晚的独胆 | 陈华今晚3d赌一胆天齐网 | 3d字谜汇总大全总汇牛彩网开机号 | 福彩3D独胆最新预测 | 3d专家推荐预测号 | 今日3d太湖字谜三字诀洞庭游侠 | 3d今天专家预测最新最准 | 3d今天专家推荐 | 3d专家预测最准确最新推荐号码 | 今晚3d专家预测精选一注 | 最准的3d专家预测 | 3d开机号和试机号金码和关注码 | 3d紫云涧专家预测推荐 | 3d最精准独胆王 | 于海滨海3d预测保真 | 3d今晚预测最准确一注今天 | 于海滨3d彩吧图库 | 3d邻孤传走势图乐彩 | 今晚3d专家预测精选一注 | 于海滨3d最新预测 | 钱王点评十钱王给胆下一期预测 | 于海滨3d预测天齐网 | 3d今晚最准专家推荐号 | 3d北丐七爷独胆 | 3d和值尾振幅走势图近50期 | 3d詹天佑最新预测 | 财神爷独胆三天计划,就这么牛 | 3d小红人三天计划 | 于海滨专家一语定胆十每日 | 3d今晚最准专家预测号码 | 3D独胆最新分析 | 3d跨度振幅走势图3d专家 | 张克永3d预测今天 | 3d今晚预测最新最准确 | 3d牛彩网预测汇总 | 3d百个位差值振幅走势图100期 | 于海滨专家预测 | 3d北斗专家北斗预测今天079期3d | 3d字谜太湖钓叟三字诀今天 | 毒胆牛人三天计划 | 于海滨专家一语定胆十好心人 | 3d十个位差值振幅走势图3d之家 | 3d开机号,试机号,金码号,对应码100 | 今天3d正版太湖字谜 | 3d预测今日最新推荐 | 于海滨3d最新预测 | 顶级胆神双胆下一 | 3d免费精准直选三注 | 3d和值尾振幅走势图3d走势3d之家 | 3d组选中一注多少钱 | 福彩3D独胆本期命中率 | 千禧试机号金码关注 | 3d往年历史今天开奖结果 | 3d专家今日推荐号码 | 铁人铁胆包星定位今天最新结果 | 3d双飞怎么买多少钱一注 | 今晚3d天宇一句定三码字谜 | 3d个位走势图表 | 3d预测一注号推荐一3d预测一注今天 | 铁人铁胆3d定位包星 | 3d开机号试机号今天最新50期 | 3d今天专家推荐号码推荐 | 今晚3d专家推荐号码是多少 | 3d杀码十大专家天齐网 | 3d和值尾遗漏走势图 | 3d旧版基本走势图表 | 孟庆会老师3d预测彩吧图库今天 | 3d专家预测最准确| 今晚3d天宇一句定三码字谜 | 3d十大专家推荐号码汇总 | 3d直选一注50倍单挑 | 今天的3d开奖号是多少 | 3d八哥图库总汇d字谜图谜总汇大全 | 千禧之年3d开机号试机号金码关注 | 明天的3d太湖字谜 | 3d今天最新最准专家预测最 | 3D独胆实时推荐最新 | 牛彩网近30期3d开机号试机号 | 3d最精准一注 | 3d北斗专家北斗预测今天079期3d | 3d独胆公式正确率在99%以上 | 千禧今晚3d试机号关注码金码对应 | 福彩3D独胆下一期命中率最新 | 3d专家预测推荐号最新 | 今晚3d专家预测汇总 | 3d詹天佑最新预测 | 今晚3d的开奖号码结果 | 3d千禧金码试机号关注码 | 3d双胆大师今天 | 今晚三d推荐什么号码 | 3d预测推荐汇总牛彩网采摘收集 | 今于海滨3d预测今天单线联系 | 3d今晚专家推荐预测重点号码 | 詹天佑3d今天最新预测 | 3d老虎独胆| 3d今天专家预测推荐号码 | 3d最佳一注号码 | 3D独胆大神分析 | 千禧今晚3d试机号关注码金码对应 | 3d今日开机号和试机号及关注码 | 今日3d专家预测号最准确 | 马后炮解3d太湖字谜总汇大全 | 3d预测专家推荐号码推荐 | 天齐网3d首页保真版3d预测 | 3d预测号码最准最新准专家预测号 | 3d牛彩网试机号后专家预测汇总 | 3d定胆技巧准确率100% | 3d武当玉女掌门一句定三码字谜 | 今日3d蓝仙子一句定三码字谜 | 3d今晚最准专家推荐号码 | 3d今晚最新奖号 | 排三十拿九稳今天预测 | 3d最新专家预测汇总 | 3d白娘子跨度字谜汇总今天牛彩网 | 3d长中剑客预测今天 | 三地千禧试机号关注金码对应码 | 近1000期3d开奖结果 | 2014年359期3d焰舞字谜 | 3d推荐号今晚专家预测 | 3d杀码高手 | 3d开机号试机号今天最新50期 | 今天3d开机号试机号对应码列表 | 今日3d太湖字谜三字诀洞庭游侠 | 3d计算公式精准100%计算 | 3d今晚预测最准确一注 | 3d专家预测最准最新今天 | 于海滨海3d专家预测今天 | 唐龙预测一胆今天 | 3d今晚专家预测推荐号 | 今日排五专家推荐与预测 | 于海滨3d杀码图 | 3d北斗专家北斗预测今天079期3d | 3d今晚专家预测最准确号码 | 于海滨点评专家一语定胆保真版 | 3d双胆中中中 | 3d上下五千年专家预测 | 今天3d太湖钓叟三字诀字谜 | 今天3d字谜3d一句定三码3d和值谜 | 3d最精准的专家预测精选 | 3d和值基本走势图新浪网 | 3d字谜总汇今日3d字谜总汇牛彩网 | 3d今晚上专家推荐号 | 3d字谜财神一语定一注 | 3d今晚出啥号 | 财神爷独胆三天计划,就这么牛 | 牛彩网3d专家预测汇总 | 3d千禧开机号试机号关注金码对应码 | 3d最新最准预测号码 | 太湖钓叟排三字诀字谜 | 今晚3d专家推荐号码是多少 | 3d专家预测最准确今天南方双彩网 | 今天3d开机号和试机号金码 | 3d预测廊坊鸿运 | 于海滨杀码今天最新版 | 3d预测专家汇总预测 | 3d藏机图正版藏机图诗汇总 | 3d基本走势图表新浪网 | 三d预测专家最新推荐 | 3d专家预测推荐 | 今天3d开机号和试机号多少? | 3d今晚预测最新最准确 | 3d独胆中了给多少钱 | 今天最新3d开机号试机号 | 3d今晚专家预测最准确号码 | 3d千禧试机号关注号金码号开机号 | 今天3d金码试机号对应码开机号 | 千禧3d试机号关注码今天 | 3d试机号关注号金码对应码开机号 | 近30期3d开机号和试机号 | 三d今日太湖字谜解 | 北斗3d今日专家预测推荐 | 3d今天开机号和试机号码 | 3d双胆独胆非常稳 | 于海滨海3d专家预测今天 | 3d最准专家预测方法 | 3d杀码图 | 于海滨专家一语定胆十好心人 | 3d今晚一注直选 | 3d预测总汇 | 3d今晚专家预测重点号码 | 专家彩宝贝预测汇总 | 3d预测一注号推荐 | 3d今晚的独胆 | 3d预测专家最准确的专家预测 | 15选5预测最准十专家预测 | 3d千禧试机号关注号金码号开机号 | 3d双胆图 | 3d十大专家精准预测汇总 | 三d预测专家最新推荐 | 3d预测专家推荐 | 今晚3d预测推荐一注 | 3d最新最准预测号码今天 | 今天3d专家预测汇总 | 3d预测专家最准确的专家预测今晚 | 3d预测一注号推荐今晚 | 3d杀码图汇总牛彩网 | 3d今天预测最准确专家 | 马后炮解今日太湖字谜三字诀 | 3d专家预测最准最新今天 | 今晚3d专家最精准的预测 | 今于海滨3d预测今天牛彩网 | 今晚3d专家推荐号码是多少 | 中国福彩3D独胆当天走势最新 | 中国福利3d今天模拟试机号 | 福彩3D独胆下期推荐预测 | 3d专家预测最准确最新汇总 | 3D独胆实时推荐最新 | 3d十大专家汇总精选一注 | 3d千禧试机号开机号对应码关注号 | 3d预测最准确专家预测牛彩网 | 今晚3d精准一注直选 | 专家3d专家推荐 | 福彩3D独胆独家命中率最新 | 3d专家预测最新 | 3d十大专家预测汇总 | 3d近30期开机号试机号开奖号查询 | 3d最准预测专家推荐 | 3d号码预测和推荐号今天 | 今晚3d开奖结果是多少 | 三d今晚预测推荐十注 | 3d百位绝杀一码 | 3d预测最准确的专家预测软件 | 3d牛彩网专家预测 | 3d于海滨专家预测 | 于海滨今天3d预测号 | 于海滨点评专家一注定胆保真版162期 | 福彩3D独胆下期杀号最新 | 于海滨海3d预测今天 | 3d单选一注能中多少钱 | 乾坤三天计划独胆预测 | 3d詹天佑最新预测 | 3d于海滨上的今天预测保真 | 3d推荐最新最准专家预测 | 3d太湖字谜一语定胆 | 3d于海滨上的今天预测 | 3d金码开机号和试机号 | 3d最准专家预测号 | 3d专家预测汇总牛彩网彩摘收集 | 陈华3d今晚就赌一个胆 | 3d今天出的什么号 | 于海滨3d今晚预测号码 | 3d预测天齐网 | 3d姜子牙一句定三码最准字谜汇总 | 3d百十个位杀码家彩网 | 3d太湖字谜三字诀 | 于海滨专家预测 | 3d预测最准的专家 | 3d双胆独胆 | 3d预测专家推荐号码推荐 | 3d预测专家最准确的专家预测今晚 | 今晚3d专家预测汇总 | 詹天佑推荐3d | 西施姐姐精心推算一独胆146 | 3d最新专家预测汇总大全 | 3d必中永久直选500注大底 | 3d和值振幅走势图彩宝贝 | 3d今晚开出什么号码 | 今晚3d预测最准一注 | 詹天佑3d今晚预测号码 | 独胆真人就打独胆今天 | 3d两胆精准预测 | 今天3d专家推荐号 | 3d今晚最准专家预测号码145 | 3d专家预测号码推荐今天 | 3d千禧试机号关注号金码号开机号 | 今天最新3d开机号试机号 | 3d太湖字谜总汇大全 每天更新 | 3d推荐最新最准专家预测 | 福家老三3d推荐号 | 3d直选一注今天 | 廊坊鸿运3d推荐今天 | 3d直选精准100%免费 | 3d专家预测更准确今天 | 天府袍哥3d预测 | 今天3d专家推荐号 | 于海滨3d最新预测 | 3d预测今晚推荐号 | 3d今晚预测最新最准确号码牛彩网 | 中国福彩3D独胆下期最新必中 | 3d开机号,试机号,金码号,对应码100 | 3d最精准的专家预测 | 3d专家预测最准确最新今晚预测 | 今日3d开机号和试机号关注码千禧 | 3d十大专家双胆预测汇总 | 3d预测号码最准确专家预测 | 3d藏机图正版图汇总 | 3d之家双胆独胆预测 | 3d试机号后专家预测汇总 | 财神爷三天计划必下更新 | 千禧今晚3d试机号关注码金码 | 千禧3d今晚的试机号码 | 3d北丐七爷独胆 | 今日3d大老人预测号 | 3d今晚最准专家预测号码 | 3d开奖号码今晚走势图 | 真实的谎言3d字谜追加和值谜 | 詹天佑3d预测 | 3d小鱼图今日背面字谜 | 于海滨海3d专家预测 | 3d北丐七爷独胆 | 今天3d开机号试机号对应码列表 | 福家老三3d推荐号 | 3d预测最准最新准专家预测号码 | 3d专家预测最准最新今天 | 3d詹天佑预测分析牛彩网 | 于海滨海3d预测牛彩网 | 彩宝贝十大专家杀蓝号 | 3d专家预测最准确今天牛彩网 | 于海滨3d预测号 | 3d最新专家预测汇总大全 | 3d独胆是什么意思 | 3d开机号今天牛彩网近30期 | 于海滨精准杀码图 | 千禧关注码试机号金码 | 开心毒胆王今晚独胆 | 3d独胆双胆专家预测网 | 财神爷三天计划 | 3d绝杀二码今天最新更新内容 | 3d北斗专家北斗预测今天079期3d | 3d今晚专家预测重点号码 | 3d预测号码最准最新准专家预测号 | 千禧今晚3d试机号关注码金码对应 | 今日3d专家推荐号码 | 中国福彩3D独胆专家精准预测最新 | 福家老三3d推荐号 | 3d必中永久直选500注大底 | 今日太湖字谜3d字谜太湖钓叟 | 3d开机号和试机号30期列表 | 3d预测号码最准确专家预测 | 3d和值尾振幅走势图3d走势3d之家 | 3d最准一注(单挑王) | 排三今晚十拿九稳最新预测 | 福彩3D独胆下期推荐精准预测 | 于海滨3d预测免费每日精选 | 十大专家3d预测汇总 | 3d百十和值尾振幅走势图 | 福彩3D独胆大神精准预测最新 | 3d直选综合走势图表 | 今天的3d推荐号码是多少 | 3d预测今晚推荐号 | 3d今晚精准一注 | 于海滨海3d专家杀码 | 3d彩吧预测,预测 | 3d各路专家预测汇总大全最新 | 3d万能三码中奖秘诀 | 于海滨精准杀码图 | 3d小龙一句定三码今日字谜天中图 | 中国福彩3D独胆当天精准预测 | 3d专家今天预测汇总 | 3d专家预测最准最新今天 | 3d预测专家最准最新 | 今天3d牛彩网专家预测 | 3D独胆实时必中最新 | 3d今天专家推荐号码推荐 | 于海滨海3d预测今天 | 财神爷独胆三天计划,就这么牛 | 3d和尾振幅走势图3d专家 | 3d今天开机号和试机号开奖结果 | 3d开机号今天试机号30期 | 于海滨点评专家一注定胆保真版162期 | 神仙姐姐今天最新杀码 | 福家老三3d推荐号 | 3d今晚试机号是多少查询 | 3d下期预测最精准的一注号码 | 今晚3d预测推荐一注 | 3d今日开机号和试机号及关注码 | 布衣杀码图3d杀码 | 3d今天专家预测推荐号码 | 3d中国独胆王今天 | 今天三d专家推荐号码 | 3d走势图全图表 | 3d精准推荐号 | 中国福彩3D独胆本期命中率 | 3d预测专家最准确的专家预测昨天 | 龙彩居士3d预测今天最新版 | 今晚3d一注直选 | 3d跨度金木水火土五行走势图 | 3d今晚预测直选一注 | 3d直选一注多少钱 | 3d最新准专家预测 | 3d基本走势综合图 | 3d中2个号多少钱 | 3d专家今日推荐号码 | 3d十位胆方法100准确 | 3d单双走势图表 | 于海滨海3d预测牛彩网 | 3d今晚试机号牛彩网 | 詹天佑今日3d预测 | 3d今晚最准确一注 | 今日3d预测 | 3d最新最准专家预预测 | 3d千禧试机号金码关注最近10期 | 今天3d杀码| 3d万能四码走势图表 | 3d百位遗漏振幅走势图南方双彩网 | 3d和值尾振幅走势图彩宝贝 | 3d最准确预测专家 | 3d预测今晚最新最准确 | 3d各类和值最新谜字谜今天 | 今天3d字谜解太湖字谜 | 3d开机号和试机号金码今天的 | 今晚3d专家预测精选一注 | 李明启3d今晚预测专栏 | 布衣3d独胆双胆王 | 3d专家预测精选一注 | 3d预测今日最新推荐 | 3d字谜汇总大全总汇大全 | 3d两胆精准预测 | 3d预测最准的专家预测 | 3d今晚专家预测最准确号码 | 牛彩网近30期3d开机号试机号 | 三d预测专家预测今天最新 今于海滨3d预测 | 3d今晚专家看独胆 | 3d推荐号今日预测 | 3d试机号后专家预测推荐汇总 | 3d于海滨上的今天预测 | 3d预测最准专家预测 | 张克永3d预测今天 | 彩吧3d开机号 | 3d预测专家推荐最准确 | 3d最新专家预测汇总大全 | 3d最新专家预测汇总大全 | 3d开机号试机号今天最新50期 | 于海滨海3d杀码图 | 福彩3D独胆下期推荐必中 | 万能6码走势图 | 3d专家预测推荐最新 | 3d近300期试机号和开奖号码 | 3d开机号和试机号金码关注对应号 | 3d六码复式多少钱一注 | 3d今晚专家预测最准确一注 | 3d试机号开机号今天金码关注 | 3d今晚最准专家预测号码 | 于海滨海3d专家杀码 | 福彩3D独胆大神精准预测最新 | 于海滨一语定胆《保真》 | 3d彩界元宝就看一个独胆 | 3d独胆必下一独胆3d独胆预测 | 3d专家推荐最新预测 | 3d预测最准预测号 | 经典小胆王三天计划配组合 | 千禧3d试机号金码关注码对应码今晚 | 3d谜语今天字谜今天的3d字谜是什么? | 今日3d正版藏机图,藏机图汇总,天中网 | 3d彩界精英独胆双胆 | 3d直选注| 一定牛3d一注号推荐3d预测今天 | 3d专家预测最准确今天3d | 于海滨彩吧图库 | 3d近30期开机号试机号开奖号查询 | 福彩3D独胆团队必中 | 3d今于海滨杀码图 | 詹天佑3d今晚预测号码 | 3d今晚专家预测推荐号 | 3d最小值振幅走势图3之家 | 太湖三字诀字谜三 | 3d家彩网 | 3d的最新走势图表 | 最精准杀码王 | 今天龙头凤尾预测 | 彩宝3d专业走势图 | 3d预测最新最准专家推荐号码 | 今日精准预测推荐3d号码 | 张克永3d预测今天 | 3d千禧开号试机号关注金码对 | 今天买哪三个号码好 | 今天3d正版太湖字谜 | 3d今天专家推荐号码 | 3d走势图专业版(带连线) | 3d独胆陈华今晚就赌一个胆 | 3d彩界精英独胆双胆 | 3d今天的试机号开机号是多少 | 詹天佑3d今天预测分析 | 3d今天预测最准确专家 | 3d和值牛彩网 | 今于海滨3d预测今天牛彩网 | 3d今天推荐号码是多少 | 3d万能大底共250注直选 | 3d太湖一语定胆字谜论坛 | 3d计算机开机号夏天推荐 | 3d定胆准确率100 | 3d独胆之家 | 中国福彩3D独胆实时精准预测 | 3d号码预测和推荐号今天 | 3d预测号码最准确专家预测 | 3d双胆| 3d走势图基本走势图 | 3d专家预测最准确最新今晚预测 | 3d今晚惊天一注预测 | 3d解太湖字谜汇总 | 3d开机号和试机号今天 今晚 | 3d开机号,试机号和开奖号 | 于海滨3d预测今天 | 3d今天千禧试机号关注号金码 | 3d上下五千年专家预测 | 3d推荐号今晚专家预测 | 今晚3d专家推荐号码 | 今日焰舞3d焰舞字谜汇总大全 | 排三平均值振幅走势图3d之家 | 专家推荐最热一注是什么 | 3d开机号试机号关注号金码对应码 | 廊坊鸿运3d最新预测 | 今晚3d专家推荐号码是多少 | 3d专家今日推荐号码 | 北斗3d今日预测 | 3d专家预测最准确今天南方双彩网 | 3d的最新走势图表 | 3d百个位差值振幅走势图100期 | 3d今晚开奖号结果3b | 投资计划独胆三天计划 | 3d今晚和值推荐 | 唐龙点评3d预测今天 | 中国福彩3D独胆内部杀号 | 3d陈华今晚独胆推荐 | 3D独胆明日精准预测 | 三d预测汇总 | 3d开机号今天试机号查询 | 3d单一跨度走势图表 | 3d詹天佑最新预测今天 | 今天3d专家预测号码 推荐 | 今晚3d的试机号是 | 3d小红人三天计划 | 专家预测3d号码准确 | 杀码是什么意思 | 3d詹天佑3d预测 | 3d北斗专家北斗预测今天079期3d | 3d跨度5有多少注 | 今天的3d推荐号码是多少 | 西施姐姐就赌一个独胆 | 3d计算公式精准100%计算 | 3d十大专家推荐号码汇总 | 3d专家解太湖字谜汇总 | 3d毒胆王独胆 | 3d今晚最新预测 | 3d陈华今晚就赌一胆o11预测 | 3d最准预测 | 3d今晚最稳一注 | 3d推荐号今晚专家预测 | 3d今晚字谜太湖字谜是什么 | 今日3d马后炮解太湖字谜 | 3d今晚预测最准确一注今天 | 3d专家预测汇总牛彩网 | 3d预测汇总 | 3d今晚试机号开奖号 | 3d陈华今晚就赌一胆天齐网 | 天才计划三天计划独胆 | 3d单选一注能中多少钱 | 3d今天专家预测推荐号码 | 3d布衣双胆独胆王 | 今晚上的3d开奖号 | 于海滨海3d最新预测 | 于海滨预测3d号 | 3d专家詹詹天佑最新推荐 | 3d今晚必出一注100%准确直选推荐 | 3d最新专家预测推荐 | 3d专家预测最准确今天上一期 | 今晚3d专家预测精选一注 | 十拿九稳预测专家分析 | 今于海滨3d杀码图24210 | 3d专家预测最准今天 | 3d千禧试机号关注号金码号开机号 | 3d今晚最准最新专家推荐号 | 3d预测最新最准专家推荐号码 | 天齐藏机图汇总正版藏机图 | 3d均值振幅走势图表图 | 中国福彩3D独胆实时精准预测 | 3d千禧试机号关注码金码今天晚 | 3d今晚最准专家预测号码 | 2025315期3d开奖结果 | 3d专家最准确预测 | 于海滨3d预测号 | 3d今晚专家预测推荐 | 3d最新专家预测汇总大全 | 3d太湖字谜每天更新 | 3d牛彩网字谜图谜汇总九 | 3d百十差振幅走势图 | 3d,胆| 孟庆会老师3d预测彩吧图库今天 | 3d今天精准一注 | 十拿九稳今天预测 | 3d试机号码开机号 | 3d千禧金码试机号关注码 | 三d预测专家最新推荐 | 福彩3D独胆下期分析 | 3d开机号和试机号今天查询 | 中国福彩3D独胆今晚走势最新 | 3d预测专家推荐最准确 | 3d彩报图今天的第五版 | 3d十大专家推荐号码汇总 | 詹天佑3d推荐 | 3d今天开机号和试机号金码对应码 | 中国福彩3D独胆独家必中最新 | 3d两天独胆王 | 3d詹天佑最新预测牛彩网 | 3d推荐号今晚专家预测 | 3d徐文轩今晚推荐号码 | 今晚3d直选推荐 | 推荐一注3d号码 | 今日3d十大专家双胆总汇 | 今于海滨3d预测今天单线联系 | 今日3d专家推荐号码 | 3d最准一个独胆毒胆 | 排三杀码专家天齐网 | 3d独胆专家预测 | 3d最准预测专家预测大 | 3d钱王点评 | 3d免费预测汇总牛彩网 | 3d陈华今晚独胆预测 | 最准的3d专家预测 | 3d今晚专家预测推荐号 | 拼搏在线3d开机号和试机号列表 | 3d预测专家准确推荐 | 3d徐文轩今晚推荐号码 | 今日3d十大专家双胆总汇 | 3d最新专家预测汇总大全 | 3d今天最准专家预测 | 3d预测詹天佑最新 | 3d专家解太湖字谜汇总 | 3d今于海滨杀码图 | 3d专家预测推荐号码 | 3d今晚最准最新专家推荐号 | 今天太湖字谜三字诀是什么 | 马到成功杀两码最新版本更新内容 | 3d之家双胆独胆预测 | 今晚3d专家推荐号码是多少 | 3d最准预测专家预测大 | 了3d开奖结果 今天晚上 | 铁人铁胆3d包星定位最新今天 | 于海滨海3d预测今天 | 3d之家独胆,双胆 | 3d预测总汇手机牛彩网 | 三码合一是什么意思? | 3d跨度五行走势图3d之家 | 福彩3D独胆实时走势 | 3d最准的独胆毒胆独胆 | 3d双胆独胆 | 3d彩吧试机号今天最新 | 唐龙3d预测今日出号点评 | 小薇3d预测今天推荐 | 3d徐文轩今晚推荐号码 | 3d字谜历史记录 | 3d预测 下一期 3d预测专家 3d预测 | 3d和值跨度走势图带连线 | 3d专家于海滨 | 太湖试机号后一句定三码3d字谜 | 3d今晚最准专家预测号码 | 3d最准的预测专家 | 3d今天专家预测号码最准确 | 开心笨小孩3d独胆 | 3d专家预测最准今天 | 大师诸葛亮今晚一个独胆 | 3d开机号和试机号今天多少 | 3d试机号后专家预测推荐汇总 | 3d专家预测号码手机牛彩网 | 今日3d直选一注 | 3d和值专家推荐和值 | 3d推荐号今晚专家预测最准确 | 3d精选号码推荐今天最新 | 3d双胆独胆非常非常稳定 | 3d开机号试机号30期列表走势图 | 3d独胆双胆下一 | 3d谜语太湖钓叟3d谜语今天 | 3d最大值振幅走势图3之家 | 3d试机号开机号今天晚上金码号 | 3d今日专家精准推荐号 | 3d今晚预测最新最准确号码牛彩网 | 3d杀码图谜_专区杀码 | 詹天佑3d今日预测 | 3d今天开机号试机号200期 | 3d预测专家精准推荐号 | 3D独胆团队命中率最新 | 今晚3d预测专家预测号 | 3d詹天佑最新预测 | 今天3d专家推荐号 | 3d开心毒胆独胆王 | 中国福彩3D独胆当天预测最新 | 3d之家双胆独胆预测 | 3d北斗专家北斗预测今天079期3d | 3d独胆王正版 | 张克永专家3d预测 | 3D独胆团队走势 | 今晚3d的开奖号码 | 今日3d开奖号码是多少? | 毒胆牛人3天计划 | 3d今天最准专家预测 | 3d和值尾振幅走势图50期 | 最新3d预测专家预测 | 3D独胆大神命中率最新 | 3地独胆,毒胆双胆家彩网 | 3d316期太湖字谜 | 太湖试机号后一句定三码3d字谜 | 今天买哪三个号码好 | 3d十位单选振幅走势图 | 于海滨海3d专家杀码 | 福彩3D独胆明日分析最新 | 3d今晚最准专家推荐号 | 3d跨度走势图图表 | 3d预测最新最准专家 | 唐龙点评每日一胆龙 | 今日毒胆 | 3d和值基本走势 | 3d太湖钓叟字谜三字诀论坛 | 2025长期守号最佳5注推荐 | 飞向阳光龙头凤尾今天最新消息 | 今日3d专家预测号最准确 | 今日3d太湖字谜三字诀排三开奖结果 | 今于海滨一语定胆保真今天 | 7号电池最建议买的三个型号 | 今天3d专家预测汇总 | 3d今天专家预测号码 | 3d太湖钓叟字谜三字诀论坛 | 最准3d专家预测推荐 | 3d百十个位杀码家彩网 | 助赢计划软件官网版下载 | 3d十大专家汇总精选一注 | 3d和值尾金木水火土走势图 | 今天3d开机号和试机号对应金码 | 今天3d金码试机号对应码开机号 | 3d最准确的预测方法 | 3d两胆必出方法 | 3d最准一注号码 | 太湖字谜3d和值谜 | 于海滨专家一语定胆十每日 | 3d四码直选多少钱一注 | 万能三码的使用方法 | 3d开机号试机号今天最新50期 | 3d预测最准专家预测 | 今于海滨点评专家一语定胆 | 龙头凤尾今日预测 | 2012099期3d开奖结果 | 3d预测最准的专家预测 | 3d预测专家最准确的专家预测今晚 | 3d精准预测最准的专家 | 3d最准专家预测号 | 3d预测最准的专家 | 3d预测号码最准最新准专家预测号家彩网 | 小德3d今天双胆定位 | 3d推荐号今日预测 | 3d独胆王正版 | 3d两胆精准预测 | 牛彩网杀码大全 | 今晚开奖号码3d开奖结果 | 3D独胆明日分析 | 3d牛彩网预测汇总 | 今天3d中奖 | 唐龙一语定胆3d今天 | 3d预测专家推荐最准确 | 3d胆预测天齐网 | 3d今晚最准最新专家推荐号 | 徐文轩3d预测推荐 | 神龙毒胆王今晚给胆 | 今天3d杀码| 3d专家今日推荐号码 | 排五开机号试机号今天查询 | 3d最新最准专家预预测 | 于海滨杀码今天最新版 | 牛彩网杀码图汇总 | 三d预测专家预测今天最新 今于海滨3d预测 | 3d定和值公式 | 3d开机号试机号今天开奖号 | 3d今日开机号和试机号及关注码 | 3d预测最准最新准专家预测号码 | 3d今于海滨杀码图 | 3d走势图专家推荐号码 | 3d家彩预测 | 3d近50期开奖号码 | 3d专家预测最准确最新汇总 | 今天3d开机号和试机号查询结果彩吧 | 3d千禧试机号关注号金码号开机号 | 3d近30期开奖号码 | 3d詹天佑预测分析牛彩网 | 于海滨3d预测号 | 千禧3d今晚的试机号码 | 3d和值尾遗漏走势图 | 今天3d专家推荐重点号码 | 今晚3d专家预测精选一注 | 今晚3d之家 | 3d最新专家预测精选一注 | 牛彩网专家汇总汇总3d | 3d最准预测专家推荐 | 3d陈华今晚就赌一胆天齐网 | 今日3d开机号和试机号列表三十期 | 福彩3D独胆高手分析 | 3d手机牛彩网专家预测 | 福彩3D独胆下一期推荐 | 今日3d专家预测号码 | 3d开机号和试机号今天金码关注号 | 今天的3d开机号试机号 | 3d预测专家最准最新 | 3d专家预测最准确最新汇总 | 3d最精准的专家预测 | 3d千禧开机号试机号关注金码 | 今晚3d专家最精准的预测 | 布衣3d独胆双胆王 | 3d必中永久直选500注大底 | 3d彩报图今天图库彩吧 | 3d杀码公式最新 | 3d专家预测最准确最新今天牛彩 | 三d毒胆预测 | 今日3d预测专家推荐 | 3d开机号试机号今天的 | 3d最新准专家预测 | 3d今天专家预测推荐号码 | 千禧3试机号金码关注码金码 | 3d专家最新最准预测 | 今日太湖字谜3d字谜太湖钓叟 | 3d试机号后专家预测汇总 | 3d今天最新最准专家预测最 | 3d百位定位走势图 | 于海滨最新3d预测推荐今天 | 3d牛彩网预测 | 3d专家最新最准专家预测 | 3d最晚间字谜汇总大全 | 于海滨一语定胆保真 | 3D独胆下期推荐预测最新 | 3d预测牛彩网预测汇总 | 3d专家预测号码推荐今天 | 3d专家预测最准今天 | 3d开奖结果今晚号码 | 3d专家预测最准确今天 | 3d预测牛彩网预测汇总 | 3d开机号码近100期 | 3d最近100期历史记录 | 开奖结果3d今天晚上 | 3d詹天佑预测分析牛彩网 | 3d布衣独胆王正版今天 | 3d手机牛彩网专家预测 | 3d今晚开奖号走势图 | 福彩3D独胆最新必中最新 | 3d今晚精选预测一注 | 陈华3d今晚就赌一个胆天齐网 | 3d专家预测号码手机牛彩网 | 3d今晚开奖结果号码是 | 3d十大专家预测汇总 | 三d之家独胆 | 3d专家詹詹天佑最新推荐 | 中国福彩3D独胆下期推荐推荐最新 | 3d开心毒胆独胆王 | 今天3d开机号 试机号是多少 | 今于海滨3d预测彩吧图 | 2008年359期3d焰舞字谜 | 3d今日太湖字谜 | 3d试机号开机号近50期 | 3d千禧试机号开机号对应码关注号 | 今日3d专家预测号最准确 | 3d太湖钓叟字谜汇总正版藏机图 | 3d今晚精选一注 | 牛彩网3d专家预测汇总 | 千禧p3试机号关注号金胆对应号 | 今晚上3d出奖结果 | 今天3d的开机号和试机号是多少号 | 今天3d牛彩网专家预测 | 三d走势图基本走势图彩宝网 | 3d基本走势图表 | 3d最精准专家预测汇总今天 | 3d天宇和值谜字谜一句定三码 | 3d詹天佑预测分析牛彩网 | 3d千禧试机号开机号对应码关注号 | 试机号后牛彩网专家预测3d | 中国彩吧更一懂彩民最新版本更新时 | 于海滨专家一语定胆十好心人 | 三d开机号和试机号今天牛彩网彩 | 詹天佑3d今日预测 | 3d今天开机号试机号3 | 3d预测专家最准最新 | 詹天佑今天3d推荐 | 于海滨3d每日杀一码 | 3d预测今晚最新最准确 | 3d字谜太湖解 | 3d预测最准确的专家 | 于海滨杀码今天最新版 | 3d今日预测最准专家预测 | 3d今晚上必出号推荐组 | 今天3d开机号试机号金码 | 千禧今晚3d试机号关注码金码 | 3d预测专家最准确 | 最新3d预测专家预测 | 牛人高手【3d精选】 | 3d平均值走势图振幅3d之家 | 3d预测专家最准确的专家预测今晚 | 3d今天专家预测最准 | 3d北斗专家北斗预测今天079期3d | 3d专家解太湖字谜汇总 | 3d今晚专家推荐预测重点号码 | 3d预测最准最新准专家预测 | 3d专家预测推荐汇总 | 千禧关注码试机号金码 | 3d独胆陈华今晚就赌一个胆 | 詹天佑3d今天最新预测 | 辽宁独胆王三天计划 | 北斗3d今日预测 | 3d双胆神算今天最新 | 3d今天预测最准确专家 | 铁人铁胆包星定位今天最新结果 | 3d最准专家预测号 | 3d晶晶必下一独胆今天 | 今晚3d专家推荐号 | 3d中间值振幅走势图之家 | 福彩3D独胆最新必中 | 3d今晚开奖结果走势图 | 3d预测号最新最准牛彩网 | 3d独胆一个 | 3d今晚专家看独胆 | 中国福彩3D独胆当天走势最新 | 于海滨点评专家一语定胆保真版 | 今晚上3d出奖结果 | 3d试机号关注号金码对应码开机号 | 天齐网3d必中两胆今天 | 3d百位走势图带连线图表专业版 | 3d今日专家推荐 | 3d免费预测汇总牛彩网 | 天齐杀码图汇总 | 3d试机号码开机号 | 3d开机号和试机号今天 今晚 | 3D独胆大神命中率最新 | 3D独胆团队精准预测最新 | 3d藏机图正版藏机图汇总今天最新 | 3d预测最新最准确号码 | 3d今晚最准专家推荐号码 | 太湖字谜马后炮3d总汇 | 3d今天预测最准确专家 | 3d和值走势图(专业版) | 三d预测最准十专家预测今晚 | 3d今天开机号和试机号多少 | 3d今晚开机号试机号金码关注码今天 | 3d今日预测推荐号 | 最准3d专家预测推荐 | 3d直选一注今天 | 今晚最准一注3d | 今天太湖字谜三字诀是什么 | 3d藏机图完整版今天 | 于海滨3d杀码图145 | 中国福彩3D独胆最新走势 | 铁人铁胆定位包星 | 于海滨点评专家一注定胆保真版 | 神仙姐姐今天最新杀码 | 今天3d专家预测号码 推荐 | 今于海滨3d杀码图 | 大师诸葛亮今晚一个独胆 | 3d独胆专家推荐独胆 | 3d预测号最新最准牛彩网 | 3d最精准的专家预测精选 | 今天3d开机号试机号码 | 今日3d专家预测总汇 | 3d预测专家最准确 | 今天3d千禧试机号关注号金码号 | 3d开机号试机号今天最新50期 | 千禧3d试机号金码关注码牛彩网 | 3d今晚最准最新专家推荐号 | 3d试机号开机号近50期 | 3d胆王双胆独胆 | 3d预测最准确的专家 | 铁人真胆一句定三码3d字谜彩搜网 | 于海滨3d今晚预测 | 今日3d钱王点评 | 福彩3D独胆下一期必中 | 今天3d试机号开机号是什么 | 3d最新专家预测汇总 | 于海滨3d预测 | 3d预测最准的专家预测 | 3d杀码一定牛| 3d小龙一句定三码今日字谜天中图 | 3d图谜字谜总汇 | 3d试机号近10期彩经网 | 3d十大专家预测汇总 | 3d近100期开奖结果全部 | 3d今天试机号开机号金码 | 3d顶级胆神双胆 | 3d今晚必下一个胆 | 无敌胆王今日双胆 | 3d最准确预测100%一注 | 北斗3d今日专家预测推荐 | 3d预测一注推荐 | 3d长中剑客预测今天 | 天齐藏机图汇总正版藏机图 | 3d最全晚间字谜汇总大全 | 3d预测最准确的专家 | 经典小胆王三天计划配组合 | 3d基本走势图(专业版)近200期 | 3d今天最新最准专家预测最 | 3d今晚预测最新最准确号码牛彩网 | 3d预测最准的专家预测 | 小红人的计划三天计划 | 3d条件预测专区牛彩网 | 今晚3d推荐号 | 3d今晚最准最新专家推荐号 | 3d最精准专家预测汇总今天 | 3d谜语今天字谜今天的3d字谜是什么? | 3d专家预测独胆最准确 | 陈华3d独胆推荐 | 今天十拿九稳号码预测 | 今天的3d推荐号码是多少 | 3d今天专家预测最准确 | 千禧开机号试机号关注号金码杀码 | 天齐网3d首页保真版3d预测 | 3d专家预测推荐汇总 | 3d今晚专家预测最准确一注 | 3d单选一注能中多少钱 | 于海滨杀码今天最新版 | 3d预测专家推荐号码 | 太湖字谜三字诀论坛 | 3d今日专家推荐号 | 3d独胆预测必下一胆 | 财神爷独胆三天计划,就这么牛 | 3d今天专家预测最准 | 3d开奖号码结果 今晚 | 3d试机号后专家预测推荐汇总 | 3d楚人今晚预测今天 | 3d预测詹天佑 | 3d专家预测推荐号码 | 三d开机号和试机号今天牛彩网彩 | 福彩3D独胆下一期命中率最新 | 今天3d金码试机号对应码开机号 | 十拿九稳今天预测专家 | 3d布衣独胆双胆必下一 | 3d家彩预测| 3d今晚开奖号码走势图 | 55125预测汇总3d | 3d今晚专家预测最准确号码 | 3d专家预测推荐号码 | 牛彩网杀码大全 | 3d詹天佑预测分析牛彩网 | 今天3d专家推荐号 | 牛彩网3d预测汇总大全 | 看彩大亨看独胆双胆预测 | 3d推荐最新最准专家预测 | 3D独胆本期命中率 | 太湖三字谜太湖3d钓叟 | 千禧开机号试机号关注号金码杀码 | 3d小红人三天计划 | 今于海滨3d杀码图24210 | 3d开机号试机号今天最新50期 | 今天3d开机号试机号码 | 3d专家独胆推荐 | 3d跨度分位走势图图感觉 | 千禧试机号金码关注码的历史记录 | 3b千喜今天试机号关注金码 | 3d小差振幅走势图表图 | 3d直选走势图(专业版) | 今晚3d试机号开机号金码号 | 3d今天千禧试机号关注号金码 | 詹天佑今天3d推荐 | 3d和值和尾振幅走势图 | 3d预测 下一期 3d预测专家 3d预测 | 3d天宇和值谜字谜 | 今于海滨3d杀码 | 3d今日预测最准专家预测 | 3d今天推荐号码是多少 | 3d天中杀码图专区 | 3d最新准专家预测 | 3d百十和尾振幅走势图走势 | 3d百十和值尾振幅走势图 | 今天3d开机号试机号对应码列表 | 于海滨3d今晚预测 | 3d预测最准的专家预测 | 今天3d于海滨预测 | 小财神三天计划独胆 | 3d最新专家预测推荐 | 3d开机号今天试机号30期 | 3d今晚开奖结果号码是 | 3d专家预测汇总 | 3d最准专家预测号 | 3d十大专家精准预测汇总 | 三d预测专家最新推荐 | 3d平均值走势图振幅3d之家 | 3d预测今晚推荐号 | 3d今晚最准专家推荐号码 | 3d单个冷号最大遗漏 | 3d胆拖价格表 | 千禧3d试机号金码关注码杀码今天3d | 唐龙点评3d预测今天 | 3d十大专家汇总大全 | 中奖开奖结果3d | 投资计划独胆三天计划 | 3d直选一注预测 | 3d专家预测推荐号码最准最新 | 千禧3d关注码| 3d太湖专家预测今晚 | 3d十大专家精准预测汇总 | 拼搏在线3d开机号和试机号列表 | 三d预测专家最新推荐 | 3d于海滨预测预测牛彩网 | 3d今晚专家推荐号 | 今天3d开机号和试机号多少? | 3d字谜图谜总汇全图汇总 | 3d彩吧预测,预测 | 今日3d专家预测号最准确 | 今于海滨3d预测 | 最准3d专家预测推荐 | 3d老虎独胆| 3d乐彩走势图表 | 于海滨海3d预测今天 | 3d开机号,试机号,金码号,对应码100 | 最准3d预测专家推荐号 | 3d专家预测最准确今天牛彩网 | 3d单个冷号最大遗漏 | 于海滨专家预测 | 三天计划3d独胆必出论坛 | 3d十大专家精准预测汇总 | 于海滨最新3d预测今天 | 3d最佳一注号码 | 3d任意两码差值尾走势图 | 3d今晚出啥号 | 3d基本走势图表新浪网 | 解3d字谜太湖钓叟汇总 | 3d今晚最新预测 | 马到成功杀两码最新版本更新内容 | 千禧开机号和试机号对应金码 | 3d最精准专家预测汇总今天 | 中国福彩3D独胆今晚走势最新 | 于海滨杀码今天最新版 | 3d预测推荐汇总牛彩网采摘收集 | 3d单挑今天晚一注500倍 | 3d专家预测推荐号码 | 直选三注必中一注3d | 3d最准确预测专家 | 万能四码找下期奖号 | 3d专家预测最准确最新今天牛彩 | 牛彩网3d专家预测汇总 | 3d预测号最新最准牛彩网 | 今日精准预测推荐3d号码 | 排五开奖最新结果排5 | 3d独胆双胆3d之家 | 三d十拿九稳预测号码 | 今晚3d开机号试机号金码关注码 | 3d推荐号今晚专家预测最准确 | 今晚3d专家最精准的预测 | 3d今天绕胆图彩之网 | 3d杀码十大专家 | 千禧试机号金码关注码的历史记录 | 今日3d一注推荐 | 千禧3d试机号金码关注码对应码 | 3d今天试机号和开机号 | 3d独胆专家预测 | 3d专家预测推荐最新 | 3d和值基本走势图表 | 詹天佑3d推荐 | 今日3d太湖字谜三字诀 | 3d太湖钓叟字谜三字诀了3d开奖 | 顶级胆神双胆下一 | 十拿九稳的最新预测 | 3d最新最准专家预测号码 | 3d今天专家预测号码 | 3d专家预测最准确最新今天牛彩 | 3d盐都三胆家彩网 | 3d今天专家预测最准确 | 今日3d一句定三码最准和值谜 | 两天计划双胆王 | 今晚开奖号码3d开奖结果 | 排三今晚十拿九稳最新预测 | 三d胆 | 小薇3d预测今天推荐 | 成功路上3d双胆独胆 | 3d今天中了多少注直选 | 于海滨点评专家一语定胆保真版 | 唐龙3d预测号 | 3d必下双胆| 3d试机号开机号号码今天 | 3d试机号历史出现情况天齐网 | 3d2025322期太湖字谜 | 3d最准预测专家推荐 | 3d专家最新最准专家预测汇总 | 3d试机号码开机号 | 3d必下双胆 | 3d走势图(专业连线版) | 辽宁独胆王三天计划 | 中国福彩3D独胆最新必中 | 于海滨海3d专家预测 | 3d各类和值最新谜字谜今天 | 今晚3d专家最精准的预测 | 今天三字诀太湖字谜 | 3d试机号后专家推荐汇总 | 今日3d预测号码推荐 | 3d最精准的专家预测 | 3d专家预测推荐号码 | 牛彩网杀码大全 | 3d专家预测号码最准确 | 3d精选号码推荐今天最新 | 3d预测今晚推荐号 | 3d推荐号今晚专家预测最准确 | 唐龙3d预测号 | 今天的3d开机号和试机号中奖号 | 3d今天精选五注 | 3d推荐号今晚专家预测 | 3D独胆明日推荐最新 | 3d铁人包星定胆天齐网 | 今天的3d开机号和试机号查询 | 3d专家预测最准确今天上一期 | 3d太湖字谜总汇大全 每天更新 | 3d牛彩网专家预测 | 3d北斗专家北斗预测今天079期3d | 今天3d专家推荐号 | 3d双胆神算今天必下 | 今晚3d专家推荐号码是多少 | 3d字谜总汇今日3d字谜总汇牛彩网 | 3d太湖一语定胆字谜论坛 | 3d千禧试机号关注码金码是什么 | 3d今晚专家预测推荐 | 3d预测今晚最准专家预测号码 | 3d紫云涧专家预测推荐 | 三d双胆独胆 | 3d最新最准专家预测号码 | 3d预测专家准确推荐 | 3d专家预测推荐最新 | 3d近300期试机号和开奖号码 | 3d晚秋和值谜彩吧图库 | 3d试机号关注号金码对应码开机号 | 3d开机号和试机号9.30分 | 福彩3D独胆团队必中 | 3d试机号后专家预测推荐汇总 | 十拿九稳预测分析 | 3d预测总汇 | 千禧p3试机号关注号金胆对应号 | 今天晚上的3d开奖结果 | 3d预测最准最新准专家预测号码 | 3d预测今晚推荐号 | 3d精准一注今天 | 3d预测最准的专家预测 | 3d今天精准一注 | 3d今晚试机号开奖号 | 3d独胆必下一独胆准 | 三天计划独胆牛人 | 飞向阳光龙头凤尾今天最新消息 | 于海滨今天预测 | 3d万能大底共250注直选 | 3d专家预测最准确最新今晚预测 | 今天最新3d开机号试机号关注码 | 3d今晚专家预测 | 今晚3d开奖号码多少 | 中国福彩3D独胆最新必中最新 | 3d解太湖字谜汇总 | 3d真实的谎言字谜总汇正版 | 于海滨专家一语定胆十每日 | 于海滨3d预测号 | 3d专家直选最精准一注 | 3d最准确预测专家 | 3d专家预测最准最新今天 | 卫星电话最建议买的三个型号 | 今天专家推荐号码3d | 3d北丐七爷独胆 | 3d詹天佑预测汇总 | 3d今天专家预测号码 | 三d独胆 | 今天晚上三d开奖结果 | 于海滨彩吧图库 | 钱王杀码图码 | 毒胆牛人三天计划今天 | 3d今晚专家预测推荐号 | 牛彩网杀码大全 | 3d最准的预测专家 | 今天3d开机号 试机号是多少 | 3d最精准的专家预测精选 | 于海滨点评专家一语保真 | 助赢计划软件官网版下载 | 3d预测推荐汇总牛彩网采摘收集 | 天才计划三天计划独胆 | 3d独胆必下一独胆 | 今天3d金码试机号对应码开机号 | 今晚3d专家推荐号码是多少 | 3d今晚专家预测 | 3D独胆本期推荐 | 三d毒胆预测 | 3d任意两码差值尾走势图 | 3d预测今晚最新最准确 | 3d今天晚上的开奖号码 | 3d今晚字谜太湖字谜是什么 | 千禧3d试机号金码关注码对应码 | 福彩3D独胆最新预测 | 3d彩宝网开机号和试机号 | 3d今天预测最准确专家 | 3d推荐号今晚专家预测 | 3d最精准的专家预测 | 3d走势图带连线图表牛彩网 | 3d之家预测专家预测 | 3d今晚试机号开奖号 | 3d玩彩老头预测今天号码 | 3d今天专家预测最准确 | 3d汇总牛彩网 | 3d预测专家精准推荐 | 3D独胆下期预测 | 于海滨今日预测号 | 排五开机号试机号今天查询 | 3d太湖钓叟字谜汇总正版藏机图 | 投资计划独胆三天计划 | 解3d太湖钓叟字谜汇总 | 3d独胆专家推荐独胆 | 毒胆牛人三天计划必出 | 3d最新准专家预测 | 今日太湖字谜3d字谜太湖钓叟 | 今天3d于海滨预测 | 3d今晚专家预测最准确一注 | 今天3d开机号和试机号多少? | 3d预测最准最新牛彩网 | 3d专家预测最新最准 | 3d太湖字谜今天 | 3d最准一个独胆方法 | 排三专家推荐与预测今天 | 3d之家预测专家预测 | 3d今晚上专家推荐号 | 3d胆1拖9直选多少钱一注 | 小林3d最新预测今天 | 陈华3d今晚赌独一胆天齐网 | 3d双胆| 廊坊鸿运3d推荐今天 | 中国福彩3D独胆团队命中率最新 | 千禧试机号关注号金码是什么 | 3d直选100%中奖绝技 | 于海滨今天预测 | 3d今天预测最准确专家 | 3d今晚开奖号多少 | 今天的3d推荐号码是多少 | 3d双胆神算今天最新 | 今天买哪三个号码好 | 3b千喜今天试机号关注金码 | 太湖钓叟三字诀字谜更新 | 3d今天最准专家预测 | 3d专家推荐号 | 3d和值尾振幅走势图200期 | 3d十大专家精准预测汇总 | 今晚3d推荐号码是多少 | 3d彩报图今天的第五版 | 3d专家预测推荐号码 | 2025长期守号最佳5注推荐 | 3d今天的试机号和开机号 | 3d今晚最准专家推荐号 | 3d开机号和试机号码牛彩网 | 今天3d开机号和试机号 | 3d太湖字谜大全 太湖钓叟 | 3d今晚出啥号 | 十拿九稳今天预测 | 于海滨海3d预测免费每日精选3d开奖号 | 今晚3d专家推荐重点号码 | 今天3d开机号试机号对应码列表 | 3d精准预测推荐 | 3d今天开机号,试机号 | 3d和值跨度走势图带连线 | 3d近30期试机号和开奖结果 | 3d胆王双胆独胆 | 3d专家预测最准确最新今天牛彩 | 于海滨3d今晚预测号码 | 排三杀码想要 | 今天的3d太湖字谜今天晚上 | 3d独胆王精准100% | 今晚3d专家推荐号 | 3d走势图(专业连线版) | 3d近30期开机号试机号开奖号查询 | 今日3d专家推荐号码 | 3d和值尾振幅走势图带连线图表 | 于海滨海3d专家预测今天 | 3d今日预测推荐号 | 今于海滨3d预测今天275 | 3d最大值走势图彩经网 | 中国福彩3D独胆团队命中率最新 | 詹天佑3d预测今天推荐号码 | 太湖谜3d太湖钓叟字谜 | 3d和值25点有哪几注 | 3d预测最准的专家预测 | 3d双胆最准100% | 3d预测专家最准确的专家预测今晚 | 今于海滨3d杀码 | 福彩3D独胆团队必中最新 | 于海滨今日预测号 | 钱王点评3d之家 | 3d最准确的专家预测 | 3d今晚最精准专家 | 3d开机号今天近10期 | 3d走势图专家推荐号码 | 福彩3D独胆当天分析最新 | 今晚3d推荐号码 | 福彩3D独胆下一期推荐最新 | 龙头凤尾最准确预测 | 三七进二得三码猜一生肖 | 3d独胆必下一独胆 | 3d陈华就赌一个胆天齐网 | 今晚钱王点评推荐号 | 3d今天预测最准确专家 | 3d预测詹天佑最新 | 3d开机号试机号今天开奖号 | 3d四码直选多少钱一注 | 于海滨今日杀码图 | 3d今晚上推荐号码 | 3d专家预测最准确今天南方双彩网 | 3d专家预测最准最新今天 | 3d试机号历史出现情况天齐网 | 唐龙一语定胆3d今天 | 3d火火人独胆双胆必中 | 3d千禧金码试机号关注码 | 飞向阳光龙头凤尾今天最新消息 | 3d今晚精准推荐一注 | 今天3d推荐号码今晚预测 | 3d跨度振幅3d之家走势图 | 今日3d开机号和试机号关注码千禧 | 3d试机号近10期(模拟) | 3d今天开机号和试机号是多少 | 张克永3d预测今天 | 3d今晚十大专家预测汇总 | 3d太湖钓叟字谜三字诀 | 于海滨专家预测 | 3d预测专家最准最新 | 3d字谜解太湖字谜 | 3d推荐号今晚专家预测 | 3d楚人今晚预测今天 | 3d杀码专家大全 | 于海滨专家预测3d两吗 | 3d今晚专家预测最准确一注 | 最精准杀码王 | 3d藏机图正版藏机图 | 3d专家预测最新 | 3d预测专家最准最新 | 3d专家推荐精选号码 | 于海滨一语定胆《保真》 | 太湖字谜钓叟3d字谜 | 于海滨最新3d预测推荐今天 | 3d千禧试机号金码关注最近10期 | 3d今天开机号和试机号牛彩网 | 今天十拿九稳号码预测 | 今天3d开机号和试机号多少? | 3d预测号码最准确专家预测 | 毒胆牛人三天计划必出 | 3d三胆预测| 3d开奖号历史上的今天 | 3d最准一个独胆方法 | 钱王点评+钱王老头预测 | 今晚3d专家推荐号码 | 3d今晚推荐号 | 唐龙一胆今天最新 | 《金银胆神》金胆银胆3d最新一期开奖 | 3d开机号和试机号金码关注对应号 | 今天p3藏机图正版藏机图 | 毒胆牛人三天计划今天 | 今晚3d试机号码和开机号 | 3d今晚专家免费预测 | 专家3d专家推荐 | 3D独胆大神杀号最新 | 3d最精准专家预测汇总今天 | 今日3d钱王点评 | 七爷独胆今晚一个胆 | 今日詹天佑3d预测分析 | 于海滨专家3d今天预测 | 3d两胆王双胆必下 | 3d李明启最新预测今天 | 今日3d正版藏机图 | 3d预测专家推荐号码 | 3d杀码公式最新 | 3d专家预测最准确最新汇总对应码 | 3d专家预测推荐最新 | 3d带专业连线走势图 | 3d预测最新最准专家 | 3d北斗专家北斗预测今天079期3d | 千禧3d试机号金码关注码对应码 | 给一注今晚3d | 3d今晚字谜太湖字谜是什么 | 3d基本走势图. | 正版真精华布衣天下今天推荐号码 | 3d千禧试机号金码关注码对应码 | 3d定和值公式| 牛彩网近30期3d开机号试机号 | 3d独胆必下一独胆布衣正 | 3d彩宝网开机号和试机号 | 解3d太湖钓叟字谜汇总 | 3d今天最新最准专家预测最 | 3d试机号后专家预测推荐汇总 | 成功路上3d双胆独胆 | 3d詹天佑预测分析牛彩网 | 独胆王三天计划 | 3d和值尾金木水火土走势图 | 3d最准的独胆毒胆独胆 | 福彩3D独胆高手预测 | 3d今晚专家推荐号 | 今日期3d太湖字谜 | 3d独胆专家推荐独胆 | 3d今天开机号和试机号码727 | 天府袍哥3d预测 | 3d十大专家推荐号码汇总 | 3d詹天佑最新预测 | 3d预测詹天佑最新 | 3D独胆团队命中率最新 | 3d今晚上推荐号码 | 3d今晚开机号试机号金码关注码今天 | 今晚3d专家推荐重点号码 | 天齐网3d必中两胆今天 | 今天晚上的3d开奖结果 | 今日焰舞3d焰舞字谜汇总大全 | 于海滨今天预测 | 3d今晚必中三个号码预测 | 今日3d十大专家双胆总汇 | 3D独胆下期最新预测 | 3d专家推荐最新预测 | 3d字太湖叟字谜 | 3d藏机图正版藏机图 | 3d跨度分位走势图图感觉 | 中国福彩3D独胆下期最新必中最新 | 今天3d詹天佑预测分析 | 3d预测最准确专家预测 | 今晚3d专家预测精选一注 | 3d每期必中27注 | 3d今晚最准专家预测号码145 | 3d专家预测最准确最新汇总 | 3d预测詹天佑 | 3d今晚专家预测推荐 | 今晚3d专家预测精选一注 | 3d下期预测最精准的一注号码 | 今天专家推荐号码3d | 3d今晚专家预测最准确一注 | 3d专家预测最准确最新今晚预测号 | 三d预测专家预测今天最新 3d专家预测最准最新今天 | 今于海滨3d预测彩吧图 | 下一期专家准确预测 | 3d推荐号码今晚预测 | 龙头凤尾今日预测 | 中国福彩3D独胆专家推荐最新 | 3d今晚必出一注100%准确直选推荐 | 于海滨点评专家一注定胆保真版 | 今天3d牛彩网专家预测 | 今天3d专家预测汇总 | 中国福彩3D独胆独家必中 | 廊坊鸿运3d | 中国福彩3D独胆今日走势最新 | 今天专家推荐号码3d | 3d最准预测专家推荐 | 今日3d开奖号太湖字谜总汇 | 3d今晚最准专家预测号码 | 3D独胆专家分析 | 3d今日预测推荐号 | 3d每天一个独胆 | 钱王点评十钱王老头给胆 | 3d预测汇总牛彩网 | 3d今天专家预测推荐号码 | 3d陈华今晚就赌一胆天齐网 | 三d推荐号专家预测今天 | 太湖3d字谜今天的 | 今天3d开机号和试机号多少? | 3d老炮子直选三注 | 3d今晚专家预测最准确一注 | 3d今晚专家预测推荐号 | 3d试机号开机号今天最新 | 3d飞胆图绕胆图 | 3d预测最准确专家 | 3d太湖钓叟字谜汇总正版藏机图 | 3d最准确预测100%一注 | 今晚3d专家推荐号码是多少 | 十拿九稳今天预测 | 3d 今日太湖字谜 | 十拿九稳预测专家分析 | 3d试机号200期历史 | 千禧3d试机号金码关注码对应码 | 3d预测今晚最准专家预测号码 | 唐龙3d预测号| 今日3d推荐号码号 | 助赢计划软件官网版下载 | 3d专家预测最准确 | 3d今晚专家预测重点号码 | 3d今晚推荐一注 | 千禧今晚3d试机号关注码金码 | 3d看胆精英独胆 | 3d千禧今晚试机号码 | 3d今晚预测最新最准确号码牛彩网 | 3d专家推荐 | 大师诸葛亮今晚一个独胆 | 3d预测今晚最准专家预测号码 | 3d走势图基本走势图表 | 孟老师专家预测3d | 3d今天试机号和开机号 | 毒胆| 3d开机号和试机号30期列表 | 3d天齐网最准预测 | 今天的3d开机号和试机号中奖号 | 3d千禧试机号金码关注最近10期 | 3d和走势图 和值尾连线 | 3d试机号今晚牛彩网 | 3d和值012走势图带连线图 | 3d之家双胆独胆预测 | 3预测,3d专家预测,最准确今天彩网 | 3d专家预测最准确最新今晚预测 | 3d胆王专家定十位 | 3d今晚最准最新专家推荐号 | 3d今天开机号和试机号322 | 龙头凤尾最准确预测 | 于海滨今日3d预测 | 3d今天中了多少注直选 | 3d谜语太湖钓叟3d谜语今天 | 3d和值尾振幅走势图彩宝贝 | 3D独胆下一期精准预测 | 3d今天专家预测号码 | 今日太湖字谜3d字谜太湖钓叟 | 3d今晚预测最准确一注 | 3d试机号开机号号码今天 | 3d推荐最新最准专家预测 | 福彩3D独胆最新推荐最新 | 中国福彩3D独胆本期命中率 | 3D独胆内部精准预测 | 今日詹天佑3d预测分析 | 最准一个毒胆 | 3d千禧开机号试机号关注金码对应码 | 牛彩网杀码 | 3d和值尾振幅走势图50期 | 3d今天千禧试机号关注号金码 | 3d千禧试机号码金码关注码 | 3d最准专家预测号 | 唐龙3d预测号 | 3d中国准神双胆 | 解今日太湖3d字谜 | 詹天佑3d点评预测 | 3d今晚专家推荐号 | 3d专家预测最准确号码 | 3d百位走势图带连线图表专业版 | 杀码3d杀码图 | 3d布衣独胆王 | 3d预测专家汇总预测 | 3d专家预测最准确今天 | 三d独胆 | 3d今日字谜太湖 | 今日3d正版藏机图,藏机图汇总,天中网 | 太湖3d字谜今天的 | 中国福彩3D独胆实时精准预测 | 钱王点评+钱王老头预测 | 97654天中图库,今天晚3d试机号 | 太湖钓叟3d字谜太湖字 | 3d最新专家预测精选一注 | 3d断组今晚全部 | 毒胆牛人3天计划 | 老炮子预测今晚三地 | 唐龙一胆| 3d推荐专家汇总 | 3d双胆预测3d双胆下3d 双胆推荐 | 3d今晚必中一注一 | 三d今晚预测推荐十注 | 3d今晚最准专家预测号码 | 今晚3d专家预测精选一注 | 3d今晚和值推荐 | 3D独胆下期最新预测 | 解太湖3d字谜太湖 | 福彩3D独胆老师杀号最新 | 3d推荐最新最准专家预测 | 飞向阳光龙头凤尾今天最新消息 | 今晚3d开机号试机号 | 3d詹天佑推荐号 | 3d免费预测汇总牛彩网 | 3d太湖专家预测今晚 | 成功路上3d双胆独胆 | 3d今日开机号和试机号及关注码 | 3d长中剑客预测今天 | 孟庆会专家3d预测 | 3d预测专家推荐 | 中国福彩3D独胆高手命中率 | 3d预测专家推荐号码 | 3d今天最新最准专家预测最 | 3d谜语今天字谜今天的3d字谜是什么? | 詹天佑3d最新预测今天 | 今晚3d专家预测精选一注 | 3d试机号开奖号走势图表 | 3d晚秋和值谜彩吧图库 | 3D独胆下期最新预测 | 3d于海滨预测预测牛彩网 | 专家预测3d号码准确 | 3d字谜总汇今日3d字谜总汇牛彩网 | 陈华3d今晚就赌一个胆 | 今晚3d预测开奖号码推荐 | 于海滨点评专家一语定胆保真版 | 3d最准确预测100%一注 | 3d精准定位专家预测 | 3d试机号后专家预测汇总 | 3d藏机图正版藏机图汇总今天最新图片 | 3d绝杀一码绝杀 | 3d打一个独胆中了多少钱 | 3d最近100期历史记录 | 3d两胆王 | 千禧3d开机号试机号金码 | 今晚3d专家预测精选一注 | 3d专家今天预测一注 | 3d农村小伙子最新预测 | 3d字谜图谜总汇全图汇总 | 3d杀码于海滨 | 3d开机号近200期历史记录 | 三d十拿九稳预测号码 | 3d藏机图正版藏机图 | 3d最精准的专家预测 | 3d字谜总汇今日3d字谜总汇牛彩网 | 3d两胆下一稳定方法 | 财神爷三天计划独胆组合 | 排三专家推荐与预测今天 | 3d晶晶必下一独胆今天 | 3d预测最新最准专家推荐号码 | 3d预测最准专家预测牛彩网 | 三3d太湖字谜 | 今日太湖钓叟三字诀字谜 | 彩坛老顽童3d独胆 | 3d专家预测精选一注 | 3d今天开机号和试机号多少 | 于海滨3d免费预测最新的 | 3d十大专家精准预测 | 今日精准预测推荐3d号码 | 于海滨一语定胆天齐网 | 3d开机号,试机号,金码号,对应码100 | 3d今天的试机号开机号 | 3d十大专家精准预测汇总 | 3d最小值振幅走势图3d之家 | 3d今日专家推荐号 | 3d太湖专家预测今晚 | 今晚3d号码开奖结果多少 | 3d专家预测推荐号码最准最新 | 3d每天一个独胆 | 3d下期预测最精准的一注号码 | 3d直选三注 | 3d今晚最准三注 | 今晚3d专家推荐 | 3d飞胆图绕胆图 | 3d十大专家杀一码汇总 | 无敌胆王今日双胆 | 3d和值走势图(带连线图) | 铁人真胆一句定三码3d字谜彩搜网 | 3d太湖专家预测今晚 | 龙彩居士3d预测今天最新版 | 唐龙3d预测号 | 3d今晚预测最新最准确号码牛彩网 | 今晚3d预测最准一注 | 3d推荐号3d推荐号码 | 3d今晚专家推荐号 | 于海滨点评专家一语定胆保真版 | 千禧之年3d开机号试机号金码关注 | 3d今晚最准专家预测号码 | 3d今晚最准最新专家推荐号 | 3d牛彩网字谜图谜汇总九 | 3d试机号和开奖号走势图 | 百位振幅走势图3d之家 | 千禧开机号和试机号对应金码 | 3d推荐号今晚专家预测最准确 | 今日3d推荐号码号 | 3D独胆本期预测最新 | 3D独胆老师命中率 | 3d跨度振幅3d之家走势图 | 3d计算公式精准100%计算 | 7号电池最建议买的三个型号 | 3d今晚预测直选一注3d一注预测 | 今日3d杀码最新 | 3d今晚预测直选一注3d一注预测 | 3d最新专家预测汇总大全 | 千禧关注码试机号金码 | 3d于海滨今天预测保真 | 3d专家推荐号| 3d杀码图| 3d跨度振幅走势图3d专家 | 今晚3d专家推荐号码 | 3d十位走势图振幅 | 3d预测专家最准确 | 3d中间最小两码差值振幅走势图 | 今晚3d预测开奖号码推荐 | 3d北斗专家北斗预测今天079期3d | 李明启3d预测最新号码 | 今日3d专家预测号码推荐 | 于海滨的今日预测 | 于海滨3d每日杀一码 | 万能四码找下期奖号 | 今天晚上3d开奖 | 今天的3d开机号和试机号中奖号 | 3d绝杀一码专家 | 3d开心毒胆独胆王 | 今晚3d开机号和试机号是多少 | 3d独胆双胆天齐网 | 3d专家预测推荐号码 | 今晚3d和值推荐 | 今晚3d专家最精准的预测 | 近10期3d开奖结果 | 今天的3d开机号和试机号查询 | 3d和值最近(500)期走势图 | 3d专家推荐最精准的号码 | 3d六大专家杀码汇总 | 3d今天专家预测号码 | 3d今天开机号和试机号牛彩网 | 3d天宇和值谜字谜一句定三码 | 张克永专家3d预测 | 最准3d专家预测推荐 | 3d今晚预测最新最准确号码牛彩网 | 3D独胆本期推荐最新 | 3D独胆最新分析 | 3d定胆王独胆定位 | 3d千禧金码试机号关注码 | 今天太湖字谜三字诀是什么 | 3d杀码更准确 | 排三专家杀码 | 今晚3d专家最精准的预测 | 3d直选是什么意思 | 3d藏机图正版藏机图诗汇总 | 中国福彩3D独胆明日推荐最新 | 专家精准预测3d号 | 3d专家预测推荐汇总 | 3d今晚预测开奖号码 | 今日排三太湖钓叟字谜三字诀 | 3d千禧试机号开机号金码 | 神仙姐姐今天最新杀码 | 中国福彩3D独胆今日精准预测 | 3d正版藏机图天齐网汇总 | 3d小差振幅走势图表图 | 十拿九稳专家预测专栏 | 今晚3d专家预测精选一注 | 3d今天专家推荐号码推荐 | 3d开机号和试机号金码关注 | 3D独胆今晚命中率 | 今日3d开奖号太湖字谜总汇 | 3d精准预测最准的专家 | 3d成功路上人双胆独胆 | 3d单式怎么才算中奖 | 3d百位走势图带连线图表专业版 | 排三太湖钓叟字谜三字诀 | 今于海滨3d杀码图 | 3d基本走势图综合 | 3d今晚最准专家预测号码 | 3d牛彩网100期开机号和试机号 | 于海滨点评专家一语定胆保真版 | 3d精选号码推荐今天最新 | 今晚3d开奖号是多少 | 3d彩宝贝试机号今天最新 | 3d专家预测最准确今天牛彩网 | 3d今天的试机号和开机号 | 3d徐文轩今晚推荐号码 | 于海滨海3d专家预测今晚一注 | 3d今晚开奖号多少 | 3d今天专家推荐号码推荐 | 排五奖号| 3d专家预测最准确最新今天牛彩 | 3d最准专家预测号今晚3d试机号 | 今日太湖字谜3d字谜太湖钓叟 | 3d字太湖叟字谜 | 彩吧3d开机号 | 今日3d预测专家推荐 | 3d字太湖字谜 | 今日3d藏机图正版藏机图134 | 钱王点评+钱王老头预测 | 3d专家预测最准确最新今天牛彩 | 3d和值振幅走势图彩宝贝 | 中国福彩3D独胆当天精准预测 | 今晚快乐八专家预测推荐号 | 3d今晚专家预测最准确号码 | 3d今晚专家推荐预测重点号码 | 3d今日专家推荐 | 3d预测专家准确推荐 | 专家3d专家推荐 | 3d字谜太湖最新 | 3d藏机图正版藏机图诗汇总 | 布衣杀码图3d杀码 | 3d真实的谎言正版和值字谜 | 3d两胆精准预测 | 3d预测推荐汇总牛彩网采摘收集 | 今天3d专家推荐重点号 | 3d精选号码推荐今天最新 | 3d晚间字谜总汇大全 | 3d十大专家独胆 | 陈华3d今晚赌独一胆天齐网 | 今日期3d太湖字谜 | 3d预测号码最准最新准专家预测号 | 3d预测号最新最准牛彩网 | 詹天佑3d最新预测今天 | 3d近15期开奖号码结果 | 3d今晚中奖号是多少 | 3d开机号和试机号今天多少 | 3d解太湖字谜汇总 | 3d最准预测号 | 3d最新专家预测汇总牛部长预测 | 3d今天开机号和试机号查询100期 | 3d千禧开机号和100期试机号 | 于海滨3d杀码图 | 3d于海滨上的今天预测保真 | 马后炮解3d太湖钓叟字谜总汇大全 | 3d今晚预测最准确一注今天 | 3d今天专家预测推荐号码 | 3d杀码高手 | 3D独胆下期推荐走势最新 | 北斗3d今日专家预测推荐 | 3d开机号和试机号200期列表 | 3d开机号和试机号今天多少 | 3d预测牛彩网预测汇总 | 3d独胆公式正确率在99%以上 | 3d专家最新最准专家预测汇总 | 于海滨一语定胆天齐网 | 于海滨3d预测号 | 3d最新专家预测汇总大全 | 千禧3d试机号金码关注码码关注码双彩论六个 | 3d今天专家预测号码最准确 | 3d彩界元宝就看一个独胆 | 排三专家推荐与预测今天 | 唐龙点评3d预测今天 | 今天十拿九稳号码预测 | 3d预测最准专家预测牛彩网 | 今天3d出的什么号 | 3d预测最准最新准专家预测号码 | 3d最精准专家预测汇总今天 | 3d专家预测最准确最新今天 | 3d千禧试机号关注号金码号开机号 | 钱多多3d百位定独胆 | 3d专家预测最准确 | 3d独胆必下 | 今晚3d开奖号是多少 | 今晚3d开机号试机号金码 | 3d字谜太湖最新 | 3d最准确专家预测 | 3d开奖号走势图表 | 今天最新3d开机号试机号关注码 | 3d藏机图完整版今天 | 福彩3D独胆高手分析 | 最准3d预测专家推荐号 | 3d今日正版藏机图最新更新内容 | 3d今晚专家预测 | 小财神三天计划独胆 | 今天3d专家推荐重点号 | 3D独胆大神走势 | 3d玩胆先生双胆独胆 | 明天太湖3d三字诀 | 3d十个位差值振幅走势图3d之家 | 3d今晚必出号 | 玩彩独胆王三天计划 | 于海滨预测3d号 | 3d和值宫数线走势图 | 3d牛彩网今天开机号试机号 | 福彩3D独胆下期杀号最新 | 3d均值振幅走势图表图 | 3d专家预测最准最新 | 成功路上3d双胆独胆 | 3d藏机图正版藏机图全图牛彩网 | 今天3d开机号和试机号多少? | 3d陈华今晚就赌一胆天齐网 | 3d预测今晚最准专家预测号码 | 今天的3d太湖字谜今天晚上 | 太湖解太湖3d字谜 | 3d预测最准最新准专家预测号码 | 3d直选走势图(专业版) | 3d金胆王| 3d预测今晚推荐号 | 三d预测专家预测今天最新 今于海滨3d预测 | 今天3d专家推荐号 | 3d今日预测最准专家预测 | 3d谜语今天字谜今天的3d字谜是什么? | 3d最精准的专家预测 | 3d开机号和试机号近100期列表 | 3d双胆下一 | 3d于海滨预测预测牛彩网 | 今日3d杀码最新 | 于海滨今天3d预测号 | 3d今天专家预测号码最准确 | 詹天佑3d分析推荐 | 3d预测最新最准3d之家 | 万能四码找下期奖号 | 3d彩吧图库手机牛彩网 | 3D独胆大神命中率最新 | 今天的3d推荐号码是多少 | 3d今天专家推荐号码推荐 | 中国福彩3D独胆实时必中最新 | 天才计划三天计划独胆 | 3d今日预测最准专家预测 | 于海滨专家预测3d两吗 | 彩宝贝十大专家杀蓝号 | 3d今晚精选一注 | 3d机选一注 | 3d推荐号码今晚预测 | 詹天佑今天3d推荐 | 3d历史今天开奖结果 | 于海滨海3d专家预测今天 | 3d最准预测号 | 3d推荐号3d推荐号码 | 三地千禧开机号试机号金码关注 | 3d最准确预测专家 | 今天3d开机号 试机号是多少 | 3d跨度公式98准确率 | 3d预测推荐| 3d独胆必下一独胆准 | 3d预测今晚最准专家预测号码 | 3d今天单挑50信 | 3d个位走势图振幅 | 3d独胆10中10 | 3d今天专家推荐号码是多少 | 3d太湖字谜大全 太湖钓叟 | 3d千禧金码试机号关注码开奖号 | 3d顶级胆神双胆 | 今天3d专家推荐重点号 | 3d精准预测最准的专家 | 3d彩吧图库44462 | 3d试机号历史出现情况天齐网 | 千禧今晚3d试机号关注码金码对应 | 福彩3D独胆本期推荐 | 财神一注3d | 3d双胆图 | 3d直选开奖结果 | 3d专家预测最准最新 | 今日詹天佑3d预测 | 今日3d预测号码推荐 | 3d今天开机号和试机号码727 | 3d试机号和开奖号走势图 | 3d藏机图正版藏机图汇总今天最新 | 3d今晚和值是多少 | 3d今晚必中一注 | 3d万能大底共250注直选 | 中国福彩3D独胆明日推荐最新 | 3d双胆图 | 3d专家预测最准确今天南方双彩网 | 千禧3d试机号关注码金码列表 | 3d至尊独胆| 3d专家预测号码手机牛彩网 | 3d今晚十大专家预测汇总 | 3d今天专家预测最准确 | 解今日太湖3d字谜 | 詹天佑今日最新点评 | 3d今晚精选一注 | 3d基本走势图. | 3d推荐号3d推荐号码 | 3d今晚最精准专家 | 3d专家预测最准确今天牛彩网 | 3d邻孤传走势图乐彩 | 3d今天单挑50信 | 三d开机号和试机号今天牛彩网彩 | 3d最准专家预测号 | 3d精准推荐号 | 马后炮解3d太湖字谜总汇大全 | 3d今晚开奖结果走势图 | 3d今晚预测最准确一注今天 | 3d双胆独胆 | 试机号千禧关注金码 | 3D独胆高手走势 | 3d晚间字谜汇总汇 | 3d预测号码最准确专家预测 | 3d今晚预测最新最准确号码牛彩网 | 3d预测一注推荐 | 于海滨3d杀码图 | 3d陈华今晚就赌一胆天齐网 | 3d今天专家预测最准 | 3d专家预测最准确今天南方双彩网 | 今天专家推荐号码3d | 于海滨最新3d预测推荐今天 | 今天最新3d开机号试机号 | 3d藏机图正版藏机图汇总今天最新图片 | 3d十大专家汇总精选一注 | 3d试机号今晚开机号 | 3d今晚最准一注 | 3d预测一注推荐 | 今天3d开机号,试机号是多少 | 机选一注3d| 十拿九稳预测分析 | 3d专家预测最准确最新今天牛彩 | 3d今晚开奖结果走势图 | 3d预测专家最准确 | 3d真实的谎言正版和值字谜 | 3d最准预测专家推荐 | 于海滨3d预测号 | 3d今晚专家预测最准确一注 | 千禧3d今晚的试机号码 | 今晚3d预测开奖号码推荐 | 老炮子预测今晚三地 | 3d太湖字谜大全 太湖钓叟 | 3d预测专家最准确今天 | 3d今天专家推荐号码推荐 | 3d北丐七爷独胆 | 3d推荐号今晚专家预测最准确 | 中国福彩3D独胆下期最新分析 | 3d下期预测最精准的一注号码 | 3d专家预测最准 | 3d牛彩网专家预测 | 3d组选中一注多少钱 | 今日3d马后炮解太湖字谜 | 3d牛彩网预测汇总 | 中国福彩3D独胆大神命中率 | 3d研究生双胆王 | 千禧3试机号金码关注码金码 | 孟庆会老师3d分析预测 | 3d今晚精选一注 | 3d预测今晚最准专家预测号码 | 3d彩宝网开机号和试机号 | 今晚3d的开奖结果 | 3d走势图基本走势 | 3d预测最精准一注 | 3d两胆精准预测 | 3d预测专家精准推荐 | 3d今日字谜太湖 | 于海滨3d预测牛彩网 | 中国福彩3D独胆实时必中最新 | 3d廊坊鸿运正版推荐 | 今天3d专家推荐号 | 3d直选综合走势图表图 | 3d今晚专家推荐预测重点号码 | 钱王点评十钱王给胆下一期预测 | 今天最新3d开机号试机号关注码 | 3d今晚专家预测推荐 | 3d今天最准专家预测 | 3d专家今日推荐号码 | 三d专家杀码 | 3d绝杀二码今天最新更新内容 | 3d钱王老头给胆点评 | 3d专家预测最准确最新汇总 | 于海滨3d预测牛彩网 | 3d专家预测最准确最新今天 | 3d上下五千年专家预测 | 3d推荐最新最准专家预测 | 今晚3d开奖号试机号 | 3D独胆明日推荐最新 | 3d和值基本走势图表 | 今日3d预测号码推荐 | 牛彩网预测3d | 3d独胆双胆 | 3d和值振幅走势图带连线坐标 | 3d专家最新最准专家预测 | 3d买一个独胆中了得多少钱 | 最准杀码王p3 | 3d带线走势图连线走势图 | 3d推荐号今晚专家预测 | 3d双胆独胆非常非常稳定 | 3d十大专家预测汇总 | 于海滨海3d预测免费每日精选3d开奖号 | 3d今天开机号和试机号查询100期 | 3d预测专家最准确 | 3d组选中一注多少钱 | 3d和值尾振幅走势图3d之家 | 今天的3d太湖字谜图 | 于海滨杀码今天最新版 | 3d今晚专家推荐 | 于海滨3d预测免费 | 至尊计划王三天计划独胆 | 3d预测专家准确推荐 | 今晚必中一注i | 三d预测专家预测 | 3d今天的开机号和试机号查询 | 3d今晚上专家推荐号 | 3d今日开机号和试机号及关注码 | 3d直选一注50倍单挑 | 最准3d预测专家推荐号 | 3d免费预测 | 3d资料大全免费 | 牛彩网3d预测汇总大全手机版下载 | 今天3d牛彩网专家预测 | 3d最准专家预测号 | 今晚3d开奖号走势图 | 3d败家子独胆图 | 3d预测最准专家预测号 | 福彩3D独胆今晚必中最新 | 3d今晚试机号是多少查询 | 3d开机号和试机号今天 今晚 | 3d预测专家推荐最准确 | 今晚上3d开奖号码 | 今天3d开机号和试机号金码 | 三地千禧试机号关注金码对应码 | 3d精准预测最准的专家直选 | 助赢计划软件官网版下载 | 3d字谜今日字谜总汇 | 3d今天最新最准专家预测最 | 十拿九稳的最新预测 | 3d就打一个胆中了多少钱 | 3d专家预测号码手机牛彩网 | 3d今日正版藏机图最新更新内容 | 牛彩网3d预测 | 3d推荐最新最准专家预测 | 3d预测最准的专家预测 | 3d千禧试机号关注金码30期 | 3d定位独胆王三个双飞 | 龙彩居士3d预测今天最新版 | 今日3d藏机图汇总 正版 新版 | 3d彩界精英独胆双胆 | 今日3d字谜太湖钓叟字谜正版 | 下一期专家准确预测 | 唐龙一胆今天最新 | 3d牛彩网专家预测汇总 | 3d今天专家预测最准确 | 3d公式计算方法 | 3d十大专家精准预测汇总 | 3d直选100%中奖绝技软件 | 于海滨海3d专家预测 | 3d今晚专家看独胆 | 3d所有走势图| 3d最新专家预测汇总 | 十拿九稳预测分析 | 3d陈华就赌一个胆天齐网 | 3d试机号近10期彩经网 | 3d预测专家最准确的专家预测今晚 | 3d农村小伙子最新预测 | 唐龙3d预测号 | 牛兄双胆 | 十拿九稳预测专家分析 | 今于海滨最新预测今天 | 3d开机号近200期历史记录 | 3d最新专家预测汇总 | 天天彩于海滨海3d最新预测 | 3d专家最新最准预测 | 3d和值尾振幅走势图50期 | 唐龙3d预测今日出号点评 | 3d今日专家推荐 | 3d预测最精准预测 | 詹天佑3d今日推荐 | 3d今晚最准确一注 | 3d试机号开机号号码今天 | 今晚3d专家推荐号码 | 中国福彩3D独胆当天走势最新 | 3d十大专家汇总精选一注 | 3d今晚最准专家预测号码145 | 齐彩网3d专家预测 | 于海滨海3d预测牛彩网 | 3d太湖一语定胆字谜论坛 | 3d千禧试机号金码关注码对应码 | 3d专家预测最准今天 | 今天的3d藏机图正版藏图 | 3d预测最准确专家预测 | 3d开机号和试机号今天 今晚 | 3d今晚的独胆 | 3d今天专家预测最准确 | 3d最新最准专家预预测 | 3d专家预测最准今天 | 今日3d预测号 | 詹天佑3d今天最新预测 | 铁人铁胆3d包星定位最新今天 | 于海滨3d免费预测 | 3d十个位差值振幅走势图3d之家 | 3d专家预测最准确最新今天牛彩 | 今天3d开机号和试机号 | 3d预测号码最准最新准专家预测号家彩网 | 千禧3d试机号金码关注码对应码 | 今晚最准一注3d | 3d断组今晚全部 | 小财神三天计划独胆必下 | 福彩3D独胆实时走势 | 3d最准确最新专家预测 | 牛彩预测汇总3d最新 | 三d独胆王独胆双胆 | 3d今天开机号和试机号322 | 今晚3d的开奖号码结果 | 中国福彩3D独胆当天走势最新 | 排五预测专家预测 | 3d预测最准专家预测 | 3d个位振幅走势图近50期 | 3d今天预测最准确专家 | 3d独胆必下一独胆3d独胆预测 | 骄子铁鹰解3d字谜今日 | 3d精选号码推荐今天最新 | 3d开机号试机号今天开奖号 | 中国福彩3D独胆下期分析最新 | 毒牛人三天计划 | 今晚3d直选推荐 | 3d今晚最准最新专家推荐号 | 今晚3d预测最准一注 | 3d开机号试机号今天最新50期 | 3d今天精选五注 | 3d藏机图正版藏机图打印版 | 今天3d专家预测汇总 | 历史3d开奖结果 | 今晚3d推荐号码 | 钱王点评钱王老头预测 | 3d詹天佑 | 3d试后太湖一语定胆字谜 | 3d单选一注能中多少钱 | 3d必中永久直选500注大底 | 3d最精准的专家预测 | 3d计算机开机号夏天推荐 | 3d下期预测最准一注 | 成功路上3d双胆独胆 | 3d谜语今天字谜今天的3d字谜是什么? | 3d太湖字谜图谜 | 今晚3d专家预测精选一注 | 3d和尾振幅走势图3d专家 | 于海滨3d免费预测 | 杀码王杀码| 3d独胆双胆专家预测网 | 排三专家推荐与预测今天 | 3d今晚推荐号 | 3d牛彩网断组预测 | 今日3d专家预测总汇 | 3d预测专家最准确 | 3d个位走势图振幅 | 3d今晚100倍 万能三码的使用方法 | 3d预测专家推荐最新 | 3d预测专家最准确今天 | 3d预测一注号推荐一3d预测一注今天 | 3d今晚专家预测最准确号码 | 3d开机号和试机号今天多少 | 于海滨海3d专家预测今天 | 太湖3d字谜三字诀 | 三d预测专家 | 中国福彩3D独胆今日走势最新 | 3d专家预测最准确最新今天牛彩 | 福彩3D独胆最新走势最新 | 于海滨最新3d预测推荐今天 | 3d千禧今晚试机号码 | 3d千禧试机号关注码金码是什么 | 3d专家今天推荐号 | 今日3d开奖号太湖字谜总汇 | 3d和值尾振幅走势图带连线图表 | 3d走势图带连线牛彩网 | 55125预测汇总3d | 3d单式怎么才算中奖 | 3d预测最准专家 | 于海滨3d最新预测 | 3d今天开机号和试机号是多少 | 97654天中图库,今天晚3d试机号 | 3d开奖号码今晚走势图 | 3d下期预测最精准的一注号码 | 3d最新专家预测汇总牛部长预测 | 今于海滨3d预测彩吧图 | 3d独胆双胆 | 十拿九稳预测最准100% | 3d专家解太湖字谜汇总 | 3d独胆双胆独胆3d之村 | 3d千禧试机号关注码金码今天晚 | 3d今晚专家预测推荐号 | 3d专家预测牛彩网 | 三d开机号和试机号今天牛彩网彩 | 今晚3d专家推荐号码是多少 | 三d便民字谜图谜总汇 | 福彩3D独胆下一期走势最新 | 明天太湖3d三字诀 | 今天专家推荐号码3d | 3d晶晶必下一独胆今天 | 东北小胆神今晚独胆 | 3d近30期开机号试机号开奖号查询 | 3d千禧试机号码金码关注码 | 3d太湖专家预测今晚 | 3d太湖钓叟字谜三字诀论坛 | 3d牛彩网采摘收集预测汇总 | 今日3d藏机图汇总 正版 新版 | 3d每天一个独胆 | 3d今晚专家预测推荐号 | 2009年浙江风采3d走势图 | 3d彩吧预测,预测 | 一定牛3d一注号推荐3d预测今天 | 中国福彩3D独胆内部走势最新 | 3d今日专家推荐号 | 3d十大专家汇总大全 | 3d最准的预测专家 | 3d晚间字谜汇总汇 | 3d定百位一个号多少钱 | 3d开机号和试机号金码今天的 | 3d预测 下一期 3d预测专家 3d预测 | 3d今晚专家预测最准确一注 | 今天3d专家推荐重点号码 | 今天3d专家推荐重点号码 | 3d个位走势图图表 | 3d千禧试机号码金码关注码 | 3d跨走势图带连线走势图 | 三字诀太湖三字诀字谜 | 3d太湖钓叟字谜三字诀乐彩论坛 | 3d牛彩网预测 | 3d字谜财神一语定一注 | 3d推荐最新最准专家预测 | 今日精准预测推荐3d号码 | 3d预测专家最准确的专家预测今晚 | 3d牛彩网断组预测 | 3d专家号| 今天十拿九稳号码预测 | (暴富密码)绝杀两码预测 | 于海滨海3d专家预测今天 | 3d天地杀码图 | 3d预测最准专家预测号码 | 今晚于海滨海3d预测3d | 3d十大专家汇总精选一注 | 宇海宾杀码图 | 今晚3d专家最精准的预测 | 独胆三天计划 | 千禧今晚3d试机号关注码金码 | 3d开机号和试机号码牛彩网 | 今天3d开机号试机号对应码列表 | 3d牛彩网试机号后专家预测汇总 | 三d牛彩网开机号试机号是多少 | 3d今天专家推荐号码 | 3d今天开机号和试机号码 | 3d专家预测最准确最新汇总 | 今天3d开机号和试机号对应金码 | 太湖解3d字谜汇总 | 3d开机号试机号30期列表彩宝网 | 千禧关注码试机号金码 | 3d试机号今天开机号查询结果 | 豪哥看3d定位 | 3d今晚专家预测推荐 | 3d专家最新最准专家预测汇总 | 3d今天专家推荐号码是多少 | 牛彩网专家汇总汇总3d | 3d家彩预测 | 今于海滨3d预测今天牛彩网 | 北斗3d今日专家预测推荐 | 于海滨专家一语定胆十每日 | 今天3d太湖字谜三字诀 | 3d开奖号码结果 今晚 | 3d双胆独胆必下一 | 于海滨海3d最新预测 | 3d试机号后专家预测推荐汇总 | 3d牛彩网试机号后专家预测汇总 | 今于海滨3d预测彩吧图 | 千禧金码关注码试机号 | 3d专家今天预测汇总 | 福家老三3d推荐号 | 十拿九稳预测分析 | 3d预测一注号推荐 | 3d专家预测更准确今天 | 3d专家预测最准确最新今晚预测 | 3d开机号和试机号今天查询 | 3d今天最准专家预测 | 3d历史今天开奖结果 | 3d最精准的专家预测 | 3d预测专家最准最新 | 今晚3d一注直选 | 千禧三地试机号对应码金码 | 3d预测最准确专家预测 | 3d今天的开机号和试机号查询 | 3d北斗专家北斗预测今天079期3d | 3d机选一注 | 3d十大专家双胆预测汇总 | 3d于海滨上的今天预测 | 福彩3D独胆老师杀号最新 | 3d推荐号今晚专家预测 | 3d专家预测推荐汇总 | 3d开机号和试机号金码关注对应号 | 看彩大亨最新独胆预测 | 3d专家预测最新推荐 | 3d今天最新最准专家预测最 | 今天3d开机号试机号对应码列表 | 3d今天最新最准专家预测最 | 3d今日开机号和试机号及关注码 | 三d推荐号专家预测今天 | 今日3d大老人预测号 | 3d号码预测 | 《金银胆神》金胆银胆3d最新一期开奖 | 今晚3d专家推荐号码是多少 | 牛彩网3d预测分析汇总大全 | 马后炮解3d太湖钓叟字谜总汇大全 | 近10期3d开奖结果 | 3d直选走势图(专业版) | 于海滨今日杀码图最新 | 3d最准一注(单挑王) | 今天3d开机号 试机号是多少 | 中国福彩3D独胆当天分析 | 3d十大专家推荐号码汇总 | 3d条件预测专家专区 | 3d独胆双胆专家预测网 | 3d近100期开奖结果全部 | 近100期3d开机号和试机号 | 3d今晚推荐三注 | 3d预测专家准确推荐 | 3d太湖字谜官网 | 3d今日开机号和试机号及关注码 | 试机号开机号金码关注号对应码3d | 千禧3d试机号关注码金码列表 | 中国福彩3D独胆老师分析最新 | 3d独胆双胆专家预测网 | 3d预测专家准确推荐 | 3d基本走势图(专业版)近200期 | 3d预测最准的专家预测 | 无敌胆王今日双胆 | 3d专家预测最准确最新今天牛彩 | 3d牛彩网字谜图谜总汇九 | 3d开奖杀码定胆 | 顶级胆神双胆下一 | 于海滨杀码图今天最新 | 3d专家推荐最新预测 | 3d谜语今天字谜今天的3d字谜是什么? | 3d推荐号今晚专家预测 | 3d开机号和试机号今天金码关注号 | 一代女王p3杀两胆独胆 | 辉煌看胆双胆3d | 3d最准预测专家预测汇总 | 3d千禧开机号试机号关注金码对应码 | 3d今晚专家预测最准确号码 | 3d于海滨今天预测保真 | 于海滨点评专家一语定胆保真版 | 白骨精3d独胆图今天 | 3d专家预测最准确今天南方双彩网 | 最准3d专家预测推荐 | 3d预测最准最新准专家预测 | 2012099期3d开奖结果 | 3d今天最新最准专家预测最 | 3d今天的推荐号 | 3d今晚字谜太湖字谜是什么 | 3d试机号今天开机号查询 | 3d的预测号| 3d太湖字谜一语定胆 | 今天的3d藏机图正版藏图 | 3d解太湖字谜汇总 | 铁人铁胆定位包星 | 3d今晚字谜太湖字谜是什么 | 3d双胆预测3d双胆下3d 双胆推荐 | 3d最大值振幅走势图3之家 | 7号电池最建议买的三个型号 | 3d今天专家预测推荐号码 | 3d今晚预测直选四注 | 3d今天开机号,试机号 | 3d预测最准确专家预测 | 3d专家预测最准确今天南方双彩网 | 3d杀码百位十位个位 | 3d号码预测和推荐号今天 | 3d专家预测推荐 | 3d詹天佑最新预测今天 | 3d振幅和值尾走势图 | 3d预测最准专家预测牛彩网 | 3d布衣双胆独胆王 | 中国福彩3D独胆今日精准预测 | 今日3d预测号码推荐 | 今晚精准一注3d | 今晚3d的试机号是 | 3d今晚专家预测推荐 | 3d预测号码最准确专家预测 | 3d推荐号码今晚预测 | 今天3d专家解太湖字谜汇总 | 三d独胆| 太湖试机号后一句定三码3d字谜 | 3d一定牛专家预测推荐 | 3d机选一注 | 3d今晚专家推荐号 | 于海滨3d今晚预测 | 今天龙头凤尾预测 | 福彩3D独胆下期杀号最新 | 3d开机号今天试机号查询 | 3d藏机图正版藏机图汇总今天最新 | 3d开机号和试机号30期列表 | 杀码大全汇总 | 3d今晚开奖号码结果是多少 | 今晚了3d开奖结果 | 中国福彩3D独胆下期推荐 | 3d今晚最准最新专家推荐号 | 3d今晚最准专家推荐号 | 3d今天最新最准专家预测最 | 3d于海滨预测预测牛彩网 | 3d专家预测最准确最新汇总 | 3d千禧试机号关注码金码是什么 | 于海滨专家预测 | 千禧3d试机号金码关注码码关注码双彩论六个 | 3d试机号开机号近50期 | 今日精准预测推荐3d号码 | 北京胆王2彩吧图库 | 今天3d开机号和试机号多少 | 3d八哥图库总汇d字谜图谜总汇大全 | 三d三胆 | 3d洞庭湖水今日预测分析 | 3d今晚出的什么号 | 个位杀码王| 3d今天最准专家预测 | 3d推荐最新最准专家预测 | 3d专家预测更准确今天 | 3d之家预测专家预测 | 3d正版藏机图谜汇总 | 3d今晚最准专家预测号码 | 三天计划3d独胆必出论坛 | 3d和值尾振幅近100期走势图 | 试机号后牛彩网专家预测3d | 3d开心毒胆独胆王 | 3d百位遗漏振幅走势图南方双彩网 | 3d独胆必下一个胆 | 3d专家预测推荐号最新 | 今天3d开机号试机号对应码列表 | 今天最新3d开机号试机号关注码 | 3d之家,专家预测预测 | 3d预测最准确专家预测牛彩网 | 3d千禧试机号关注金码30期 | 3d独胆三天必出计划论坛 | 《金银胆神》金胆银胆3d最新一期开奖 | 3d今天开机号和试机号码300 | 近30期3d开奖结果 | 今天3d开机号和试机号多少 | 3d最准确预测专家 | 福家老三3d推荐号 | 3d专家最准确推荐最新 | 三天计划3d独胆必出论坛 | 3D独胆高手走势 | 3d和值推算公式 | 百位振幅走势图3d之家 | 近30期3d开机号 | 3d乾坤独胆王独胆 | 3d精准预测推荐 | 3d预测专家精准推荐 | 今天3d专家预测汇总 | 3d今天的开机号和试机号查询 | 陈华今晚3d赌一胆天齐网 | 3d预测最准专家预测 | 3d詹天佑最新预测 | 3d焰舞和值谜字谜 | 个位杀码王 | 3d直选综合走势图表图 | 3d最准一注号码 | 3d和值基本走势图表 | 3d白娘子跨度字谜汇总今天牛彩网 | 于海滨海3d专家预测今天 | 十拿九稳预测专家分析 | 3d最精准的专家预测精选 | 今晚3d试机号开机号金码号 | 骄子铁鹰解3d字谜今日 | 周不出最新3d杀码 | 3d今晚最准确一注 | 最准确3d专家预测 | 3d预测詹天佑 | 3D独胆最新分析 | 钱王点评十钱王老头给胆 | 3d双胆独胆推荐 | 今天3d开机号试机号金码 | 三码合一是什么意思? | 今晚3d预测推荐一注 | 3d开机号和试机号正版彩吧 | 3d专家预测最准确最新新闻 | 3d今晚专家预测 | 试机号后牛彩网专家预测3d | 3d独胆双胆天齐网 | 千禧开机号试机号关注号金码杀码 | 今天太湖字谜三字诀是什么 | 今天晚上三d开奖结果 | 3d独胆必下一独胆3d独胆预测 | 3d今晚最准专家预测号码 | 3d詹天佑预测分析牛彩网 | 3d字谜汇总大全总汇牛彩网开机号 | 3d直选100%中奖绝技软件 | 三d牛彩网开机号试机号是多少 | 詹天佑3d预测今天推荐号码 | 3d预测专家汇总预测 | 今于海滨3d预测今天牛彩网 | 玩彩独胆王三天计划 | 唐龙一胆 | 3d专家预测最新最准 | 中国福彩3D独胆老师分析最新 | 3d预测最准确专家预测 | 今天3d专家预测号码 推荐 | 今日3d专家预测总汇 | 今于海滨最新预测今天 | 千禧试机号关注金码是什么 | 詹天佑3d预测号 | 3d千禧试机号金码关注码对应码 | 3d专家最新最准专家预测汇总 | 3d和值遗漏值尾走势图 | 3d太湖字谜总汇大全 每天更新 | 3d预测总汇手机牛彩网 | 3d詹天佑预测分析牛彩网 | 3d小红人三天计划 | 3d今天的推荐号 | 千禧之年3d开机号试机号金码关注 | 3d于海滨杀码图 | 3d最新最准专家预预测 | 3d詹天佑最新预测今天 | 今天的3d开机号和试机号查询 | 今日3d预测号码推荐 | 成功路上3d双胆独胆 | 3d预测最准确专家预测 | 3d下期预测最精准的一注号码 | 3d双胆中中中 | 3D独胆独家推荐最新 | 今天彩报中心 3d图库 | 3d玩彩老头预测今天号码 | 3d太湖字谜图谜总汇 | 3d杀码于海滨 | 3d小红人三天计划 | 3d跨度振幅走势图3d专家 | 3d预测最准确专家预测 | 3d预测最准的专家 | 3d专家预测最准最新今天 | 3D独胆高手走势 | 3d今天最准专家预测 | 3d最全晚间字谜汇总大全 | 3d预测专家最准确 | 3d今晚开奖号走势图 | 今日3d专家预测号码推荐 | 太湖3d字谜图谜总汇 | 3d预测专家精准推荐 | 3d今晚预测直选一注 | 3d今天开机号和试机号322 | 今日3d开机号和试机号列表三十期 | 3d独胆双胆专家预测网 | 3D独胆本期推荐最新 | 福彩3D独胆老师必中最新 | 3d今晚上专家推荐号 | 骄子铁鹰解3d字谜今日 | 3d直选历史遗漏查询 | 陈华今晚就赌一个胆预测 | 3d今晚预测最新最准确 | 3d之家预测专家预测 | 千禧3d试机号金码关注码码关注码双彩论六个 | 3d北丐七爷独胆 | 独胆双胆3d之家 | 3d五码复式 | 3d和值和尾走势图带连线图表 | 3d玩彩老头预测今天号码 | 3d专家推荐号 | 今天3d专家推荐号 | 3d专家预测最准确最新今晚预测 | 3d推荐最新最准专家预测 | 三天计划独胆牛人 | 专家预测3d号码准确 | 3d六码组三多少钱一注 | 3d杀码一定牛 | 3d精准预测最准的专家 | 3d免费预测 | 3d千禧试机号关注码金码是什么 | 千禧今晚3d试机号关注码金码对应 | 3d预测最准最新准专家预测号码 | 詹天佑3d分析推荐 | 天才三天独胆计划 | 3d跨度振幅近100期走势 | 3d今晚和值推荐 | 【开心毒胆】今天 | 3d精准预测最准的专家 | 财神一语定一注3d字谜 | 3d预测今晚最准 | 今晚于海滨海3d预测3d | 3d专家推荐预测号 | 3d毒胆王独胆 | 廊坊鸿运3d最新预测 | 于海滨3d今晚预测号码 | 今日3d最准开机号 | 千禧今晚3d试机号关注码金码 | 于海滨海3d杀码图 | 今日3d太湖三字谜 | 3d今晚专家推荐预测重点号码 | 3d专家预测于海滨 | 3d独胆预测 | 3d试机号后专家预测推荐汇总 | 3d千禧试机号金码关注码对应码 | 3d今天专家推荐号码推荐 | 3d预测最准的专家预测 | 3d最近基本走势图 | 3d下期预测最精准的一注号码 | 十拿九稳专家最新预测 | 3d试机号后专家预测汇总 | 3D独胆今晚预测 | 3d北斗专家北斗预测今天079期3d | 3d独胆专家预测 | 于海滨专家预测 | 3d今于海滨杀码图 | 3d免费预测汇总牛彩网 | 3d金胆王| 千禧今晚3d试机号关注码金码对应 | 今天3d专家推荐重点号码 | 3d开奖号码走势图表 | 3d分析预测 | 今晚3d开奖号试机号 | 97654天中图库,今天晚3d试机号 | 于海滨3d免费预测最新的 | 小龙一语定三胆3d今日字谜 | 千禧3d今天的试机号 | 3d藏机图天齐正版藏机图 | 3d千禧试机号关注金码30期 | 3d专家解太湖字谜汇总 | 3d专家预测最准确今天南方双彩网 | 3d牛彩网字谜图谜汇总九 | 3d走势图带连线图表牛彩网 | 3d直选三注 | 3d绝杀二码今天最新更新内容 | 3d北斗专家北斗预测今天079期3d | 3d今晚和值字谜 | 3d最新专家预测推荐 | 3d和值尾振幅走势图3d走势3d之家 | 今晚最全3d晚间字谜汇总192期 | 3d马前屁解太湖字谜 | 3d条件预测专家专区 | 今天的3d开机号和试机号中奖号 | 福彩3D独胆下期最新分析 | 今日3d马后炮解太湖字谜 | 3d十大专家预测汇总 | 3d推荐最新最准专家预测 | 毒胆牛人三天计划今天 | 家彩专门提供3d试机号开机号 | 2012099期3d开奖结果 | 牛彩网近30期3d开机号试机号 | 3d毒毒毒胆胆胆中中中 | 【福星】3d单挑10注组 | 今天3d开机号试机号金码 | 3d今晚专家推荐号 | 3d杀码图专区,杀码图 | 3d今晚专家预测最准确一注 | p3故事小王双胆下一今天 | 今天3d专家解太湖字谜汇总 | 投资计划独胆三天计划 | 3d免费专家预测推荐今天最新 | 3d专家直选最精准一注 | 今晚3d预测推荐一注 | 3d今晚专家预测推荐号 | 3d最晚间字谜汇总大全 | 3d今日预测推荐号 | 3d李明启预测号 | 福彩3D独胆明日精准预测 | 3d近200期试机号和开奖号码 | 3d今晚开奖结果号码是 | 陈华今晚就赌一个胆预测 | 今日排三太湖钓叟字谜三字诀 | 3d预测最准确专家预测牛彩网 | 3d预测专家准确推荐 | 3d今日专家推荐号 | 3d精选号码推荐今天最新 | 今日3d太湖字谜三字诀排三开奖结果 | 今天3d藏机图正版藏机图藏机图太湖横屏 | 3d今晚和值字谜 | 3d太湖字太湖字谜今天 | 十拿九稳预测最准100% | 3d最准专家预测方法 | 3d推荐号今晚专家预测 | 3d太湖字谜图谜 | 今天3d正版太湖字谜 | 3d藏机图正版藏机图全图牛彩网 | 3d今晚最准专家预测号码 | 3d今晚最准专家推荐号 | 3d预测 下一期 3d预测专家 3d预测 | 今晚3d试机号千禧试机号金码关注 | 福家老三3d推荐号 | 千禧之年3d开机号试机号金码关注 | 3d上下五千年专家预测 | 三d预测专家预测今天最新 3d专家预测最准最新今天 | 今晚3d出啥 | 于海滨点评专家一注定胆保真版 | 3d今天开机号试机号码 | 3d预测今晚最准专家预测号码 | 于海滨杀码图谜 | 千禧3d试机号金码关注码杀码今天3d | 3d太湖专家预测今晚 | 3d晚秋和值谜彩吧图库 | 3d于海滨专家预测 | 个位杀码王 | 中国福彩3D独胆下期分析最新 | 3d直选100%中奖绝技软件 | 3d推荐号今晚专家预测 | 太湖马后炮3d钓叟字谜 | 3d预测专家精准推荐 | 3d十大专家汇总精选一注 | 3d预测詹天佑| 今天三字诀太湖字谜 | 马后炮解3d太湖字谜 | 3d开机号试机号30期列表走势图 | 三d五码复式打一注多少钱啊 | 3d最准预测号 | 3D独胆专家精准预测最新 | 福彩3D独胆明日分析 | 今天3d正版太湖字谜 | 3d谜语字谜太湖天齐网 | 近300期3d和值走势图 | 3d今晚最准的一注 | 3d专家预测最准确最新汇总 | 詹天佑最新预测3d | 3d预测专家最准确的专家预测 | 3d必中永久直选500注大底 | 3d今晚必中三个号码预测 | 于海滨3d最新预测 | 开心毒胆王今晚独胆 | 福彩3D独胆本期推荐 | 3d打一个独胆中了多少钱 | 3d钱王老头给胆点评 | 3d今晚预测最准确一注今天 | 今天3d开机号试机号牛彩列表 | 3d火火人独胆双胆必中 | 三七进二得三码猜一生肖 | 3d之家双胆独胆预测 | 3d静态版预测静态版 | 今日钱王给胆点评 | 3d预测今晚最准专家预测号码 | 3d最精准专家预测汇总今天 | 于海滨点评专家一注定胆保真版162期 | 3d今晚开奖号码结果是多少 | 3d预测号码最准最新准专家预测号 | 助赢计划软件官网版下载 | 3d专家预测最新推荐 | 彩吧3d开机号 | 于海滨点评专家一语定胆保真版 | 3d和值振幅走势图彩宝贝 | 3d试机号后专家推荐汇总 | 3d专家今天推荐号码推荐 | 3d开机号和试机号金码关注 | 福彩3D独胆最新推荐最新 | 3d牛彩网专家汇总汇总大全 | 3d专家最新最准专家预测汇总 | 唐龙3d预测今日出号点评 | 3d开机号和试机号正版彩吧 | 3d预测詹天佑最新 | 97654天中图库,今天晚3d试机号 | 3d晚秋和值谜彩吧图库 | 3d独胆10中10 | 3d和值走势图表综合版 | 今晚了3d开奖结果 | 排三杀码专家天齐网 | 3d预测牛彩网预测汇总 | 3d字谜解太湖字谜 | 3d预测号码最准确专家预测 | 3d预测专家推荐最准确 | 马后炮解3d字谜 | 今于海滨3d预测今天275 | 3d最准专家预测号 | 3d预测最准的专家预测 | 3d专家预测更准确今天 | 今晚3d专家预测汇总 | 3d最精准专家预测汇总今天 | 3d个位走势图图表 | 3d今天专家推荐号码推荐 | 3d彩宝贝字谜| 3d定胆技巧准确率100% | 于海滨杀码图谜 | 3d今晚最准专家预测号码145 | 财神爷三天计划独胆组合 | 3d预测专家最准确的专家预测今晚 | 3d预测 下一期 3d预测专家 3d预测 | 牛彩预测汇总3d最新 | 北斗3d今日专家预测推荐 | 3d最新专家预测汇总大全 | 于海滨海3d专家预测今晚一注 | 3d专家预测最准确最新今天牛彩 | 天天彩于海滨海3d最新预测 | 排3藏机图正版藏机图今天 3d八哥图库总汇d字谜图谜总汇大全 | 3d预测专家最准最新 | 太湖叟3d字谜湖字谜 | 3d直选一注今天 | 3d杀码专家杀码最精准 | 于海滨海3d专家预测今天 | 中国福彩3D独胆最新推荐 | 3d专家预测推荐 | 于海滨今天3d预测号 | 3d杀码一定牛 | 今天的3d太湖字谜 | 3d真实的谎言正版和值字谜 | 3d今晚精选一注 | 高手看3d经典独胆组合 | 专家彩宝贝预测汇总 | 千禧3d试机号金码关注码码关注码双彩论六个 | 白骨精3d独胆图今天 | 于海滨3d每日杀一码 | 今天3d开机号和试机号牛彩网 | 天才计划三天计划独胆 | 3d千禧开机号和100期试机号 | 3d最新预测专家推荐 | 3d独胆双胆预测 | 今天3d开机号和试机号码结果查询 | 3d今天开机号和试机号码牛彩网 | 今晚3d专家预测最准确 | 3d之家北斗今日预测 | 小财神三天计划独胆 | 今晚3d专家推荐号码是多少 | 3d预测今日最新推荐 | 3d预测专家汇总预测 | 3d最精准的专家预测 | 于海滨3d彩吧图库 | 太湖钓叟三字诀字谜更新 | 3d最新专家预测推荐 | 3d今晚必出号预测 | 3d千禧试机号金码关注码对应码 | 福彩3D独胆下一期命中率最新 | 3d基本走势结果 | 3d真实的谎言字谜总汇正版 | 今日期3d太湖字谜 | 3d独胆双胆天齐网 | 中国福彩3D独胆实时推荐 | 3d今天断组预测 | 3d今晚必下一个胆 | 福彩3D独胆高手分析 | 今天3d字谜解太湖字谜 | 中国福彩3D独胆下期最新必中最新 | 小红人的计划三天计划独胆 | 3d专家今天预测汇总 | 于海滨3d专家预测 | 3d专家今天推荐号 | 3d预测推荐汇总大全 | 千禧3d试机号金码关注码杀码今天3d | 张克永专家3d预测 | 3d今晚十大专家预测汇总 | 3d预测最准确的专家预测软件 | 3d两胆王| 3d今日专家推荐号 | 3d字谜太湖字 | 今日太湖字谜3d总汇 | 3d和值跨度走势图带连线 | 福彩3D独胆下一期走势最新 | 于海滨杀码今天最新版 | 3d今天开机号,试机号 | 3d今晚精准推荐一注 | 今日3d专家预测号码推荐 | 3d今天专家预测号码最准确 | 中国福彩3D独胆专家推荐最新 | 3d牛彩网专家汇总汇总大全 | 钱王点评钱王老头预测 | 顶级胆神双胆下一 | 3d试机号开机号今天最新 | 天齐网专家杀码大全 | 3d最准预测专家预测汇总 | 3d最新专家预测汇总牛部长预测 | 3d预测专家精准推荐 | 3d杀码百位十位个位 | 今晚3d开机号和试机号是多少 | 今于海滨3d杀码 | 3d太湖试机号 | 3d彩界精英独胆双胆 | 3d百十和值尾振幅走势图 | 陈华今晚就赌一胆今天最新 | 3d今天专家预测推荐号码 | 3d之家,专家预测预测 | 3d最精准的专家预测精选 | 于海滨专家预测 | 3d最新准专家预测 | 3d于海滨专家预测 | 3d买一个独胆中了得多少钱 | 今晚3d试机号码和开机号 | 3d廊坊鸿运 | 3d预测今晚最准专家预测号码 | 3d百位个位和值走势图 | 3d最准一个独胆毒胆 | 3d和值尾振幅走势图3d走势3d之家 | 3d试机号后专家推荐汇总 | 3d一定牛专家预测推荐 | 3d农村小伙子最新预测 | 无敌胆王今日双胆 | 今于海滨最新预测今天 | 詹天佑3d预测今天推荐号码 | 于海滨3d预测专家今天 | 3d开机号与试机号金码 | 3d专家预测最准确今天上一期 | 牛彩网预测专家3d | 3d十大专家汇总精选一注 | 3d 今天 试机号开机号3 | 3d今晚精准推荐一注 | 3d陈华今晚就赌一胆今天最新消息 | 3d独胆专家预测 | 千禧关注码试机号金码 | 3d今晚100倍 万能三码的使用方法 | 3D独胆今晚命中率最新 | 3d太湖字谜总汇大全 每天更新 | 铁人真胆一句定三码3d字谜彩搜网 | 3d老炮子直选三注 | 毒胆牛人3天计划 | 中国福彩3D独胆下一期预测最新 | 3d跨度金木水火土五行走势图 | 3d预测 下一期 3d预测专家 3d预测 | 3d八哥图库总汇d字谜图谜总汇大全 | 3d预测最准确的专家 | 福彩3D独胆独家命中率最新 | 3d今晚精准一注推荐 | 3d专家推荐最新预测 | 3d走势图和值振幅 | 3d专家最新最准专家预测 | 3d专家预测最准确今天上一期 | 真实的谎言3d字谜追加和值谜 | 3d专家预测牛彩网 | 3d各路专家预测汇总大全最新 | 拼搏在线3d开机号和试机号列表 | 3d推荐号| 开奖结果3d今天晚上 | 3d独胆一个 | 2008年359期3d焰舞字谜 | 3d 图谜字谜总汇 | 今天专家推荐号码3d | 专家3d专家推荐 | 财神一注3d| 于海滨3d预测免费每日精选 | 周星星3d预测手机牛彩网 | 3d十大专家杀跨度汇总 | 3d专家预测最准确最新新闻 | 3d最晚间字谜汇总大全 | 3d预测最准最新准专家预测 | 今于海滨3d预测今天单线联系 | 钱王老头点评牛彩网 | 3D独胆最新分析 | 3d和值尾振幅走势图带连线图表 | 3d直选走势图(专业版) | 今天最新3d开机号试机号 | 3d今天专家预测号码 | 3d今晚最准最新专家推荐号 | 3d今晚专家预测推荐 | 3d专家预测推荐号码最准最新 | 千禧3d试机号金码今天关注码对应码 | 3d基本走势图 综合 太湖三字诀字谜三 | 于海滨3d预测专家今天 | 十拿九稳预测 | 3d今晚推荐号 | 3d和值尾振幅走势图3d走势3d之家 | 3d于海滨上的今天预测 | 太湖三字谜太湖3d钓叟 | 3d今晚出什么号? | 3d开机号试机号今天最新50期 | 3d精准预测最准的专家 | 千禧3d试机号金码关注码今天 | 3d今晚上专家推荐号 | 3d独胆双胆下一 | 于海滨点评专家一注定胆保真版162期 | 3d最精准的专家预测 | 3d詹天佑最新预测 | 今天最新3d开机号试机号 | 3d藏机图正版藏图汇总大全 | 3d北斗专家北斗预测今天079期3d | 唐龙一胆| 3d今晚最准专家推荐号码 | 3d下期预测最精准的一注号码 | 今天3d专家推荐号 | 3d定和值公式 | 排五预测最准专家 | 3d跨度金木水火土五行走势图 | 千禧3d试机号关注码金码列表 | 3d今晚开机号试机号金码关注码今天 | 今天最新3d开机号试机号关注码 | 排五开奖最新结果排5 | 3d专家预测号码最准确 | 3d今天的推荐号 | 今天最新3d开机号试机号关注码 | 3d预测专家最准确今天 | 今天3d马后炮解太湖字谜汇总 | 神龙毒胆王今晚给胆 | 马后炮解3d太湖字谜总汇大全 | 财神爷三天计划必下更新 | 3d今晚专家推荐 | 3D独胆大神杀号最新 | 专家3d预测汇总 | 3d和值跨度走势图带连线 | 詹天佑最新预测3d | 3d试机号开奖号走势图表 | 今日太湖钓叟三字诀字谜 | 3d陈华今晚就赌一胆今天最新消息 | 今日3d预测专家推荐 | 3d 今天 试机号开机号3 | 中国福彩3D独胆当天精准预测 | 今天3d马后炮解太湖字谜汇总 | 3d牛彩网专家预测 | 3d今晚最准专家预测号码145 | 3d专家推荐最新预测 | 中国福彩3D独胆当天走势最新 | 3d今天开机号试机号金码关注号 | 3d家彩预测 | 3d基本走势图. | 3d藏机图正版藏机图 | 3d试机号200期历史 | 3d詹天佑预测汇总 | 福彩3D独胆今日走势最新 | 三d走势图基本走势图彩宝网 | 3d专家预测号 | 3d老炮子直选三注 | 今日3d专家预测号码推荐 | 3d试机号200期历史 | 3d专家今天推荐号 | 中国福彩3D独胆明日推荐 | 于海滨3d每日杀一码 | 千禧试机号关注号金码是什么 | 3d今天推荐号码是多少 | 三d五码复式打一注多少钱啊 | 3d字谜太湖钓叟三字诀今天 | 今日正版藏机图全部汇总 | 3d专家预测最准确今天南方双彩网 | 于海滨3d预测今天 | 3d百位走势图带连线图表专业版 | 3d今晚精彩预测 | 3d推荐号今晚专家预测最准确 | 今日3d专家预测号码推荐 | 3d专家预测最准确号码 | 3d武当玉女掌门一句定三码字谜 | 于海滨一语定胆专家点评 | 3d计算机开机号夏天推荐 | 今日3d预测号码推荐 | 3d专家预测最准确最新汇总 | 3D独胆高手走势最新 | 3d预测专家精准推荐号 | 《金银胆神》金胆银胆3d最新一期开奖 | 今晚精准一注3d | 3d北斗专家北斗预测今天079期3d | 千禧试机号金码关注 | 3d彩宝贝字谜 | 中国福彩3D独胆明日推荐 | 3d字谜总汇今日3d字谜总汇牛彩网 | 孟庆会老师3d预测今天 | 3d预测最准最新准专家预测 | 今天3d詹天佑预测分析 | 3d每期必中27注 | 3d今天专家预测最准确 | 3d和值振幅走势图彩宝贝 | 3d胆预测天齐网 | 3d十大专家预测汇总 | 3d走势图专业版(带连线) | 3d今晚专家预测推荐 | 3d预测总汇手机牛彩网 | 福彩3D独胆团队必中最新 | 今日3d太湖字谜三字诀排三开奖结果 | 近100期3d开机号和试机号 | 3d今晚最准专家预测号码145 | 北斗3d今日专家预测推荐 | 唐龙一胆 | 3d今天开机号试机号金码关注号 | 3d今晚预测一注 | 牛彩网3d预测汇总 | 3d太湖字太湖字谜今天 | 福彩3D独胆大神必中最新 | 3d开心毒胆独胆王 | 3d今晚预测准确的专家预测 | 3d试机号今天晚上是多少 | 千禧今晚3d试机号关注码金码对应 | 万能四码找下期奖号 | 3d成功路上人双胆独胆 | 3d预测汇总| 3d专家预测最准确今天牛彩网 | 今晚3d的试机号是 | 3d开奖号码今晚走势图 | 今天太湖字谜3d字谜太湖钓叟 | 3d专家预测最准最新 | 福家老三3d推荐号 | 3d杀码专家大全 | 今日3d开机号和试机号关注码千禧 | 小财神三天计划独胆必下 | 3d预测最准的专家 | 牛彩网近30期3d开机号试机号 | 3d双飞怎么买多少钱一注 | 3d独胆怎么打| 今日毒胆 | 排5预测,最准排五专家 | 排3藏机图正版藏机图今天 3d八哥图库总汇d字谜图谜总汇大全 | 神仙姐姐杀码今天的 | 詹天佑3d最新预测今天 | 3d专家预测最准确今天南方双彩网 | 3d李明启最新预测今天 | 3d今天预测最准确专家 | 3d精选号码推荐今天最新 | 3d今晚和值字谜 | 3d天宇和值谜字谜 | 3d字谜总汇今日3d字谜总汇牛彩网 | 陈华3d今晚赌独一胆天齐网 | 詹天佑最新预测3d | 3d预测最准专家预测号码 | 中国福彩3D独胆实时推荐 | 于海滨海3d预测今天 | 3d推荐号今晚专家预测 | 今天3d专家预测汇总 | 专家预测3d号码准确 | 于海滨海3d预测保真 | 3d和值尾振幅走势图专业版 | 3d陈华今晚就赌一个胆搜索一下 | 3d今天专家预测号码 | 于海滨海3d预测保真 | 神仙姐姐今天最新杀码 | 今日精准预测推荐3d号码 | 于海滨海3d专家预测今晚一注 | 今日正版藏机图全部汇总239期 | 百位振幅走势图3d之家 | 3d最精准的专家预测 | 3d今日预测最准专家预测 | 3d专家预测最准确今天3d | 3d今晚精选一注 | 千禧试机号金码关注号对应码杀码 | 陈华3d今晚赌独一胆天齐网 | 3d今晚预测直选一注3d一注预测 | 3d预测一注精准 | 3d徐文轩今晚推荐号码 | 3d今晚开机号试机号金码关注码今天 | 3d今天的试机号开机号是多少 | 3d下期预测最精准的一注号码 | 今天3d杀码 | 3d今晚精选预测一注 | 3d独胆王精准100% | 3d孔方来萃解太湖字谜 | 3d最新最准专家预测号码 | 3d千禧金码试机号关注码开奖号 | 3d今晚专家预测 | 3d预测最准最新准专家预测号码 | 3d试机号开机号今天金码关注 | 3d最新专家预测精选一注 | 3d太湖字谜总汇大全 每天更新 | 3d独胆专家推荐独胆 | 3d直选走势图(专业版) | 彩宝贝十大专家杀蓝号 | 太湖三字谜太湖3d钓叟 | 太湖字谜钓叟3d字谜 | 3d今天专家预测号码 | 3d各路专家预测汇总大全最新 | 最精准杀码王 | 3d最准一注号码 | 3d至尊计划独胆 | 3d今天开机号和试机号牛彩网 | 3d独胆双胆预测 | 3d詹天佑| 3d今晚专家看独胆 | 铁人铁胆包星定位今天最新结果 | 马到成功杀两码最新版本更新内容 | 三d胆| 3d独胆双胆专家预测网 | 陈华今晚就赌一胆今天最新 | 陈华今晚就赌一个胆今天最新更新内容 | 3D独胆团队精准预测最新 | 万能四码使用技巧 | 今日3d预测专家推荐 | 3d预测专家最准最新 | 3d今晚上专家推荐号 | 3d独胆高手 | 最新3d预测专家预测 | 于海滨3d彩吧图库 | 于海滨今日杀码图最新 | 3d中国独胆王今天 | 3d今晚专家预测最准确一注 | 3d专家最准确预测 | 3d今天中了多少注直选 | 3d预测号码最准最新准专家预测号家彩网 | 3d最精准的专家预测 | 3d最准专家预测号 | 3d今晚专家预测 | 3d直选走势图(专业版) | 3d直选三注 | 唐龙每日一胆天齐网 | 3d最新最准专家预预测 | 3d和值尾金木水火土走势图 | 今天3d太湖钓叟三字诀字谜 | 今天3d开机号 试机号是多少 | 于海滨一语点评今日 | 3d和值谜汇总大全 | 小红人的三天计划今天是什么 | 今晚3d预测总汇 | 周星星3d预测手机牛彩网 | 今于海滨3d预测彩吧图 | 3d和值和尾振幅走势图 | 3d开奖号码结果 今晚 | 3d开机号今天近100期南方查询 | 3d独胆中中中 | 今天3d金码试机号对应码开机号 | 3d开机号码近100期 | 3d试机号开奖号走势图表 | 中国福彩3D独胆专家精准预测 | 3d专家詹詹天佑最新推荐 | 今晚3d专家预测 | 3d试机号开机号今天查询排五 | 3d开机号今天试机号查询 | 彩吧3d开机号 | 3d下期预测最精准的一注号码 | 3d推荐号今晚专家预测 | 3d今天专家预测推荐号码 | 3d预测最准的专家预测 | 3d专家杀码 | 排五专家预测精准 | 今日钱王给胆点评 | 3d藏机图正版图汇总 | 3d今晚最准专家预测号码145 | 3d预测专家最准最新 | 3d今天专家预测推荐号码 | 3d今天专家推荐号码推荐 | 3d振幅和值尾走势图 | 3d万能三码共有几注 | 3d试机号牛彩网近三十期 | 3d谜语解太湖字谜 | 3d中国准神双胆 | 3d今天开机号试机号3 | 3d两胆精准预测 | 今晚3d直选推荐 | 3d预测今晚最准专家预测号码 | 今于海滨3d预测今天牛彩网 | 3d之家,专家预测预测 | 3d牛彩网断组预测 | 今晚3d专家推荐号码是多少 | 3d独胆10 10| 3d独胆双胆 | 3d精选号码推荐今天最新 | 3d开奖结果近10期 | 3d今于海滨杀码图 | 3d专家推荐精选号码 | 3d布衣独胆双胆必下一 | 福彩3D独胆团队必中最新 | 3d北斗专家北斗预测今天079期3d | 孟庆会3d预测今天 | 3d今天预测最准确专家 | 太湖字谜三字诀论坛 | 3d之家独胆,双胆 | 3d今天开机号和试机号 | 3d经典小胆王| 3d最新最准专家预测号码 | 今晚3d推荐号码 | 3d北斗专家北斗预测今天079期3d | 3d专家预测推荐号码最准最新 | 3d詹天佑点评 | 3d断组预测 | 3d预测汇总 | 今日3d字谜一句定三码和值谜定1 | 3d北斗专家北斗预测今天079期3d | 3d今天推荐号码是多少 | 3d 今天 试机号开机号3 | 3d专家预测号码最准确 | 3d跨度金木水火土五行走势图 | 3d最准确的专家预测 | 于海滨3d今晚预测号码 | 3d专家最新最准今天预测 | 3d专家詹詹天佑最新推荐 | 于海滨海3d专家预测 | 3d独胆双胆| 3d北斗专家北斗预测今天079期3d | 3d圣手字谜图谜 | 3d今天开机号和试机号牛彩网 | 今天彩报中心 3d图库 | 钱王点评| 今晚3d开奖号多少 | 3d走势图和值振幅 | 3d詹天佑最新预测 | 今日3d直选| 3d开机号和试机号近100期列表 | 3d今天开机号和试机号金码对应码 | 于海滨精准杀码图 | 3d今日预测推荐号 | 3d专家预测最准确最新今晚预测号 | 3d走势图全图表 | 今日3d专家预测号最准确 | 3d预测专家最准最新 | 3d彩界精英独胆双胆 | 3d大富好预测汇总 | 3d独胆双胆 | 3d预测一注号推荐一3d预测一注今天 | 于海滨3d每日杀一码 | 骄子铁鹰解3d字谜今日 | 今日3d正版藏机图,藏机图汇总,天中网 | 3d一定牛专家预测推荐 | 排三杀码专家 | 3d预测专家推荐最准确 | 3d推荐最新最准专家预测 | 今天3d开机号 试机号是多少 | 3d今天开机号和试机号是多少 | 3d陈华今晚就赌一胆今天最新消息 | 排3太湖钓叟字谜三字诀 | 中国福彩3D独胆明日推荐 | 铁人铁胆定位包星 | 3d最新专家预测汇总大全 | 今晚3d开奖号是多少 | 3d绝杀三码今天 | 3d走势图的基本走势图 | 今晚3d专家推荐号码 | 3d和值尾金木水火土走势图 | 3d专家预测推荐 | 3d专家詹詹天佑最新推荐 | 拼搏在线3d开机号和试机号列表 | 3d今天专家预测推荐号码 | 3d太湖字谜图谜 | 3d专家预测最准确最新今天牛彩 | 千禧试机号金码关注 | 今日3d专家预测号码推荐 | 3d专家推荐最新预测 | 中国福彩3D独胆当天精准预测最新 | 三d字谜总汇大全 | 3d免费专家预测推荐今天最新 | 3d独胆双胆专家预测网 | 千禧3d试机号金码关注码码关注码双彩论六个 | 3d预测最准确专家预测牛彩网 | 3d免费专家预测推荐今天最新 | 3d成功路上人双胆独胆 | 今天的3d太湖字谜图 | 三d五码复式打一注多少钱啊 | 预测3d | 3d预测专家最准确的专家预测今晚 | 正版真精华布衣天下今天推荐号码 | 3d预测最准最新准专家预测号码 | 3d预测专家推荐最准确 | 3d财神爷独胆双胆双飞计划三天 | 3d专家预测最准确最新新闻 | 今天晚上三d开奖结果 | 3d预测今日最新推荐 | 3d千禧金码试机号关注码 | 3d今天专家预测最准确 | 3d直选100%中奖绝技 | 3d预测专家最准确的专家预测 | 3d最新最准专家预测号码 | 3d字谜总汇今日3d字谜总汇牛彩网 | 排三太湖钓叟字谜三字诀 | 3d今天开机号试机号是几 | 于海滨3d彩吧图库 | 今于海滨3d杀码 | 3d试机号开机号近50期 | 今日3d专家推荐号码 | 3d最准确预测专家 | 3d玩彩老头预测今天号码 | 3d北斗今日预测 | 太湖三字谜太湖3d钓叟 | 开心毒胆王今晚独胆 | 三d五码复式打一注多少钱啊 | 3d专家最新最准预测 | 3d今晚最准专家推荐号码 | 3d最小差值振幅走势图 | 牛人高手【3d精选】 | 3d基本走势图结果 | 3d试机号历史情况 | 3d专家预测推荐号码 | 3d预测专家推荐号码推荐 | 今天的3d开机号和试机号查询 | 3d最新专家预测汇总 | 3d字谜太湖解字谜 | 中国福彩3D独胆当天精准预测 | 牛彩网3d专家预测汇总 | 今晚3d的开奖结果 | 3d预测专家精准推荐号 | 今天3d专家预测号码 推荐 | 3d和值尾振幅近100期走势图 | 3d十大专家推荐号码汇总 | 3d最新专家预测汇总大全 | 3d最准专家预测号 | 今晚3d天宇一句定三码字谜 | 3d今晚专家预测推荐号 | 3d直选开奖结果 | 3d专家预测推荐号码最准最新 | 3d预测最准最新准专家预测号码 | 陈华今晚独胆特别关注 | 3d千禧试机号金码关注码对应码 | 3d每期必中27注 | 于海滨3d今晚预测 | 3d开机试机号金码号关注号 | 3d专家预测最准今天 | 詹天佑推荐3d | 太湖三字谜太湖3d钓叟 | 3d千禧试机号关注号金码号开机号 | 于海滨3d预测专家今天 | 3d天宇和值谜字谜一句定三码 | 3d试机号开机号今天晚上金码号 | 3d双胆图 | 今天3d金码试机号对应码开机号 | 中国福彩3D独胆下一期预测最新 | 3d牛彩网专家预测 | 铁人真胆一句定三码3d字谜彩搜网 | 3d专家于海滨 | 孟庆会老师3d预测今天 | 3d双胆独胆非常非常 | 今天3d牛彩网专家预测 | 千禧3d今天的试机号 | 3d今晚出什么号? | 今日排三太湖钓叟字谜三字诀 | 3d基本走势图 综合 太湖三字诀字谜三 | 陈华今晚就赌一胆今天最新 | 3d开奖号码走势图表 | 3d藏机图正版藏机图太湖字谜 | 3d今晚预测 | 今日3d专家预测号码推荐 | 3d预测最新最准确号码 | 福彩3D独胆专家杀号 | 3d预测专家准确推荐 | 3d最精准专家预测汇总今天 | 3d今天开机号和试机号100期 | 3d今晚预测最准确一注 | 中国福彩3D独胆最新推荐最新 | 3d专家预测推荐号码 | 3d今晚预测准确的专家预测 | 詹天佑3d预测号 | 3d太湖字谜总汇大全 每天更新 | 3d解太湖字谜汇总精选 | 3d百个位和值尾走势图 | 3d跨度分位走势图图感觉 | 今天3d藏机图正版藏机图藏机图太湖横屏 | 牛彩网3d走势图表 | 3d钱王点评 | 3d太湖一语定胆字谜 | 福家老三3d推荐号 | 今天3d专家预测汇总 | 3d平均值走势图振幅3d之家 | 3d败家子独胆图 | 3d最近基本走势图 | 3d预测最准确的专家预测软件 | 3d预测詹天佑最新 | 3d老虎独胆 | 今日3d太湖字谜三字诀试机号 | 福彩3D独胆最新走势最新 | 3d预测汇总 | 3d今日专家推荐号 | 3d百个位差值振幅走势图100期 | 3d正版太湖字谜图谜 | 3d牛彩网试机号后专家预测汇总 | 今日3d字谜太湖钓叟字谜正版 | 3d号码预测 | 3d专家预测最准确最新今天牛彩 | 3d推荐最新最准专家预测 | 3d杀码条件今天最准 | 3d试机号开机号关注号金码 | 3d直选形态走势图彩宝网 | 于海滨3d预测牛彩网 | 3d专家预测最准确今天上一期 | 3d于海滨上的今天预测 | 今天3d的开机号和试机号是多少号 | 今日3d开机号和试机号列表三十期 | 3d推荐号今晚专家预测 | 今日3d预测号码推荐 | 3d专家今天推荐号码推荐 | 今日3d十大专家双胆总汇 | 独胆双胆3d之家 | 3d百位遗漏振幅走势图南方双彩网 | 3d预测最准专家预测 | 詹天佑3d最新消息今天 | 3d今天专家预测最新最准 | 3d双胆大师 | 3d十大专家汇总精选一注 | 卫星电话最建议买的三个型号 | 三d牛彩网开机号试机号是多少 | 于海滨3d彩吧图库 | 3d最准专家预测号今晚3d试机号 | 3d近30期试机号和开奖结果 | 3d北斗专家北斗预测今天079期3d | 3d今晚开机号试机号金码关注码今天 | 3d独胆10中10 | 3d十位走势图带连线图表专业版 | 3d基本走势图 综合 太湖三字诀字谜三 | 3d预测牛彩网 | 3d詹天佑预测分析牛彩网 | 铁娘子三天计划独胆必下300 | 3d试机号开机号今天金码关注 | 2025315期3d开奖结果 | 3d十大专家预测汇总 | 3d走势图的基本走势图 | 3d太湖字太湖字谜今天 | 3d试机号关注号金码对应码开机号 | 于海滨海3d预测牛彩网 | 3d今天的试机号开机号是多少 | 3d今晚预测最准确一注今天 | 3d预测今天推荐 | 铁人真胆一句定三码3d字谜彩搜网 | 3d十大专家杀一码汇总 | 今日期3d太湖字谜 | 3d预测今晚最准专家预测号码 | 今晚3d专家预测汇总 | 3d推荐最新最准专家预测 | 3d字谜太湖钓叟三字诀17500 | 3d预测专家最准确 | 3d今晚专家推荐预测重点号码 | 3D独胆下一期精准预测 | 中国福彩3D独胆最新推荐 | 3d试机号今晚开机号 | 3d于海滨上的今天预测保真 | 3d推荐最新最准专家预测 | 3d 今天 试机号开机号 | 3d各类和值谜追加汇总 | 中国福彩3D独胆实时推荐 | 3d最新专家预测推荐 | 福彩3D独胆老师走势最新 | 3d最新专家预测汇总大全 | 3d单双走势图表(专业版) | 3d开机试机号金码号关注号 | 3d北斗专家北斗预测今天079期3d | 于海滨海3d专家杀码 | 3d今晚一注推荐 | 3d最精准专家预测汇总今天 | 3d今晚推荐号 | 3d单个冷号最大遗漏 | 千禧3d试机号金码关注码杀码今天3d | 3d今晚预测直选四注 | 今日钱王给胆点评 | 3d最精准的专家预测 | 3d今晚出啥号 | 3d毒胆王独胆 | 3d今天专家预测推荐号码 | 3d预测最准确专家预测 | 3d今于海滨杀码图 | 3d十位走势图带连线图表专业版 | 今日3d直选| 3d今晚专家预测推荐 | 3d开奖号走势图表 | 3d同期历史对比 | 3d今晚专家预测重点号码 | 于海滨今日杀码图 | 3d专家预测推荐号最新 | 今天3d牛彩网专家预测 | 于海滨今日杀码图 | 3d专家预测最准最新 | 3d字谜今天太湖字谜 | 3D独胆下期最新精准预测 | 3d免费专家预测推荐今天最新 | 3d太湖17500字谜 | 3d专家预测最准确最新今天牛彩 | 3d十大专家推荐号码汇总 | 今日3d专家预测号最准确 | 一代女王p3杀两胆独胆 | 一定牛3d一注号推荐3d预测今天 | 今天3d詹天佑预测分析 | 今晚3d专家预测最准确 | 千禧3d试机号金码今天关注码对应码 | 于海滨海3d专家预测今晚一注 | 3d试机号后专家预测推荐汇总 | 今日詹天佑3d预测 | 3d专家预测最准今天 | 3d独胆王定位独胆定位 | 今日期3d太湖字谜 | 3d长中剑客预测今天 | 于海滨3d专家预测 | 3d开机号今天牛彩网近30期 | 3d专家最精准的推荐 | 于海滨最新3d预测推荐今天 | 福彩3D独胆下期分析 | 今日3d最准开机号 | 3d预测号最新最准牛彩网 | 3d独胆双胆专家预测网 | 3d今天专家推荐号码 | 3d牛彩网和值走势图 | 3d百位个位和值走势图 | 最准3d专家预测推荐 | 3d跨走势图带连线走势图 | 十拿九稳预测专家分析 | 3d今晚预测最新最准确 | 于海滨精准杀码图 | 3D独胆高手走势 | 3d推荐专家汇总 | 3d双胆大师今天 | 3d绝杀二码今天最新更新内容 | 3d今天开机号和试机号码 | 3d十大专家精准预测 | 廊坊鸿运3d推荐今天 | 杀码王杀码 | 3d图库彩吧彩报第三版 | 3d北斗专家北斗预测今天079期3d | 三d独胆| 毒胆牛人3天计划 | 3d十大专家汇总精选一注 | 3d预测最新最准3d之家 | 中国福彩3D独胆明日推荐最新 | 太湖3d字谜三字诀 | 今日3d专家预测号码 | 3d故事小王双胆 | 3d开机号,试机号,金码号,对应码100 | 3d千禧开机号和100期试机号 | 3d陈华今晚独胆推荐 | 3d圣手字谜图谜 | 三d预测专家最新推荐 | 今天3d詹天佑预测分析 | 千禧试机号金码关注码的历史记录 | 3d专家预测最准最新今天 | 3d恋预测今晚预测是哪里出的 | 今天买哪三个号码好 | 投资计划独胆三天计划 | 3d今日预测推荐号 | 3d双胆独胆推荐 | 今天3d藏机图正版藏机图藏机图太湖横屏 | 今天的3d推荐号码是多少 | 今天3d专家预测号码 | 3d近30期开奖号码 | 真实的谎言3d字谜追加和值谜 | 牛兄双胆 | 天府袍哥3d预测 | 北京胆王2彩吧图库 | 3d预测总汇手机牛彩网 | 3d于海滨预测预测牛彩网 | 今晚3d开奖号试机号 | 今晚3d专家预测汇总 | 3d开机号和试机号金码今天的 | 3d今晚专家推荐预测重点号码 | 于海滨海3d专家预测今天 | 今晚3d专家推荐号码是多少 | 55125预测汇总3d | 3d百位走势图带连线图表专业版 | 3d个位走势图表 | 3d组选中一注多少钱 | 3d专家预测最准最新今天 | 今晚3d专家推荐号码是多少 | 3d专家最新最准专家预测汇总 | 3d和值宫数线走势图 | 3d最准确最新专家预测 | 3d独胆一个 | 3d解太湖字谜汇总精选 | 中国福彩3D独胆实时精准预测 | 今晚3d预测专家预测号 | 陈华今晚独胆特别关注 | 今天专家推荐号码3d | 小林3d最新预测今天 | 3d图谜总汇字谜 | 3d今晚上推荐号码 | 准香港3d漫画资料 | 3d今天试机号和开机号 | 3d今天专家预测号码 | 3d预测号最新最准牛彩网 | 3d三胆预测 | 3d双飞大师双胆组合 | 于海滨杀码图 | 3d带线走势图连线走势图 | 詹天佑3d推荐 | 3d今晚预测一注 | 今晚3d预测推荐一注 | 3d最准预测号 | 飞向阳光龙头凤尾今天最新消息 | 于海滨3d今晚预测 | 今天3d中奖 | 至尊计划王三天计划独胆 | 于海滨今天杀码3d | 3d最准预测专家推荐 | 3d最精准独胆王 | 于海滨今天杀码3d | 3d推荐号今晚专家预测最准确 | 3d今天开机号和试机号码727 | 3d百位遗漏振幅走势图南方双彩网 | 专家预测3d号码准确 | 3d今晚最准专家预测号码 | 3d专家预测推荐号码 | 3d预测专家最准确 | 3d预测最准确的专家预测软件 | 3d专家预测推荐汇总 | 3d预测总汇手机牛彩网 | 3d今晚预测一注 | 3d专家预测号码推荐今天 | 3d今天开机号和试机号232 | 3d预测号最新最准牛彩网 | 今日排三太湖钓叟字谜三字诀 | 3d今天单挑50信 | 3d今晚上专家推荐号 | 三d牛彩网开机号试机号是多少 | 钱多多3d百位定独胆 | 3d试机号后专家预测推荐汇总 | 3d藏机图正版藏机图诗汇总 | 3d独胆王正版 | 3d预测号最新最准牛彩网 | 今于海滨3d预测今天单线联系 | 3d专家推荐号 | 3d预测一注号推荐今晚 | 于海滨海3d预测今天 | 3d今天试机号和开机号 | 3d预测今日最新推荐 | 3d今天专家预测号码 | 于海滨点评专家一注定胆保真版162期 | 今天3d开机号 和试机号 查询结果 | 今晚3d专家推荐重点号码 | 最精准杀码王 | 3d牛彩网专家预测 | 李明启3d今晚预测专栏 | 3d今晚预测直选四注 | 3d预测最准专家预测号 | 3d专家预测最准确最新今晚预测 | 3d试机号今天晚上是多少 | 3d今天的推荐号 | 3d最准确最新专家预测 | 3d专家预测推荐号码 | 3d开奖号今晚 | 3d今晚最准专家预测号码145 | 十拿九稳的最新预测 | 3d预测专家最准最新 | 3d至尊独胆| 3d专家预测更准确今天 | 3d藏机图正版藏机图汇总今天最新 | 3d预测专家最准确 | 3d詹天佑最新预测牛彩网 | 3d和值尾振幅走势图3d之家 | 3d三胆预测| 3d和值尾金木水火土走势图 | 3d振幅和值尾走势图 | 太湖字谜马后炮3d总汇 | 3d结果开奖号码今晚 | 3d推荐最新最准专家预测 | 3d开机号试机号近100期开奖号码 | 3d双胆独胆非常非常 | 福家老三3d推荐号 | 3d和值尾振幅走势图50期 | 千禧3d试机号金码关注码对应码 | 3d今天试机号和开机号 | 3d试机号开机号今天晚上金码号 | 今晚钱王点评推荐号 | 中国彩吧更一懂彩民最新版本更新时 | 3d双飞大师双胆组合 | 3d今天专家预测号码 | 3d小胆神独胆今天 | 排五专家预测精准 | 3d预测最准确专家 | 3d十大专家预测汇总 | 3d预测号码 | 今日3d直选| 太湖字谜马后炮3d总汇 | 3d专家预测推荐 | 三d历史走势图 | 3d开机号近30期列表彩宝网 | 3d七码复式最准专家 | 昨天3d开奖号是多少 | 3d推荐最新最准专家预测 | 3d预测推荐汇总牛彩网采摘收集 | 3d最新预测专家推荐 | 3d今晚上专家推荐号 | 于海滨今天杀码3d | 于海滨3d今晚预测号码 | 3d杀码图天齐网 | 今于海滨3d杀码 | 3d武当玉女掌门一句定三码字谜 | 十拿九稳预测专家分析 | 3d开机号,试机号和开奖号 | 太湖谜3d太湖钓叟字谜 | 3d专家推荐号 | 3d今天专家推荐号码推荐 | 独胆王三天计划 | 今天3d太湖钓叟三字诀字谜 | 3d十大专家推荐号码汇总 | 3d詹天佑最新预测今天 | 3d于海滨上的今天预测保真 | 今天3d开机号和试机号码是多少 | 今日3d预测专家推荐 | 3d今晚专家预测推荐号 | 3d玩彩老头预测今天号码 | 今晚3d开机号试机号金码关注码 | 3d北斗专家北斗预测今天079期3d | 3d藏机图正版藏机图打印版 | 今于海滨3d预测 | 张克永专家3d预测 | 三d预测最准十专家预测今晚 | 3d独胆预测 | 3d开机号试机号奖号 | 今天3d太湖钓叟三字诀字谜 | 中国福彩3D独胆当天精准预测最新 | 3d谜语太湖钓叟3d谜语今天 | 3d胆拖价格表 | 3d詹天佑预测分析牛彩网 | 3d专家预测最准 | 高手看3d经典独胆组合 | 3d预测最准确的专家 | 3d今晚最准专家预测号码145 | 毒胆牛人3天计划 | 3d组选中一注多少钱 | 今于海滨3d预测今天牛彩网 | 3d今天开机号和试机号码 | 3d陈华今晚就赌一个胆搜索一下 | 3d定胆| 3d走势图全图表 | 3d最准确的专家预测 | 3d千禧开机号试机号关注金码 | 3d和值尾振幅近100期走势图 | 3d太湖钓叟字谜三字诀 | 3d今天专家推荐号码推荐 | 3d预测专家最准确 | 3d任意两码差值尾走势图 | 3d今晚试机号是多少查询 | 3d精准预测| 3d预测今晚最准专家预测号码 | 千禧3d试机号金码关注码今天 | 于海滨最新3d预测今天 | 两天计划双胆王 | 陈华今晚就赌一胆今天最新 | 3d今天专家预测推荐号码 | 今天3d开机号和试机号多少? | 于海滨最新3d预测推荐今天 | 3d五码复式 | 今天的3d推荐号码是多少 | 3D独胆团队精准预测最新 | 3d今晚一注推荐 | 3d今晚最准专家预测号码145 | 3d最准确最新专家预测 | 3d太湖字太湖字谜 | 3d预测最准的专家预测 | 今日3d专家预测号最准确 | 千禧之年3d开机号试机号金码关注 | 今晚3d之家| 3d字太湖叟字谜 | 今晚快乐八专家预测推荐号 | 千禧3d试机号金码关注码码关注码双彩论六个 | 于海滨杀码今天最新版 | 3d的预测号| 3d预测推荐汇总牛彩网采摘收集 | 3d专家詹詹天佑最新推荐 | 3d紫云涧专家预测推荐 | 于海滨海3d专家预测今天 | 最准的3d专家预测 | 3d今晚最精准专家 | 3d开机号和试机号金码今天的 | 3d今晚专家推荐预测重点号码 | 于海滨今日3d预测 | 3d今晚专家预测最准确一注 | 3D独胆团队精准预测最新 | 3d两胆精准预测 | 3d武当玉女掌门一句定三码字谜 | 3d独胆双胆预测 | 3d彩报图今天的第五版 | 于海滨一语点评今日 | 牛彩网3d专家预测汇总 | 3d今天最新最准专家预测最 | 今天3d詹天佑预测分析 | 三d预测专家最新推荐 | 今晚3d预测开奖号码推荐 | 3d一语定胆字谜今天 | 今天的3d开机号和试机号中奖号 | 3d今天专家推荐号码 | 3d太湖专家预测今晚 | 3D独胆实时必中最新 | 太湖字谜太湖钓叟三字诀 | 3d双胆独胆非常非常稳定 | 3d今日预测最准专家预测 | 3d今天专家推荐号码推荐 | 3d独胆专家预测 | 3d试机号开机号关注号金码 | 于海滨3d杀码图 | 3d鸿运坊预测号 | 詹天佑3d今天最新预测 | 3d今晚一注直选 | 稳准狠三天计划 | 3d预测今晚最准专家预测号码 | 徐文轩3d预测推荐 | 3d今天预测最准确专家 | 詹天佑预测3d| 3d牛彩网字谜图谜总汇九 | 3d专家最准确推荐最新 | 3d今晚预测直选一注 | 今天3d千禧试机号关注号金码号 | 中国福彩3D独胆当天精准预测 | 3d预测专家预测 | 今天3d试机号开机号是什么 | 正版真精华布衣天下今天推荐号码 | 今晚3d出啥 | 今天3d专家预测汇总 | 3d千禧金码试机号关注码开奖号 | 3d近30期开奖号码 | 3d开机号与试机号金码 | 今晚3d试机号开机号金码号 | 3d今晚专家预测推荐 | 3d百位十位个位走势图 | 3d今天最新最准专家预测最 | 3d图库彩吧彩报第三版 | 3d最准专家预测号今晚3d试机号 | 卫星电话最建议买的三个型号 | 排3藏机图正版藏机图今天 3d八哥图库总汇d字谜图谜总汇大全 | 3d北斗专家北斗预测今天079期3d | 今晚3d结果 | 3D独胆明日分析 | 今于海滨3d预测今天牛彩网 | 3d预测最准专家预测号码 | 3d今晚出啥号 | 中国福彩3D独胆最新必中最新 | 3d藏机诗藏机图天中图库 | 3d千禧试机号开机号对应码关注号 | 3d千禧试机号金码关注码对应码 | 3d单个冷号最大遗漏 | 3d开机号今天近100期南方查询 | 今天3d太湖钓叟三字诀字谜 | 3d谜语解太湖字谜 | 福彩3D独胆专家杀号 | 3d专家预测最准确最新今天牛彩 | 3d独胆预测必下一胆 | 福家老三3d推荐号 | 3d今晚最准专家预测号码 | 3d最准预测专家推荐 | 3d独胆预测必下一胆 | 3d跨度分位走势图图感觉 | 专家3d专家推荐 | 中国福彩3D独胆下期推荐杀号最新 | 3d近30期开机号试机号开奖号查询 | 3d太湖17500字谜| 3d今天专家推荐号码推荐 | 财神爷独胆三天计划,就这么牛 | 3d免费专家预测推荐 | 3d专家最新最准预测 | 3d推荐号今晚专家预测 | 3d最准专家预测号 | 3d预测最新最准专家 | 3d今晚专家预测最准确号码 | 3d藏机图天齐正版藏机图 | 3d毒毒毒胆胆胆中中中 | 3d带连线走势图(专业版) | 3d今天专家预测最准确 | 三天计划3d独胆论坛 | 今日3d开机号和试机号关注码千禧 | 今晚3d直选推荐 | 财神一注3d | 今日3d专家预测号最准确 | 3d条件预测专家专区 | 3d解太湖字谜汇总 | 3d最准专家预测号 | 3d预测最准确专家预测 | 3d近200期试机号和开奖号码 | 3d太湖字谜三字诀 | 今晚3d一注直选 | 3d玩彩老头预测今天号码 | 3d和值尾振幅走势图近50期 | 3d预测专家最准确的专家预测今晚 | 3d农村小伙子最新预测 | 3d今日预测推荐号 | 3d最准确专家预测 | 3d今天专家预测最准 | 3D独胆今晚命中率最新 | 3d百位绝杀一码 | 今天3d开机号和试机号牛彩网 | 福彩3D独胆独家预测最新 | 3d专家预测号码最准确 | 3d开机号,试机号,金码号,对应码100 | 3d预测一注精准 | 三地千禧试机号关注金码对应码 | 3d乐彩走势图表 | 于海滨3d杀码预测 | 陈华3d今晚赌独一胆天齐网 | 3d和值尾遗漏走势图 | 福彩3D独胆当天分析最新 | 今天3d开机号关注号试机号金码 | 于海滨今天杀码3d | 3d太湖字谜三字诀 | 钱王点评+钱王老头预测 | 詹天佑预测3d | 3d预测最准确的专家 | 3d预测最准最新准专家预测号码 | 孟庆会点评 专家一语定胆 稳准狠三天计划 | 马后炮解今日太湖字谜三字诀 | 今天3d开机号试机号码 | 2014年359期3d焰舞字谜 | 3d今天预测最准确专家 | 今晚3d结果| 3d之家独胆,双胆 | 3d今晚最准专家预测号码145 | 中国福彩3D独胆下期分析最新 | 3d预测最准确的专家预测软件 | 中国福彩3D独胆老师分析最新 | 3d最准一个独胆方法 | 3d今晚专家推荐预测重点号码 | 3d最精准的专家预测精选 | 今晚3d结果开奖号码 | 3d于海滨上的今天杀码 | 3d预测今日最新推荐 | 于海滨海3d预测免费每日精选3d开奖号 | 3d十大专家杀跨度汇总 | 3d最新专家预测汇总 | 3d今天晚上的开奖号码 | 3d专家最新最准专家预测汇总 | 3d专家杀码图 | 牛彩网3d预测汇总 | 3d今晚专家预测推荐 | 3d专家最新最准专家预测汇总 | 3d专家预测推荐号最新 | 3d试机号近30期牛彩网 | 3d最准确的专家预测 | 小薇3d预测| 开机号试机号3d今天 | 3d今天的试机号开机号 | 今日3d正版藏机图,藏机图汇总,天中网 | 千禧3d试机号关注码金码试机号 | 十拿九稳今天预测专家 | 3d今晚推荐号码最新 | 3d预测最准的专家预测 | 3d 试 机 号今晚 | 3d最新专家预测汇总 | 3d晶晶必下一独胆今天 | 3d太湖钓叟字谜三字诀了3d开奖 | 3d预测最准最新牛彩网 | 3d预测 下一期 3d预测专家 3d预测 | 3d湘西胆王今日字谜 | 真实的谎言3d字谜追加和值谜 | 牛彩网3d预测汇总大全手机版下载 | 毒胆| 3d开机号和试机号200期列表 | 西施姐姐就赌一个独胆 | 杀码是什么意思 | 今天晚上3d开奖结果 | 3d今晚精准一注推荐 | 3d太湖字谜今天 | 3d独胆王精准100% | 试机号开机号金码关注号对应码3d | 3d基本走势图表完整版 | 最新3d预测专家预测 | 独胆三天计划 | 3d字谜太湖解字谜 | 3d专家独胆推荐 | 千禧三地试机号对应码金码 | 3预测,3d专家预测,最准确今天彩网 | 3d预测今天更准 | 今于海滨点评专家一语定胆 | 3d专家推荐号最准确的推号 | 3d牛彩网今天开机号试机号 | 3d预测专家推荐最准确 | 廊坊鸿运3d推荐今天 | 3d詹天佑预测汇总 | 于海滨3d杀码图 | 于海滨杀码图今天最新 | 十拿九稳预测分析 | 3d预测一注号推荐 | 3d开机号和试机号金码关注 | 千禧关注码试机号金码 | 3d走势图专业版(带连线) | 唐龙点评3d预测今天 | 3d牛彩网专家预测汇总 | 3d必中永久直选500注大底 | 福彩3D独胆高手预测 | 3d预测最准确专家预测牛彩网 | 牛彩网3d专家预测汇总 | 3d基本走势图 综合 太湖三字诀字谜三 | 3d专家预测最准最新今天 | 解3d字谜太湖钓叟汇总 | 3d今晚专家推荐 | 詹天佑今日3d预测 | 今天3d开机号 和试机号 查询结果 | 3d真实的谎言字谜总汇正版 | 西施姐姐就赌一个独胆 | 3d今天专家预测推荐号码 | 于海滨3d预测牛彩网 | 3d今天最准专家预测 | 3d今晚最稳 | 3d今晚字谜太湖字谜是什么 | 三七进二得三码猜一生肖 | 3d精准预测最准的专家直选 | 3d今晚精彩预测 | 3d手机牛彩网专家预测 | 3d今天开机号和试机号金码对应码 | 3d精准一注今天 | 3d于海滨专家预测 | 3d今天开机号和试机号码 | 专家彩宝贝预测汇总 | 千禧开机号试机号关注号金码杀码 | p3故事小王双胆下一今天 | 3d十大专家双胆预测汇总 | 今日3d钱王点评 | 最准确3d专家预测 | 于海滨点评加专家一语 | 3d今天专家预测号码 | 福家老三3d推荐号 | 3d今于海滨杀码图 | 今天的3d开奖号是多少 | 3d藏机图正版藏机图太湖字谜 | 3d今天最新最准专家预测最 | 北斗3d今日专家预测推荐 | 今天3d开机号和试机号 | 试机号后牛彩网专家预测3d | 3d专家预测推荐号码 | 3d今晚精准一注推荐 | 3d解太湖字谜汇总 | 3d徐文轩今晚推荐号码 | 3d专家预测号码推荐今天 | 3d之家预测专家预测 | 3d两胆下一稳定方法 | 3d今晚一注直选 | 福彩3D独胆下期推荐必中 | 3d字谜太湖解字谜 | 3d今天专家预测最新最准 | 于海滨的今日预测 | 3d开机号和试机号金码关注对应码 | 3d今晚必中三个号码预测 | 3d开机号试机号今天开奖号 | 今晚快乐八专家预测推荐号 | 今晚3d开奖结果是多少 | 白骨精3d独胆图今天 | 最准的3d专家预测 | 3d詹天佑最新预测牛彩网 | 3d预测最准专家预测 | 3d字谜太湖钓叟三字诀17500 | 3d六大专家杀码汇总 | 今天3d号码推荐 | 三d字谜总汇大全 | 今晚3d一注50倍 | 3d万能四码走势图表 | 3d小胆神独胆今天 | 3d今晚最准专家预测号码 | 于海滨3d预测今天 | 3d预测一注精准 | 于海滨3d预测天齐网 | 3d今日太湖字谜 | 3d精准预测最准的专家 | 3d专家免费预测 | 3d预测最准确专家预测 | 太湖马后炮3d钓叟字谜 | 3d和值尾振幅走势图3d之家 | 3d今天开机号和试机号码 | 3d开奖结果今晚号码 | 西施姐姐就赌一个独胆 | 3d今晚预测直选一注3d一注预测 | 3地独胆,毒胆双胆家彩网 | 3d今天专家预测推荐号码 | 于海滨3d彩吧图库 | 于海滨点评专家一注定胆保真版 | 近100期3d开机号和试机号 | 3d推荐专家汇总 | 3d今晚必下一个胆 | 3d专家预测最准确最新汇总 | 3d中国独胆王今天 | 推荐一注3d号码 | 3d字太湖字谜 | 3d预测最新最准3d之家 | 3d今天预测最准确专家 | 3d今晚专家预测最准确一注 | 3d开机试机号金码号关注号 | 今晚3d专家推荐 | 3d徐文轩今晚推荐号码 | 3d今晚专家预测最准确一注 | 3d千禧开机号试机号关注金码 | 千禧3d试机号关注码金码试机号 | 福彩3D独胆明日分析 | 3d双胆独胆推荐 | 于海滨专家3d今天预测 | 于海滨3d预测号 | 白姐3d今天预测号码 | 于海滨3d专家预测今天 | 3d单选一注能中多少钱 | 今天3d试机号开机号牛彩网 | 今天的3d藏机图正版藏图 | 3d今天开机号和试机号 | 今天3d专家预测汇总 | 3d今晚字谜太湖字谜是什么 | 今天3d开机号试机号对应码列表 | 手机牛彩网3d预测 | 3d专家预测最准确最新新闻 | 今于海滨3d预测今天单线联系 | 今天3d开机号和试机号多少? | 今日精准预测推荐3d号码 | 3d长中剑客预测今天 | 3d3d今晚预测| 3d三胆| 专家预测3d号码准确 | 毒胆牛人三天计划 | 福彩3D独胆最新必中 | 大师诸葛亮今晚一个独胆 | 3D独胆下期推荐走势最新 | 3d预测专家最准确 | 3d开机号试机号今天最新50期 | 今晚3d出的什么号 | 3d预测最准最新准专家预测 | 3d百个位差值振幅走势图100期 | 3d专家预测最准最新今天 | 3d八哥图库总汇d字谜图谜总汇大全 | 3d和值专家推荐和值 | 3d试机号后专家预测汇总 | 中国福彩3D独胆最新走势 | 福彩3D独胆下一期推荐最新 | 3d今晚最准最新专家推荐号 | 于海滨专家一语定胆十好心人 | 3d今晚专家推荐号 | 3d今晚出的什么号 | 牛彩网3d专家预测汇总 | 詹天佑今日最新点评 | 3d推荐号今晚专家预测最准确 | 于海滨点评专家一注定胆保真版162期 | 3d独胆双胆3d之家 | 3d百个差振幅走势图近100期 | 3d开机号和试机号金码关注对应号 | 3d彩吧试机号今天 | 于海滨最新3d预测推荐今天 | 近30期3d开机号和试机号 | 詹天佑3d今晚预测号码 | 3d晚秋和值谜字谜图 | 天齐藏机图汇总正版藏机图 | 十拿九稳预测最准100% | 3d预测最新最准3d之家 | 3d藏机图正版藏机图全图牛彩网 | 于海滨最新3d预测今天 | 3d北斗专家北斗预测今天079期3d | 今天3d千禧试机号关注号金码号 | 中国福利3d今天模拟试机号 | 3d今晚预测精准 | 今晚了3d开奖结果 | 3d最精准一注一注 | 3d最新最准预测号码今天 | 三d推荐号专家预测今天 | 3d今晚最新预测 | 今天3d开机号试机号码 | 今日3d一句定三码最准和值谜 | 今于海滨3d预测今天牛彩网 | 3d专家免费预测 | 最准的3d专家预测 | 今天3d开机号 试机号是多少 | 今于海滨3d预测今天单线联系 | 今晚3d试机号千禧试机号金码关注 | 三地千禧关注码试机号 | 3d试机号开机号关注号金码 | 3d组选中一注多少钱 | 3d所有走势图 | 3d预测专家推荐最准确 | 3d预测专家准确推荐 | 3d走势图专业版(带连线) | 3d上下五千年专家预测 | 3d试机号200期历史 | 今天最准3d预测号 | 唐龙3d预测今日出号点评 | 3d预测今晚最准专家预测号码 | 3d预测最新最准专家 | 3d走势图专家推荐号码 | 今天3d专家预测号码 推荐 | 3d老虎独胆| 3d开机号试机号30期列表彩宝网 | 3d最精准的专家预测 | 于海滨一语定胆 | 马后炮解3d太湖字谜 | 今天3d于海滨预测 | 财神一注3d | 千禧3d试机号金码关注码码关注码双彩论六个 | 3d专家詹詹天佑最新推荐 | 3d千禧试机号码金码关注码 | 3d预测最准确的专家预测软件 | 3d今晚最准专家预测号码145 | 3d今天专家预测推荐号码 | 3d专家推荐最新预测 | 3d精准三注直选 | 今日3d专家预测号码推荐 | 今天3d藏机图正版藏机图藏机图太湖横屏 | 3d最准预测专家预测大 | 小红人的三天计划今天是什么 | 历史3d开奖结果 | 3d最新最准预测号码今天 | 于海滨最新预测今天 | 太湖字谜三字诀论坛 | 于海滨海3d预测免费每日精选3d开奖号 | 福彩3D独胆实时杀号 | 3d詹天佑最新预测今天 | 3d今晚最准专家预测号码 | 3d开机号和试机号近100期 | 3d陈华今晚就赌一胆天齐网 | 中国彩吧更一懂彩民最新版本更新时 | 廊坊鸿运3d推荐今天 | 马后炮解3d太湖钓叟字谜总汇大全 | 今晚3d天宇一句定三码字谜 | 3d字谜图谜总汇全图汇总 | 3d预测 下一期 3d预测专家 3d预测 | 3d近30期开奖结果 | 3d今晚十大专家预测汇总 | 3d双胆,独胆非常非常稳定 | 今天3d詹天佑预测分析 | 3d十大专家精准预测 | 3d两胆王双胆必下 | 3d玩胆先生双胆独胆 | 3d和值基本走势图 | 陈华3d今晚就赌一个胆天齐网 | 3d今天专家预测号码 | 今晚3d之家| 于海滨杀码图牛彩 | 3d直选一注必中 | 3d今晚专家预测 | 3d今日正版藏机图最新更新内容 | 今晚3d专家最精准的预测 | 3d今天精准一注 | 3d十大专家汇总精选一注 | 西施姐姐精心推算一独胆146 | 小德3d今天双胆定位 | 3d专家预测号码手机牛彩网 | 3d太湖字太湖字谜今天 | 3d专家推荐号最准确的推号 | 3d推荐最新最准专家预测 | 3d今晚的独胆 | 今日3d一注推荐 | 3d精准预测最准的专家直选 | 天齐藏机图汇总正版藏机图 | 今晚最准一注3d | 3d紫云涧专家预测推荐 | 财神一语定一注3d字谜 | 3d今天千禧试机号关注号金码 | 今晚3d预测开奖号码推荐 | 3d百十和值尾振幅走势图 | 3d今晚字谜太湖字谜是什么 | 3d千禧开机号和试机号码 | 3d独胆必下一个胆 | 3d开机号试机号今天的 | 顶级胆神双胆下一 | 3d今晚最准专家预测号码 | 3d今晚专家预测推荐号 | 今天3d的开机号和试机号是多少号 | 3d太湖字谜大全 太湖钓叟 | 今晚3d专家推荐号码是多少 | 今晚上3d开奖号码 | 3d北斗专家北斗预测今天079期3d | 3d最新专家预测汇总大全 | 3d和值宫数线走势图 | 3d预测最准确专家预测牛彩网 | 今日3d藏机图正版藏机图310 | 铁娘子三天计划独胆必下300 | 3d专家预测最准确最新汇总 | 3d藏机图天齐正版藏机图 | 3d预测专家推荐最准确 | 3d基本走势图全部 | 三七进二得三码猜一生肖 | 于海滨点评专家一注定胆保真版 | 3d今天专家预测推荐号码 | 福彩3D独胆下一期推荐 | 今晚了3d开奖结果 | 一定牛3d杀码 | 于海滨最新3d预测今天 | 3d藏机图正版藏机图诗汇总 | 今天3d出的什么号 | 3d预测今晚推荐号 | 3d今晚预测最新最准确号码牛彩网 | 3d预测专家推荐最准确 | 廊坊鸿运3d推荐今天 | 3d于海滨一语定胆今天 | 今日3d开奖号太湖字谜总汇 | 3d走势图基本走势图 | 今晚了3d开奖结果 | 3d单式怎么才算中奖 | 福彩3D独胆下期最新推荐 | 三天计划3d独胆必出论坛 | 于海滨一语定胆专家点评 | 3d专家预测更准确今天 | 于海滨3d预测专家今天 | 3d专家预测推荐汇总 | 3d走势图基本走势图 | 今天3d藏机图正版藏机图藏机图太湖横屏 | 3d带线走势图牛彩网 | 3d预测今晚最准专家预测号码 | 今天专家推荐号码3d | 3d杀码图谜 | 3d今天的推荐号 | 3d专家最新最准专家预测 | 3d太湖钓叟字谜三字诀乐彩论坛 | 3d今天开机号试机号对应码关注码 | 3d预测最准确的专家预测软件 | 3d专家预测号 | 3d正版藏机图天齐网汇总 | 于海滨海3d最新预测 | 三d毒胆预测 | 专家预测3d号码准确 | 3d今天开机号和试机号金码对应码 | 3d最大值振幅走势图遗漏 | 3d和值10有哪些号码 | 3d预测最准确的专家预测软件 | 福彩3D独胆下期推荐精准预测 | 3d太湖字谜图谜总汇 | 3d预测最准最新准专家预测 | 今天3d的开机号和试机号是多少号 | 3d今天开机号和试机号开奖结果 | 3d试机号开机号今天晚上金码号 | 詹天佑3d推荐 | 3d太湖专家预测今晚 | 福彩3D独胆最新走势最新 | 福彩3D独胆下期最新分析 | 3d专家预测最新 | 3d太湖专家预测今晚 | 今天3d号码推荐 | 三地千禧试机号关注金码对应码 | 3d牛彩网专家预测 | 个位杀码王 | 3d预测最准最新准专家预测号码 | 3d精准预测最准的专家 | 3d今日开机号和试机号及关注码 | 铁人铁胆定位包是预测 | 3d推荐号3d推荐号码 | 3d今日开机号和试机号及关注码 | 中国福彩3D独胆当天分析 | 3d预测号最新最准牛彩网 | 3d今日预测推荐号 | 今天3d开机号和试机号查询结果彩吧 | 天才三天独胆计划 | 3d预测今晚推荐号 | 3d预测最准最新准专家预测 | 詹天佑3d推荐 | 今天的3d藏机图正版藏图 | 3d专家预测独胆最准确 | 3d试机号今晚开机号 | 3d个位振幅走势图近50期 | 3d试机号后专家预测推荐汇总 | 今天3d太湖钓叟三字诀字谜 | 3d专家预测牛彩网 | 3d十大专家预测汇总 | 3d最新专家预测汇总 | 3d字太湖叟字谜 | 顶级胆神双胆必下 | 3d和值振幅走势图带连线坐标 | 3d今晚专家预测最准确一注 | 唐龙一语定胆3d今天 | 3d谜语今天字谜今天的3d字谜是什么? | 3d今日预测最准专家预测 | p3故事小王双胆下一今天 | 于海滨点评专家一语定胆保真版 | 投资计划独胆三天计划 | 3d预测专家精准推荐 | 3d今晚专家推荐号 | 3d今晚上必出号 | 3d预测詹天佑最新 | 千禧3d今天的试机号 | 3d最准预测专家预测大 | 3d今天开机号试机号对应码关注码 | 今天3d开机号 试机号是多少 | 3d预测一注推荐 | 3d基本走势图 综合 太湖三字诀字谜三 | 3d今天开机号和试机号查询100期 | 福彩3D独胆独家预测最新 | 3d顶级胆神双胆 | 3D独胆本期推荐最新 | 3d爱心角落试后一注 | 三地千禧关注码试机号 | 3d预测专家推荐 | 3d专家预测最准最新 | 3d和值尾振幅走势图3d走势3d之家 | 十拿九稳专家最新预测 | 3d和值推算公式 | 3d组选中一注多少钱 | 3d今晚惊天一注预测 | 3d千禧试机号关注号金码号开机号 | 3d直选综合走势图表 | 3d均值振幅走势图表图 | 3d独胆双胆3d之家 | 3d家彩预测 | 拼搏在线3d开机号和试机号列表 | 今天3d出的什么号 | 3d彩报图今天图库彩吧 | 3d火火人独胆双胆必中 | 3d开奖号码结果 今晚 | 3d机选一注 | 3d詹天佑最新预测牛彩网 | 3d今晚最准专家推荐号码 | 3d专业版(走势图带连线) | 3d最准预测号 |